Bingley Railway Station Wellington Street, Bingley, West Yorkshire, BD16 2NA

GBP 0 For Sale

Property Details

Property Type

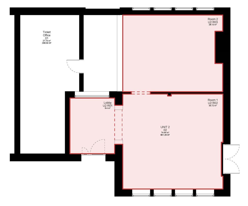
788 sq ft

Description

*** PRICE ON APPLICATION ***

Property Details: • Type: 788 sq ft • Tenure: N/A • Floor Area: N/A

Key Features: • Annual Station Footfall of 938,782. • Regular services to Leeds, Bradford and Skipton • Situated fronting the station forecourt and car park • Undergoing refurbishment • Close to the town centre • Suitable for retail, catering, licensed bar

Location: • Nearest Station: Crossflatts Station • Distance to Station: 0.7 miles

Agent Information: • Address: 9 Bond Court, Leeds, LS1 2JZ

Full Description: On behalf of Northern, an opportunity exists at Bingley Station comprising a single storey stone building extending to three rooms. Access is gained via a double door at the front of the main station building. The premises have previously been used for the sale and display of retail goods. Northern are inviting business proposals for a coffee shop, catering, licensed bar or other business use.

Location

Address

Bingley Railway Station Wellington Street, Bingley, West Yorkshire, BD16 2NA

Features and Finishes

Annual Station Footfall of 938,782., Regular services to Leeds, Bradford and Skipton, Situated fronting the station forecourt and car park, Undergoing refurbishment, Close to the town centre, Suitable for retail, catering, licensed bar

Legal Notice

Our comprehensive database is populated by our meticulous research and analysis of public data. MirrorRealEstate strives for accuracy and we make every effort to verify the information. However, MirrorRealEstate is not liable for the use or misuse of the site's information. The information displayed on MirrorRealEstate.com is for reference only.

Real Estate Broker
Lambert Smith Hampton, Leeds
Brokerage
Lambert Smith Hampton, Leeds
Top Tags
Coffee shop catering
Likes

0

Views

18

This website uses cookies to ensure you get the best experience. Learn more