Bingley Railway Station, Wellington Street, Bingley, West Yorkshire, BD16

GBP 0 For Sale

Property Details

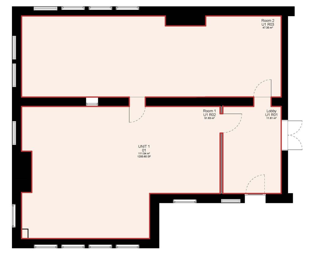
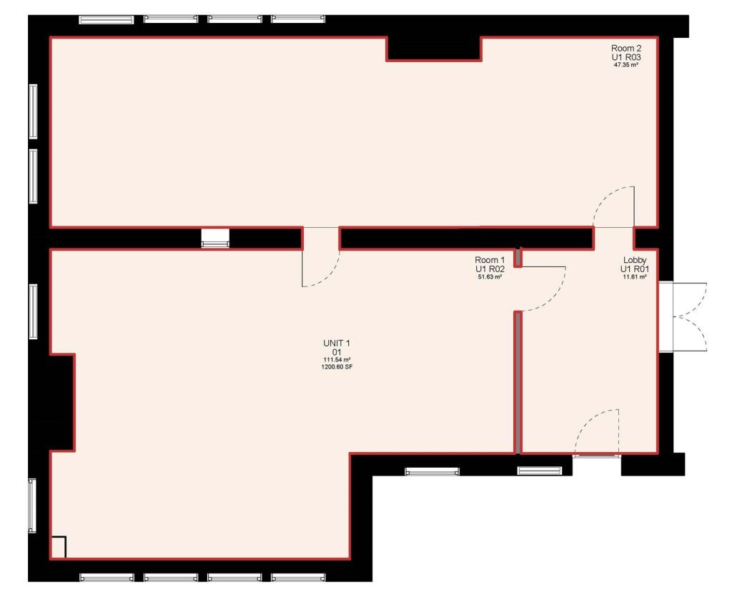
Property Type

1,190 sq ft

Description

*** PRICE ON APPLICATION ***

Property Details: • Type: 1,190 sq ft • Tenure: N/A • Floor Area: N/A

Key Features: • Annual Station Footfall of 938,782 • Regular services to Leeds, Bradford and Skipton • Situated fronting the station forecourt and car park • Undergoing refurbishment • Close to the town centre • Suitable for retail, catering & real ale bar

Location: • Nearest Station: Crossflatts Station • Distance to Station: 0.8 miles

Agent Information: • Address: 9 Bond Court, Leeds, LS1 2JZ

Full Description: On behalf of Northern, an opportunity is available at the station which comprises a building extending to two rooms. Access to the premises is via the door to the left of the station entrance and forecourt.The premises have previously been used as a dance school. Northern are inviting business proposals for a real ale bar or other business use.

Location

Address

Bingley Railway Station, Wellington Street, Bingley, West Yorkshire, BD16

Features and Finishes

Annual Station Footfall of 938,782, Regular services to Leeds, Bradford and Skipton, Situated fronting the station forecourt and car park, Undergoing refurbishment, Close to the town centre, Suitable for retail, catering & real ale bar

Legal Notice

Our comprehensive database is populated by our meticulous research and analysis of public data. MirrorRealEstate strives for accuracy and we make every effort to verify the information. However, MirrorRealEstate is not liable for the use or misuse of the site's information. The information displayed on MirrorRealEstate.com is for reference only.

Real Estate Broker
Lambert Smith Hampton, Leeds
Brokerage
Lambert Smith Hampton, Leeds
Top Tags
190 sq ft property
Likes

0

Views

18

This website uses cookies to ensure you get the best experience. Learn more