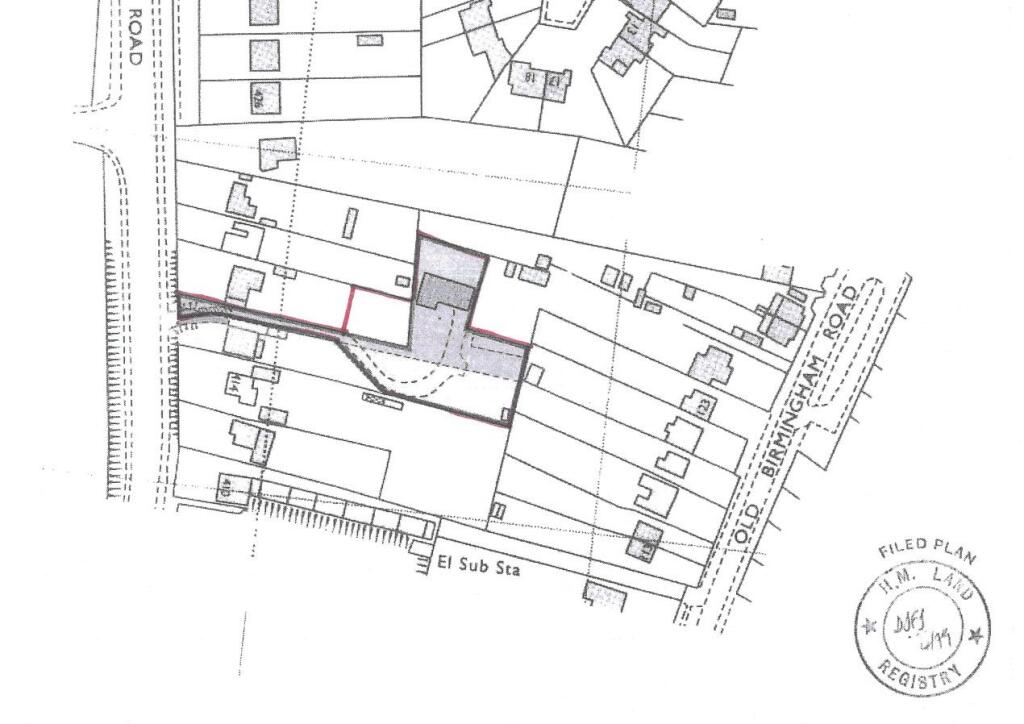
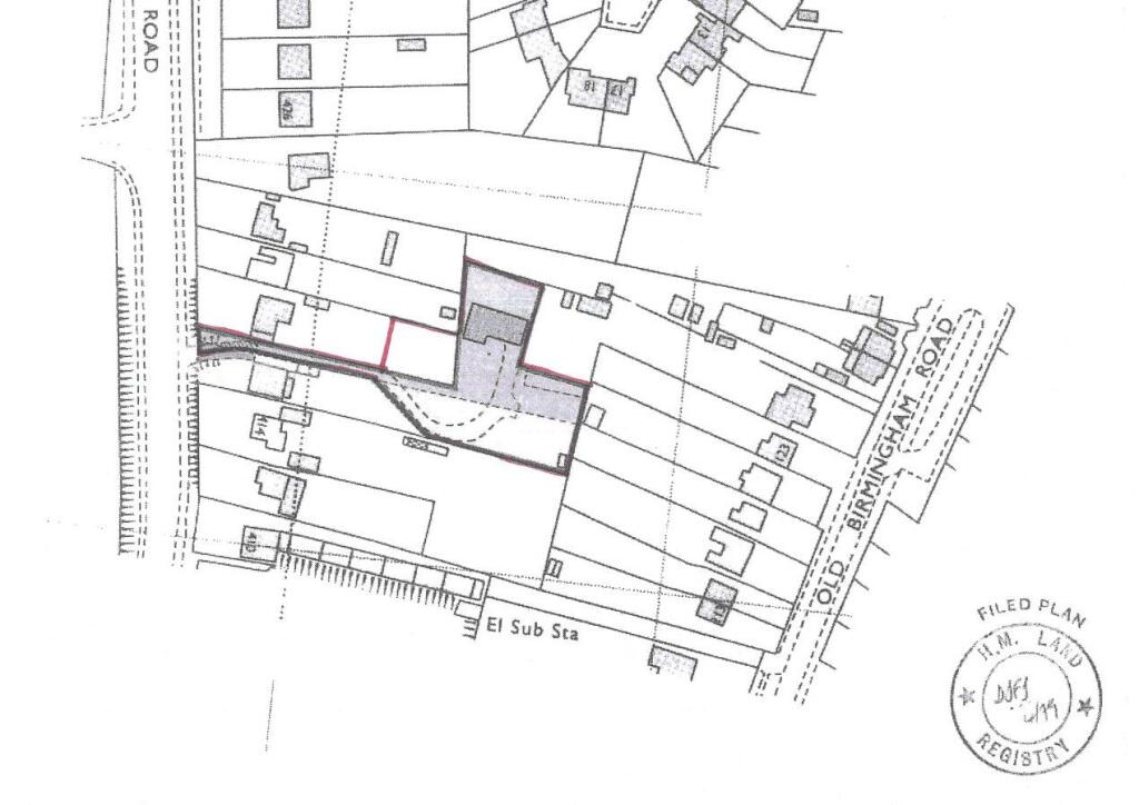
Birmingham Road,Marlbrook,Bromsgrove,Worcestershire,B61 0HL

GBP 525000 For Sale

Property Details

Bedrooms

7

Bathrooms

5

Property Type

Plot

Description

Property Details: • Type: Plot • Tenure: N/A • Floor Area: N/A

Key Features: • Building plot for two dwellings • Lapsed planning granted 15/10/2015 • Previous planning for two storey house & bungalow • Approximately 0.45 acre site • Freehold tenure • Mains services available • Subject to planning permission deal offered • Set well back from main road • Popular location between M42 & M5 motorways

Location: • Nearest Station: N/A • Distance to Station: N/A

Agent Information: • Address: 18 High Street, Bromsgrove, B61 8HQ

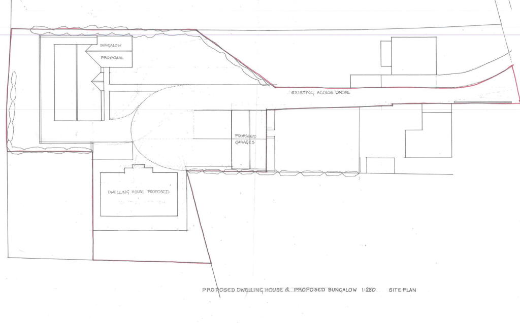
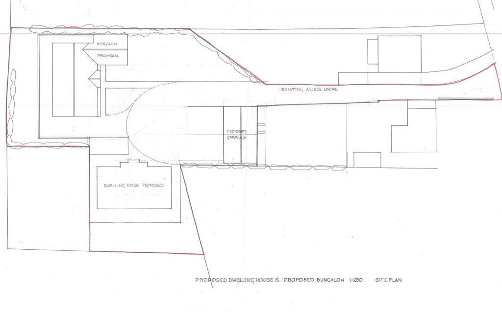
Full Description: 'BUILDING PLOT FOR TWO RESIDENTIAL DWELLINGS, SUBJECT TO REINSTATEMENT OF PLANNING PERMISSION'This plot had planning permission granted on 15/10/2015 for a detached two storey house, a detached bungalow and a pair of garages.  The planning permission has now lapsed and will need reinstating, however, the owner is prepared to agree a sale subject to planning permission.The plot amounts to approximately 0.45 acre and is situated in a desirable residential area between the M5 & M42 motorways on the outskirts of Birmingham, convenient for commuting to Birmingham and the facilities of Bromsgrove.  We are informed that all mains services are available, but may be subject to connection charges.Planning permission was granted for a detached two storey house with internal accommodation of approximately 2,870sqft, a detached bungalow with internal accommodation of approximately 1,590sqft and a pair of garages.PROPOSED TWO STOREY HOUSEApproximately 2,870sqftReception hallToiletCloakroomThrough living roomStudyOpen plan kitchen & family roomUtility roomLanding with store4 double bedrooms2 en suitesFamily bathroomGaragePROPOSED DETACHED BUNGALOWApproximately 1,590sqftReception hallLoungeLiving roomKitchen & Dining roomUtility room3 bedrooms1 en suiteFamily bathroomGarageBrochuresBrochure 1

Location

Address

Birmingham Road,Marlbrook,Bromsgrove,Worcestershire,B61 0HL

City

Bromsgrove

Features and Finishes

Building plot for two dwellings, Lapsed planning granted 15/10/2015, Previous planning for two storey house & bungalow, Approximately 0.45 acre site, Freehold tenure, Mains services available, Subject to planning permission deal offered, Set well back from main road, Popular location between M42 & M5 motorways

Legal Notice

Our comprehensive database is populated by our meticulous research and analysis of public data. MirrorRealEstate strives for accuracy and we make every effort to verify the information. However, MirrorRealEstate is not liable for the use or misuse of the site's information. The information displayed on MirrorRealEstate.com is for reference only.

Real Estate Broker
Allan Morris, BROMSGROVE
Brokerage
Allan Morris, BROMSGROVE
Top Tags
Birmingham Road Building plot Popular location Two storey house
Likes

0

Views

36

This website uses cookies to ensure you get the best experience. Learn more