Black Bull Road, Folkestone, CT19

GBP 300000 For Sale

Property Details

Property Type

Land

Description

Property Details: • Type: Land • Tenure: N/A • Floor Area: N/A

Key Features: • Land For Sale with Planning • 8 Flats • Prominent Site • Contact Motis on

Location: • Nearest Station: Folkestone Central Station • Distance to Station: 0.4 miles

Agent Information: • Address: Suite 1-2 Motis Business Centre, Cheriton High Street, Folkestone, Kent, CT19 4QJ

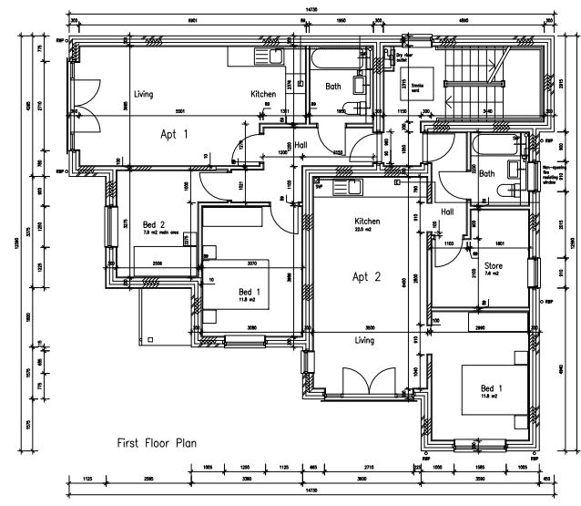
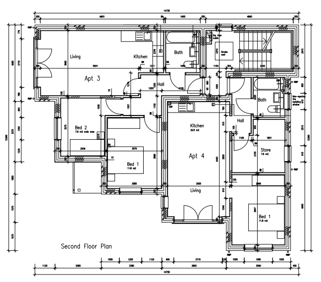
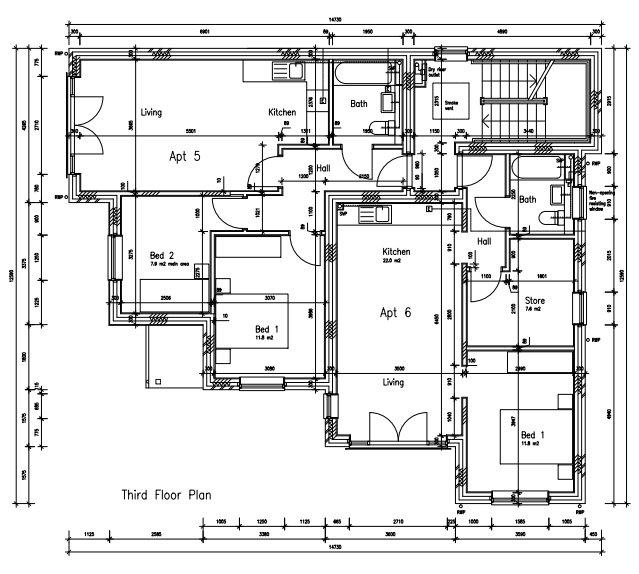
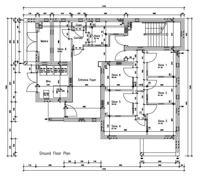
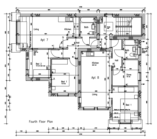
Full Description: Offers in Excess of £300,000. Motis Estates are pleased to offer a Residential plot of Land with For Sale in Black Bull Road which has planning permission for 4 x 1 bedroom flats and 4 x 2 bedroom flatsFolkestone is a popular and historic town on the Kent coast, located approximately 19 miles south of Canterbury and 15 miles south east of Ashford. The town is well served given its close proximity to the M20, and in turn the M25. Folkestone benefits from the high speed rail service with journey times to London St Pancras of approximately 55 minutes. Folkestone is also home to the Eurotunnel, with direct daily services to France in under an hour. The subject property is well positioned on Dover Road, a main arterial road of Folkestone. The property is located close to the edge of the town centre as defined by the development plan on a main arterial route. The services and facilities provided in the town centre are all readily accessible from the application site. The property is in walking distance of the town's main public transport hubs. The bus station in Bouverie Square approximately 0.8 miles to the east, while Folkestone Central Railway Station is located to the north at a distance of approximately 0.6 miles. The site is situated on a corner plot at the junction between Black Bull Road and Radnor Park Road. The site is currently vacant and has been used historically as a builder's storage area. The boundary has been boarded up with an advertising board sited thereon. The site sits within a flood risk area. It does not lie within any conservation area.The new building has been designed to fit within the confines of the existing site and of the neighbouring adjacent buildings. Due to the level of flood risk within the area no living accommodation is allowed at the existing street level. A total of 8 x 2 bedroom flats. The ground floor area is used as individual storage for the apartments as well as storage for cycles and each area could be additionally used as an utility/drying area.To avoid planning application lapsing, we understand that demolition has occurred and the developer has discharged all the planning conditions and registered a start under the previous building regulations prior to their change in 2023. Property Type Flat Size(GIA) Bedrooms Flat Size with Storage (GIA) SqFt SqMFlat 1 61 2 858 80Flat 2 61 2 863 80Flat 3 61 2 855 79Flat 4 61 2 908 84Flat 5 57 2 857 80Flat 6 59 2 879 82Flat 7 57 2 838 78Flat 8 59 2 859 80 6917 643We understand that mains gas, electricity, drainage and water are available from the road and that there are no abnormal costs associated with their connection to the proposed dwellings.Planning Application NameY18/0859/FHSite AddressAdvertising Hoarding Adjoining 5 Black Bull Road Folkestone KentProposalErection of a block of 8 residential apartments.Approved with ConditionsCurrent Decision Date12/12/2018The freehold interest appears to be registered at the land registry under title number K456625. We have not been provided with a copy of a Report on Title and have not seen a copy of the title deeds. We assume that full rights of access are enjoyed, and that no third parties enjoy any rights over the subject Property. The land is vacant and there are stated to be no leases in existence. Please see Planning Applications for Floorplans and Design and Access Statement.Price: Offers in excess of £300,000VAT: We recommend that you speak to your financial advisor to ascertain if VAT is attributed to the Land.For more information regarding the Land, please contact Motis Estates Chartered Surveyors on orBrochuresBrochure

Location

Address

Black Bull Road, Folkestone, CT19

City

Folkestone and Hythe District

Features and Finishes

Land For Sale with Planning, 8 Flats, Prominent Site, Contact Motis on

Legal Notice

Our comprehensive database is populated by our meticulous research and analysis of public data. MirrorRealEstate strives for accuracy and we make every effort to verify the information. However, MirrorRealEstate is not liable for the use or misuse of the site's information. The information displayed on MirrorRealEstate.com is for reference only.

Real Estate Broker
Motis Estates, Folkestone
Brokerage
Motis Estates, Folkestone
Top Tags
8 Flats Prominent Site
Likes

0

Views

62

This website uses cookies to ensure you get the best experience. Learn more