Bodle Street Green, Heathfield, East Sussex

GBP 5000000 For Sale

Property Details

Bedrooms

6

Property Type

Equestrian Facility

Description

Property Details: • Type: Equestrian Facility • Tenure: Ask agent • Floor Area: N/A

Key Features: • Grade II listed six bedroom farmhouse • A number of additional residential properties • Farm buildings with stabling, storage, indoor school • Secure, air conditioned storage building • Equestrian facilities including substantial stabling, indoor school, manege, horse walker, and four furlong gallop. • Woodland, grassland and ponds

Location: • Nearest Station: N/A • Distance to Station: N/A

Agent Information: • Address: 43 Cadogan Street, London, SW3 2PR

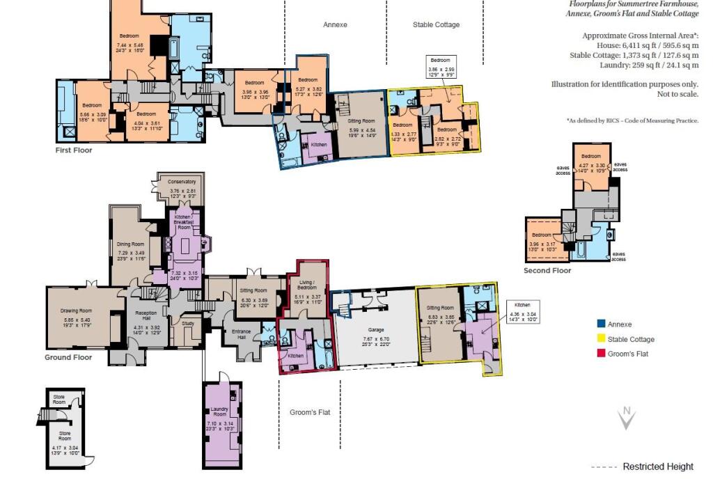
Full Description: Summertree FarmhouseA six bedroom Grade II listed farmhouse beautifully designed and decorated throughout with both style and character and outstanding views over the gardens and land beyond. The principal bedroom is wonderfully spacious and includes a bathroom suite with extensive built in cupboards. There are three further bedrooms on the first floor, and two bedrooms and a bathroom on the second floor. Still in the heart of the house, is a further bedroom on the first floor, with bathroom, sitting room and kitchen, creating an annexe which can either be an extension of the main accommodation or a separate annexe with secondary independent access through the garage.In addition, there are a collection of supporting residential properties of varying sizes being Groom’s Flat, Stable Cottage, Oast Cottage, Garage Flat and Marie’s Cottage, all of which are described in more detail below. All of the properties will be vacant upon completion, apart from Marie’s Cottage which is subject to a short term licence. This collection of properties offer opportunities to house members of estate staff, extended family or indeed offer the prospect of additional income too.Groom’s FlatA one bedroom/sitting room flat with separate kitchen and bathroom, adjacent to the main house with independent access.Stable CottageA two/three bedroom cottage set over two floors, adjoining Summertree Farmhouse.AnnexeOne bedroom, sitting, kitchen and bathroom, accessed both from the main house and through the garage.Garage FlatA self-contained one bedroom flat lying above a set of garages.Marie’s CottageA recently built one bedroom cottage lying adjacent to the outdoor manège. Built to a high standard with underfloor heating and a spacious living area. This cottage is subject to a short term licence.The Oast CottageThe primary supporting property, a charming three-bedroom converted Oast of stone construction with wonderful historical features and doors which open up onto the garden.Gardens and GroundsThe gardens at Summertree are immaculately kept and were in more recent years redesigned to include an extensive water garden with a wonderful planting plan incorporating water loving plants and mixed herbaceous borders creating a haven for wildlife. There is a newly built Hartley Botanic greenhouse which would be the envy of many. There is a swimming pool with pool house and gym. The pool is heated by an airsource heat pump.Equestrian facilities and farm buildingsThe equestrian facilities are second to none. A combination of individual traditional stables positioned adjacent to the farmhouse with feed stores and further storage. There is an extensive modern stable barn with 22 generously sized loose boxes (removable), with purpose built feed room, wash down area and tack room with large staff room above. Adjoining this building and accessed through it via a roller shutter door and side door, is a secure and substantial air conditioned portal frame building with internal lock up room. This building can be used for a number of purposes and has most recently been used for the storage of cars.Farm BuildingsOn the eastern side of the farm at the entrance to the estate, with access from the main drive, lies a portal frame general purpose building and a very substantial portal frame building divided into two parts, with the western part providing livestock accommodation and the eastern part a substantial indoor school with raised viewing gallery and office to the eastern end, where there is also separate gated access from the public highway.The farmlandThere are 249.37 acres in total of which 165.01 are grass and 73.61are woodland with the remainder being ponds and a comprehensive network of tracks providing easy access to all parts. The land which has a lovely undulation, is well fenced providing good sized fields as well as a number of turn out paddocks closer to the buildings and is currently grazed by sheep and a herd of alpacas. The rolling nature of the land has leant itself to provide a fun family shoot in the past. Many of the grass fields have railed fencing and water troughs throughout and there are a sequence of well maintained cross country jumps. The gallop which runs along the Western boundary of the farm incorporates a turning circle creating four furlongs in length.FarmingThe land is farmed in hand by a self employed farm manager who has managed it for around twenty years.WoodlandThere has been excellent woodland management over many years including some timber clearance and replanting. This has resulted in the most wonderful established and new woodland with spectacular wildflowers and most notably bluebells.The ShootThe undulating terrain of the farm, combined with woods, copses and strategically located game strips, have provided an extremely exciting shoot. The shoot has not been run in recent years, but could easily be revitalised, should a purchaser wish.SolarOn the roofs of two of the buildings on the estate are photovoltaic solar arrays. They have considerably reduced the electricity consumption on the farm since installation and provide a revenue of around £15k per annum, produced from the export of electricity.SituationSummertree Farm lies in an extraordinary position in a wonderfully quiet part of East Sussex, sitting between Rushlake Green, Bodle Street Green and Dallington known as the Golden Triangle. The ring fenced property is approached up an immaculately kept private hedge lined drive with the principal house sitting at its heart. The property is presented to an exceptional standard and the additional supporting residential properties mean it could, amongst other things, be suited to multigenerational living. The farm, which has been in the same family for nearly fifty years, was most recently run as a racing yard, but the range and quality of buildings lends itself to any number of alternative uses.Sporting and RecreationThe highly desirable village of Rushlake Green offers a fantastic range of day to day amenities including a village hall, a thriving independent village store and post office and the Horse and Groom public house. The nearby larger village of Herstmonceux provides more comprehensive local amenities, as does the market town of Heathfield. The seaside town of Eastbourne, only 14 miles away offers High Street and boutique shopping, a modern shopping centre, hotels, cafés, restaurants, and public houses, and recreational facilities including theatres, cinemas an art gallery, marina, fitness centres and numerous small sports clubs as well as Willingdon Golf Club.The county town of Lewes (18 miles) and the major town of Tunbridge Wells (19.5 miles) and the both offer extensive shopping services, recreational and leisure amenities. The beaches at Eastbourne and the south coast provide a wide range of activities for water sport enthusiasts and are within easy reach. Communication links areexcellent, both Robertsbridge and Etchingham stations offer regular services to Charing Cross and Cannon Street stations. Polegate Station offers a service to London Victoria and Gatwick. The A21 at Battle gives easy access to the national road and motorway network to both Central London and airports.SchoolsThe area offers a wide range of state schooling including Herstmonceaux and Dallington Primary, Heathfield Comprehensive and Claverham in Battle, together with a good selection of noted independent schools including Battle Abbey, Bede’s, Benenden, Mayfield, Eastbourne College and St Andrew’s Prep. HistorySummertree Farmhouse features in the Doomsday book. The original part of the Grade II listed farmhouse dates back to the 15th Century with an additional southern wing being added in the early 17th Century. There have been a number of sympathetic additions made to the house which have greatly enhanced the character and comfort of the property and encouraged it into a more modern day living style.BrochuresWeb DetailsParticulars

Location

Address

Bodle Street Green, Heathfield, East Sussex

City

Heathfield and Waldron

Features and Finishes

Grade II listed six bedroom farmhouse, A number of additional residential properties, Farm buildings with stabling, storage, indoor school, Secure, air conditioned storage building, Equestrian facilities including substantial stabling, indoor school, manege, horse walker, and four furlong gallop., Woodland, grassland and ponds

Legal Notice

Our comprehensive database is populated by our meticulous research and analysis of public data. MirrorRealEstate strives for accuracy and we make every effort to verify the information. However, MirrorRealEstate is not liable for the use or misuse of the site's information. The information displayed on MirrorRealEstate.com is for reference only.

Real Estate Broker
Strutt & Parker, National Estates & Farm Agency
Brokerage
Strutt & Parker, National Estates & Farm Agency
Top Tags
Likes

0

Views

8

This website uses cookies to ensure you get the best experience. Learn more