Booth Place, Margate, CT9
Property Details
Land
Description
Property Details: • Type: Land • Tenure: N/A • Floor Area: N/A
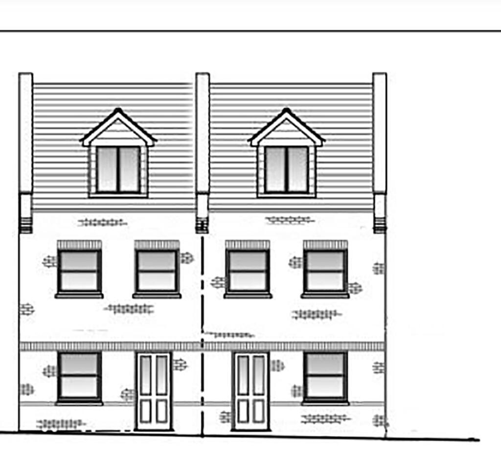
Key Features: • Planning Granted • A Pair Of Semi-detached Houses • Thanet District Council Planning Reference: F/TH/24/0036
Location: • Nearest Station: Margate Station • Distance to Station: 0.7 miles
Agent Information: • Address: 155-157 Northdown Road, Cliftonville, Margate, CT9 2QY
Full Description: PLANNING APPROVEDThis parcel of land located in Margate town centre close to local amenities and a short distance from the popular seafront, has been granted Planning Permission for the development of two three-bedroom semi-detached houses with gardens to rear.The approved scheme grants Permission over Plots 1-5, however Plots 1, 2 and 3 are in the process of being built and are being retained by the seller. We are offering Plots 4 and 5 for sale and have been informed by the Seller the ground works have been completed and power, water and drainage are all in place.Planning Permission has been granted by Thanet District Council under reference F/TH/24/0036, dated 8th January 2025, for erection of three three-storey three-bedroom terrace dwellings and two three-storey three-bedroom semi-detached dwellings, subject to conditions.A copy of the Planning Permission and accompanying documents may be downloaded from the Local Planning Authority website.PROPOSED ACCOMMODATION - BOTH PROPERTIESGROUND FLOOREntrance hall, kitchen/dining room and W.C.LOWER GROUND FLOORLiving room.FIRST FLOORTwo bedrooms and bathroom with W.C.SECOND FLOORBedroom.
Location
Address
Booth Place, Margate, CT9
City
Margate
Features and Finishes
Planning Granted, A Pair Of Semi-detached Houses, Thanet District Council Planning Reference: F/TH/24/0036
Legal Notice
Our comprehensive database is populated by our meticulous research and analysis of public data. MirrorRealEstate strives for accuracy and we make every effort to verify the information. However, MirrorRealEstate is not liable for the use or misuse of the site's information. The information displayed on MirrorRealEstate.com is for reference only.