Box Hill NSW 2765
Property Details
1
1
New House & Land
Description
Property Details: • Type: New House & Land
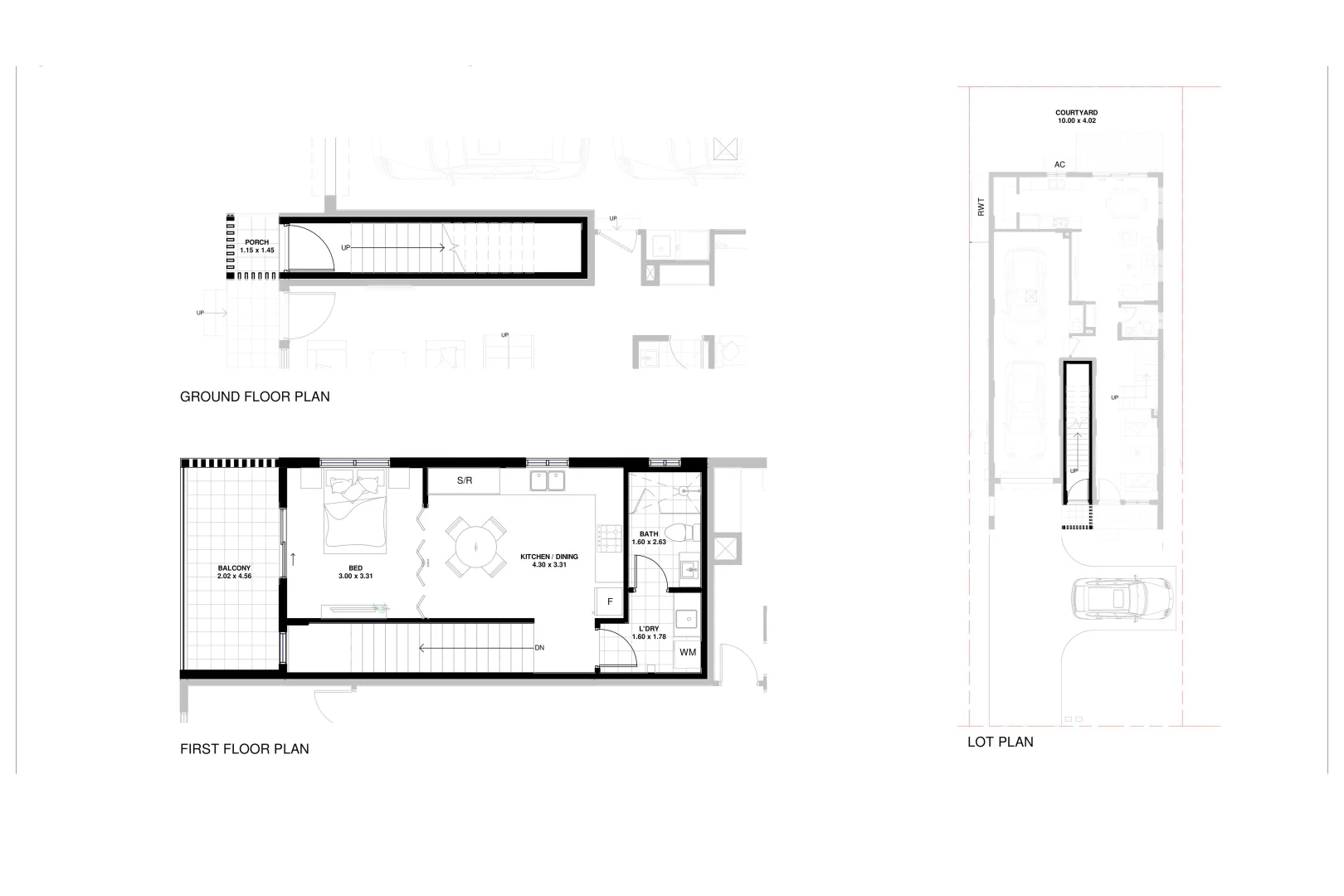
• Bedrooms: 1 • Bathrooms: 1
Description: Ready to move in Soon (1 bed) open plan living , 1 bath + Balcony + OPEN CAR SPACE Contact : Bhargav Brahmbhatt Mobile : 0401 780 556 E : [email protected] INSPECTION BY PRIVATE APPOINTMENT ONLY. DISCLAIMER *Images & plans are for illustration purposes only. Images has been used from another house finished by Same builder in the same project. Subject to the provisions of the Trade Practices Act, 1974 and subject to any other statutory provisions which cannot be excluded, Key & Castle Real Estate for themselves, and associated Companies and for the Vendors of any property for whom they act, give notice that: 1. The information contained in this document is subject to change without notice and should be regarded as indicative only; 2. The figures quoted for rents, strata levies and rates are estimates only; 3. Intending purchasers should not rely on any representations contained in this document and should rely only upon the contents of any contract for sale in relation to any property to be acquired; 4. Intending purchasers should satisfy themselves as to the truth or accuracy of any information contained in this document through their own inspections, searches, inquiries and professional legal and accounting advice
Location
Address
Box Hill NSW 2765
City
Box Hill
Features and Finishes
None
Legal Notice
Our comprehensive database is populated by our meticulous research and analysis of public data. MirrorRealEstate strives for accuracy and we make every effort to verify the information. However, MirrorRealEstate is not liable for the use or misuse of the site's information. The information displayed on MirrorRealEstate.com is for reference only.