Bradford Street, Braintree

GBP 550000 For Sale

Property Details

Property Type

Land

Description

Property Details: • Type: Land • Tenure: N/A • Floor Area: N/A

Key Features: • Building Plot • 0.57 of an Acre Plot • Full Planning Permission Granted • Historic part of Braintree • Close to Town Centre • Beautiful Folly Structure already on site

Location: • Nearest Station: Braintree Station • Distance to Station: 0.9 miles

Agent Information: • Address: 41a High Street West Mersea Essex CO5 8QA

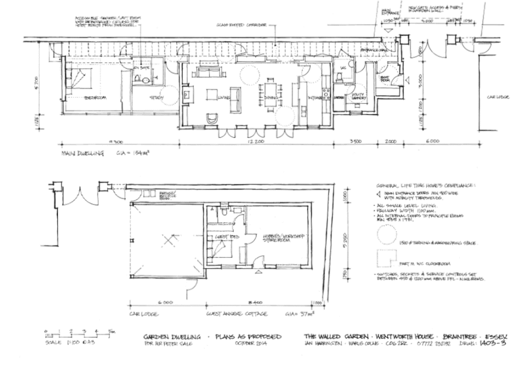
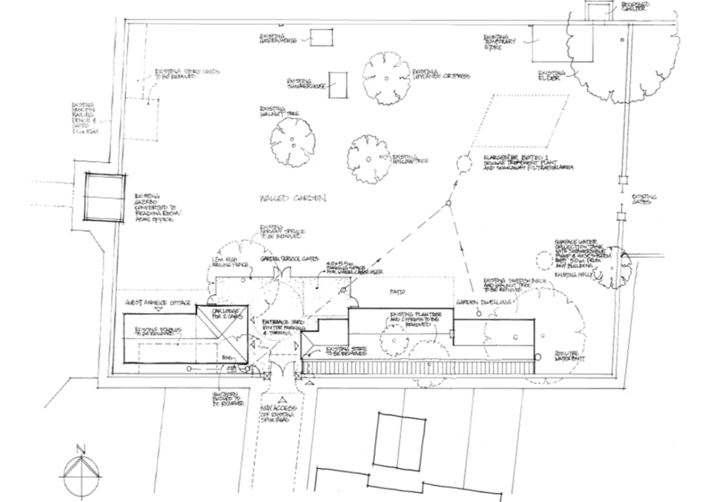
Full Description: GUIDE PRICE £550,000-£600-000 Game Estates is thrilled to present an extraordinary offering: over half an acre of prime building land nestled within the charming and sought-after Bradford Street area of Braintree. This exceptional plot comes with full planning permission for a stunning single dwelling and an additional annex, offering endless possibilities to create your dream home. What sets this plot apart is the enchanting architectural folly already gracing the land, perfectly situated within the historic walls of a Victorian walled garden. This unique feature adds an element of timeless elegance and character to the property, making it a truly one-of-a-kind opportunity. As one of the last available parcels of land to be sold off from the grand gardens of the larger houses on Bradford Street, this plot offers a rare chance to build in a location steeped in history and charm. Dont miss out on this unparalleled opportunity to create something truly special. The full plans are available at Braintree District Council under Ref: 15/00343/FUL. Property additional infoFolly:The Folly is an architectural delight, along the western edge of the Victorian Walled Garden. Recently received an extensive refurbishment of the entire structure, with minimal work to finish the interior. The Folly, has power, water and internet connections. Bathroom and is ready for the kitchenette to be finished. The Folly has an internal space of 32sqm over Two FloorsPlanned Dwelling:This 156sqm building has planning permission granted by Braintree district Council. Featuring an open plan lounge/Dinner and Kitchen. Bedroom, with En-suite, utility room, Separate WC and a boot room.Planned Annex:This 40sqm building has planning permission and houses a cart lodge for two cars and a guest Annexe

Location

Address

Bradford Street, Braintree

City

Braintree

Features and Finishes

Building Plot, 0.57 of an Acre Plot, Full Planning Permission Granted, Historic part of Braintree, Close to Town Centre, Beautiful Folly Structure already on site

Legal Notice

Our comprehensive database is populated by our meticulous research and analysis of public data. MirrorRealEstate strives for accuracy and we make every effort to verify the information. However, MirrorRealEstate is not liable for the use or misuse of the site's information. The information displayed on MirrorRealEstate.com is for reference only.

Real Estate Broker
Game Estate Agents, West Mersea
Brokerage
Game Estate Agents, West Mersea
Top Tags
Likes

0

Views

87

This website uses cookies to ensure you get the best experience. Learn more