Braintree Road, Dunmow, CM6

GBP 450000 For Sale

Property Details

Property Type

Plot

Description

Property Details: • Type: Plot • Tenure: N/A • Floor Area: N/A

Key Features: • Barn For Conversion • Vaulted Entrance • 3 En-Suite Bedrooms • Vaulted Kitchen • Double Garage • Walking Distance of Town

Location: • Nearest Station: Stansted Airport Station • Distance to Station: 5.1 miles

Agent Information: • Address: The Old Post office, 4 Church Street, Sawbridgeworth, CM21 9AB

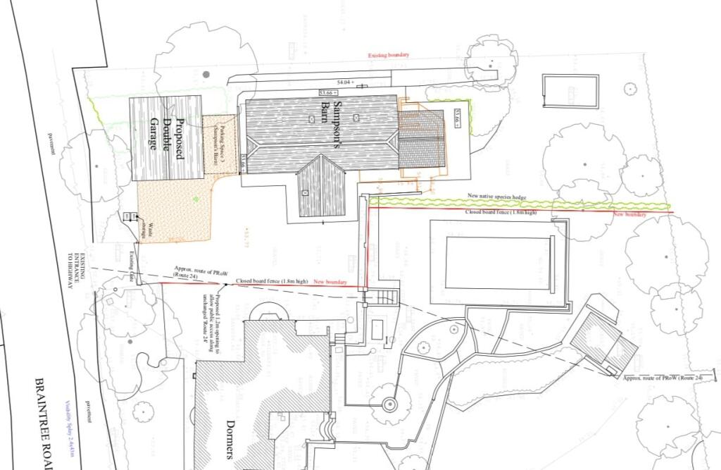
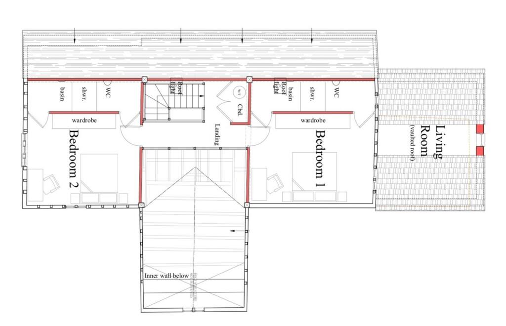
Full Description: A rare opportunity to acquire this fantastic Essex barn with full planning permission for conversion UTT/24/0062/FUL. Walking distance of Great Dunmow’s thriving town centre with shops for all your day-to-day needs, restaurants, public houses, junior and infants schools, nursery groups, senior schooling, large supermarket, recreational facilities and easy access via the A120 to the M11,. Mainline railway stations can be found at both Bishop’s Stortford and Braintree which is approximately a 25 minutes drive. The town also benefits from ultrafast broadband.The property itself is an imposing high quality timbered barn, with a large impressive vaulted entrance/dining room, spacious kitchen/breakfast toom, living room, three double bedrooms, all with en-suite facilities, part walled garden.. planning permission for a double garage, private gated entrance. Early viewing of this wonderful opportunity is highly recommended. Site viewing is available by appointment and plans etc are available on request.Entrance/Dining Room26' 3" x 13' 2" (8.00m x 4.01m)Living Room15' 5" x 13' 2" (4.70m x 4.01m)Kitchen/Breakfast Room16' 5" x 16' 0" (5.00m x 4.88m) Bedroom 116' 5" x 12' 2" (5.00m x 3.71m)En-Suite Shower Room 1Bedroom 214' 9" x 12' 2" (4.50m x 3.71m) En-Suite Shower Room Bedroom 316’5 x 14’9 (5 x 3.5m)En-Suite Shower Room 2OutsideOutside the property enjoys parking for at least 3 vehicles and planning permission for a double garage. The front of the property will be approached by a private drive and gated entrance, parking and turning area, planning for hard standing for at least three vehicles and a spacious detached double garage with an attic room over. The RearThe rear garden is approximately 55’ x 40’ (Agents note) All mains services are available in the road.

Location

Address

Braintree Road, Dunmow, CM6

City

Cressing

Features and Finishes

Barn For Conversion, Vaulted Entrance, 3 En-Suite Bedrooms, Vaulted Kitchen, Double Garage, Walking Distance of Town

Legal Notice

Our comprehensive database is populated by our meticulous research and analysis of public data. MirrorRealEstate strives for accuracy and we make every effort to verify the information. However, MirrorRealEstate is not liable for the use or misuse of the site's information. The information displayed on MirrorRealEstate.com is for reference only.

Real Estate Broker
Wright & Co, Sawbridgeworth
Brokerage
Wright & Co, Sawbridgeworth
Top Tags
Vaulted Entrance Vaulted Kitchen Double Garage Ultrafast broadband
Likes

0

Views

33

This website uses cookies to ensure you get the best experience. Learn more