Bristol Street, Birmingham
Property Details
2
2
Apartment
Description
Property Details: • Type: Apartment • Tenure: N/A • Floor Area: N/A
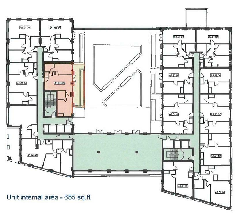
Key Features: • 655 SQ FT APARTMENT FOR SALE • IDEAL INVESTMENT OR HOME • COMPLETION QUARTER 1 2025* • A 2 BED & 2 BATH APARTMENT • BALCONY OVERLOOKING COURTYARD • POPULAR BOULEVARD B5 DEVELOPMENT • EXCLUSICE PLOT FOR SALE • CALL US NOW TO VIEW SHOW HOME OR PLANS IN BRANCH
Location: • Nearest Station: N/A • Distance to Station: N/A
Agent Information: • Address: 145 Great Charles Street Queensway Birmingham B3 3LP
Full Description: SUMMARYBRAND NEW 2 BEDROOM APARTMENT with 2 BATH AND BALCONY - EXCLUSIVE FLAT FOR SALE AT BOULEVARD B5 DEVELOPMENT - Only availalble on the development for sale with a BALCONY. Be quick to secure this exclusive plot!DESCRIPTIONCONNELLS BIRMINGHAM CITY offer for sale this one and only plot for sale with a private balcony.Boulevard development at Southside EXCELLENT INVESTMENT 2 bed 2 bathroom first floor apartment. High specification & state of the art facilities. Walking distance to Chinese Quarter, Grand Central Station & Business District, also great transport links.Boulevard comprises of a Residents Lounge. State Of The Art Gymnasium. Communal Gardens.Centrally located in the heart of Birmingham’s Southside, Boulevard provides 145 beautifully designed apartments woven into the city’s Cultural Quarter. A great place to enjoy a fusion of city living, dining and the arts.Boulevard is Investin's latest urban regeneration project, boasting our typical range of premium amenities and facilities. It will deliver for occupiers in Birmingham a living experience unmatched anywhere else in the city. A beautifully landscaped private courtyard will be the focal point of a flourishing community. For us - and for you - this is an opportunity that is simply too exciting to ignore.KEY FEATURES: 999 year leaseholdPeppercorn ground rentConciergeTwo residents' lounges in phase oneLive/work lounge & private working boothsState-of-the-art gymnasium & fitness studioResidents cinema roomResidents kitchen areaCourtyard gardens & terrace areaBuild complete Q2 2025Location Due to its prime location, Boulevard is set to be a flagship project for the developer, in the Southside district with easy accessto the £1.9 billion Smithfifield Market plan redevelopment and Birmingham Curzon Street HS2 sta on. The development willcreate an enduring 21st-century lifestyle for its residents and provide a renewed sense of purpose to this part of the city.Boulevard is situated in one of Birmingham’s most vibrant and diverse areas: the Southside District. Birmingham’s bea ngcultural heart, embracing Chinatown, theatreland it’s an area as inviti ng and individual as its residents. Superbly located forapartment living the area is currently being transformed into the new ‘front door’ of Birmingham’s City Centre by the £8.7mEnterprise Zone Investment Plan (EZIP).Information Private residents gardenTwo residents lounges with private working boothsPrime Locati on in the Southside districtLarge contemporary living spacesResidents cinema roomResidents kitchen areaCar charging points and cycle baysCCTV monitoring of entrances and car parkState of the art gymnasiumEsti mated Service Charge £2 psfHigh rental demand and circa 5%10 years build warrantyInvestors Information Our connells rental department has confirmed a price of ££1250 / £1300 PCM rental income. Please call our lettings department for more information - price given as of November 2024.Specification o Exclusive Boulevard residents' gym & lounge areao Sprinklers installed throughouto ICW or similar build warrantyo EWS1 A1 complianto EPC rating: Bo Lift access to all levelso Electric vehicle charging pointso Heating via electric panelso White fire resistant internal doors with brushed steel furniture.o Double glazing throughout with doors giving access to terraces / balconies (subject to apartment type)o Entry phone security systemo Satin chrome LED downlightingo White matt finished walls and ceilingo MVHR extractors to bathroom and kitcheno Smoke alarm and heat alarm detectorsKITCHENo Wood laminate flooringo High quality kitchens with soft close drawers and doorso Laminated worktops with matching upstandso Zanussi built in single oveno Zanussi ceramic hob with stainless steel splashbacko Zanussi cooker hoodo Zanussi integrated 70/30 fridge freezero Zanussi integrated dishwashero Zanussi washer dryero 1 ½ sink and drainer with swan neck mixer tapo Under cupboard LED lightingo Brushed stainless steel electrical switches and socketsLIVING AND DININGo Wood laminate flooring, including hallo TV, high speed Internet, BT and Virgin outlets in living area and bedroomso Telephone socketsBATHROOM AND ENSUITESo Vitra sanitaryware to all bathroomso Fixed overhead rain shower head and handseto Thermostatic shower over baths with glass screeno Vitra shower system and enclosure in ensuite with stone shower trayo Ceramic wall tilingo Heated chrome towel railo Wall mounted mirroro Polished chrome toilet roll holderBEDROOMSo Fitted carpeto Fully fitted Vesta space storage wardrobes with grey mirrored sliding doors, graphite woodwork, shelving and chrome rails to bedroom 1COMMUNAL AREASo Communal letterboxeso Secure cycle storeo Landscaped communal courtyard areao External lightingo Parking spaces availableo Porcelain floor tiles to lobby areao Carpet tiles to communal corridorso Solar panels proposed TBCWhy Invest In Birmingham? Boulevard puts you in a prime position to take advantage of the Midlands’ most important regional hub. Demand for purpose-built residential property is currently at an all-time high in Birmingham, fuelled by a growing trend in companies relocating parts of their operations from London to Birmingham, making the city the top destination for relocation outside of the UK capital and for property investment both domestically and from international buyers.£1bn- Growth by end of 2023.Already established as a prosperous, high growth city, major projects including HS2, a regional housing boom and global investment are powering Birmingham's economic growth.24.5% growth - 2022 - 2026. JLL 5 year growth forecast for Birmingham residential property values - the highest in the UK. 14% increase - Rental values. JLL forecast a 14% increase in rental values in Birmingham 2022 - 2026. 41% Graduate retention - With a student population of 80,000, Birmingham retains 41% of graduates, providing an evergreen source of private rental tenants. 32% Of Birmingham City population aged 15 - 34. With the youngest city population in Europe, there is high demand for private rental propertyLease details are currently being compiled. For further information please contact the branch. Please note additional fees could be incurred for items such as leasehold packs.1. MONEY LAUNDERING REGULATIONS - Intending purchasers will be asked to produce identification documentation at a later stage and we would ask for your co-operation in order that there will be no delay in agreeing the sale. 2: These particulars do not constitute part or all of an offer or contract. 3: The measurements indicated are supplied for guidance only and as such must be considered incorrect. 4: Potential buyers are advised to recheck the measurements before committing to any expense. 5: Connells has not tested any apparatus, equipment, fixtures, fittings or services and it is the buyers interests to check the working condition of any appliances. 6: Connells has not sought to verify the legal title of the property and the buyers must obtain verification from their solicitor.BrochuresPDF Property ParticularsFull Details
Location
Address
Bristol Street, Birmingham
City
Birmingham
Features and Finishes
655 SQ FT APARTMENT FOR SALE, IDEAL INVESTMENT OR HOME, COMPLETION QUARTER 1 2025*, A 2 BED & 2 BATH APARTMENT, BALCONY OVERLOOKING COURTYARD, POPULAR BOULEVARD B5 DEVELOPMENT, EXCLUSICE PLOT FOR SALE, CALL US NOW TO VIEW SHOW HOME OR PLANS IN BRANCH
Legal Notice
Our comprehensive database is populated by our meticulous research and analysis of public data. MirrorRealEstate strives for accuracy and we make every effort to verify the information. However, MirrorRealEstate is not liable for the use or misuse of the site's information. The information displayed on MirrorRealEstate.com is for reference only.