Broadmead Road, Folkestone, CT19

GBP 500000 For Sale

Property Details

Bedrooms

4

Bathrooms

4

Property Type

Terraced

Description

Property Details: • Type: Terraced • Tenure: N/A • Floor Area: N/A

Key Features: • Investment opportunity with 6.5% potential • Tenants in situ • Recently installed Double glazing throughout • Basement flat recently renovated • Close to Folkestone Central train station - high speed train link • Three flats GOOD EPC C rating and Basement D (electric)

Location: • Nearest Station: N/A • Distance to Station: N/A

Agent Information: • Address: Lemanis House, Stone Street, Lympne, Hythe, CT21 4JN

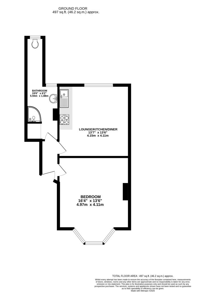
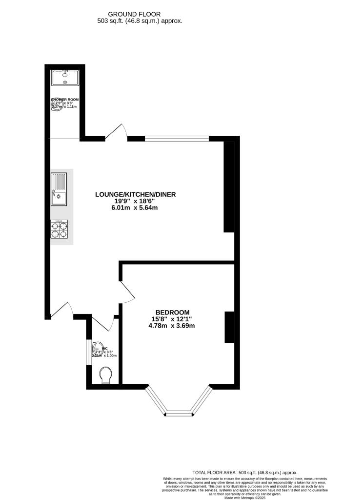
Full Description: The Good Estate Agent is proud to offer to market this investment opportunity to landlords and investors with a potential 6.5% rental yield.  All flats are currently tenanted.The building comprises a renovated basement flat with open plan living and kitchen/dining room with a double bedroom and modern shower and separate toilet. There is also a secluded garden with the basement flat.The basement flat is all electric heating (EPC D), and includes an electric oven, induction hob and extractor fan with modern splashback. There is wooden flooring throughout the open plan living area and carpets in the double bedroom.The ceilings have all been plastered with downlights and double glazing has all been recently installed throughout the building.The next three flats are heated by gas central  heating and have a GOOD EPC C rating.The ground flor has a spacious and modern open plan lounge, kitchen/diner , with a very good sized double bedroom and separate shower room with toilet.The first floor flat has an entrance hall, a spacious lounge/diner, separate kitchen and a good sized double bedroom.Flat three has a modern open plan kitchen, lounge/dining rooms, spacious double bedroom and combined shower room with toilet.Finally the top floor flat has a separate kitchen, lounge/diner, double bedroom and bathroom.There is no off road parking available, however plenty of street parking on this road.Please see photos for the multiple floor plans and individual EPC ratings can be viewed on gov.uk For viewings please contact Michelle Ferbrache at The Good Estate Agent.Council Tax BandThe council tax band for this property is A.BrochuresBrochure 1

Location

Address

Broadmead Road, Folkestone, CT19

City

Folkestone and Hythe District

Features and Finishes

Investment opportunity with 6.5% potential, Tenants in situ, Recently installed Double glazing throughout, Basement flat recently renovated, Close to Folkestone Central train station - high speed train link, Three flats GOOD EPC C rating and Basement D (electric)

Legal Notice

Our comprehensive database is populated by our meticulous research and analysis of public data. MirrorRealEstate strives for accuracy and we make every effort to verify the information. However, MirrorRealEstate is not liable for the use or misuse of the site's information. The information displayed on MirrorRealEstate.com is for reference only.

Real Estate Broker
The Good Estate Agent, National
Brokerage
The Good Estate Agent, National
Top Tags
Tenants in situ
Likes

0

Views

62

This website uses cookies to ensure you get the best experience. Learn more