Bromsgrove, B61 7PN
Property Details
Plot
Description
Property Details: • Type: Plot • Tenure: N/A • Floor Area: N/A
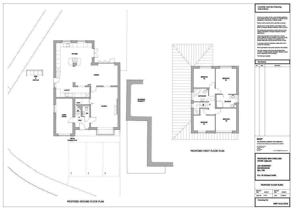
Key Features: • For Sale by Modern Auction – T & C’s apply • Subject to Reserve Price • Buyers Fees Apply • The Modern Method of Auction • Building Plot of Approximately 0.11 of an Acre • Planning Permission Granted to Build 4 Bedroom Detached House of 150m2 (1600sq ft) • Off Road Parking • Enclosed Rear Garden • Situated Near to Sanders Park
Location: • Nearest Station: Bromsgrove Station • Distance to Station: 1.3 miles
Agent Information: • Address: 14 Old Birmingham Road Lickey End Bromsgrove B60 1DE
Full Description: BUILDING PLOT! A fantastic opportunity to purchase a building plot measuring approximately 0.11 of an acre with PLANNING PERMISSION GRANTED to build a four bedroom detached house (1600 sq ft) with parking and an enclosed generous rear garden, situated in the popular Deansway, near Sanders Park, Bromsgrove. The property is offered for sale through the modern method of auction which is operated by iamsold limited.Arden Estates are delighted to offer this unique opportunity to purchase a building plot with full planning approval for the erection of a two-storey, four bedroom detached property of 150m2 (1600 sq ft). The proposed property would feature four bedrooms, spacious living room, large open plan kitchen/diner/utility, family bathroom, en-suite to master, off road parking to the front and an enclosed rear garden.The plot is conveniently located within particularly easy distance from local schools and the town centre offering a small retail park, leisure centre, David Lloyd Gym, Bromsgrove Golf Course and a range of eateries, supermarkets as well as doctors, dentists, Health Centre, library and professional services. Bromsgrove also provides easy access to the national motorway network and commuting to the West Midlands conurbation (from M5 and M42 junctions). In addition, the property is idyllically located on the edge of Sanders Park. Auctioneer Comments.This property is for sale by the Modern Method of Auction. Should you view, offer or bid on the property, your information will be shared with the Auctioneer, iamsold Limited. This method of auction requires both parties to complete the transaction within 56 days of the draft contract for sale being received by the buyers solicitor (for standard Grade 1 properties). This additional time allows buyers to proceed with mortgage finance (subject to lending criteria, affordability and survey). The buyer is required to sign a reservation agreement and make payment of a non-refundable Reservation Fee. This being 4.2% of the purchase price including VAT, subject to a minimum of £6,000.00 including VAT. The Reservation Fee is paid in addition to purchase price and will be considered as part of the chargeable consideration for the property in the calculation for stamp duty liability. Buyers will be required to go through an identification verification process with iamsold and provide proof of how the purchase would be funded. This property has a Buyer Information Pack which is a collection of documents in relation to the property. The documents may not tell you everything you need to know about the property, so you are required to complete your own due diligence before bidding. A sample copy of the Reservation Agreement and terms and conditions are also contained within this pack. The buyer will also make payment of £300 including VAT towards the preparation cost of the pack, where it has been provided by iamsold. The property is subject to an undisclosed Reserve Price with both the Reserve Price and Starting Bid being subject to change.Referral Arrangements.The Partner Agent and Auctioneer may recommend the services of third parties to you. Whilst these services are recommended as it is believed they will be of benefit; you are under no obligation to use any of these services and you should always consider your options before services are accepted. Where services are accepted the Auctioneer or Partner Agent may receive payment for the recommendation and you will be informed of any referral arrangement and payment prior to any services being taken by you.
Location
Address
Bromsgrove, B61 7PN
City
Bromsgrove
Features and Finishes
For Sale by Modern Auction – T & C’s apply, Subject to Reserve Price, Buyers Fees Apply, The Modern Method of Auction, Building Plot of Approximately 0.11 of an Acre, Planning Permission Granted to Build 4 Bedroom Detached House of 150m2 (1600sq ft), Off Road Parking, Enclosed Rear Garden, Situated Near to Sanders Park
Legal Notice
Our comprehensive database is populated by our meticulous research and analysis of public data. MirrorRealEstate strives for accuracy and we make every effort to verify the information. However, MirrorRealEstate is not liable for the use or misuse of the site's information. The information displayed on MirrorRealEstate.com is for reference only.