Brook Lane, Burland

GBP 270000 For Sale

Property Details

Property Type

Plot

Description

Property Details: • Type: Plot • Tenure: N/A • Floor Area: N/A

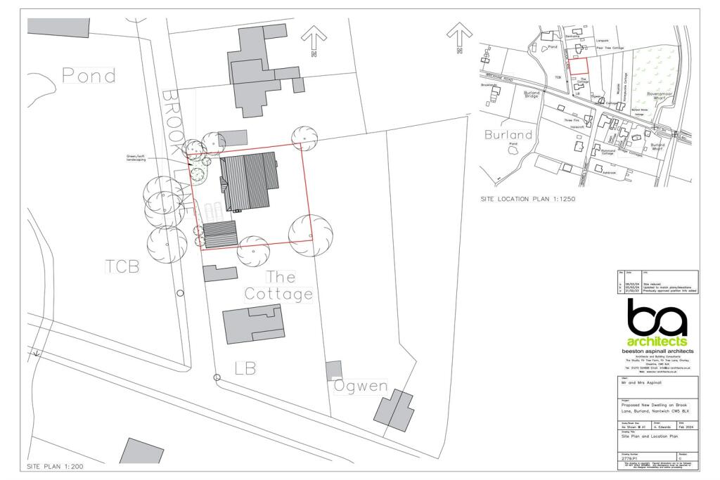
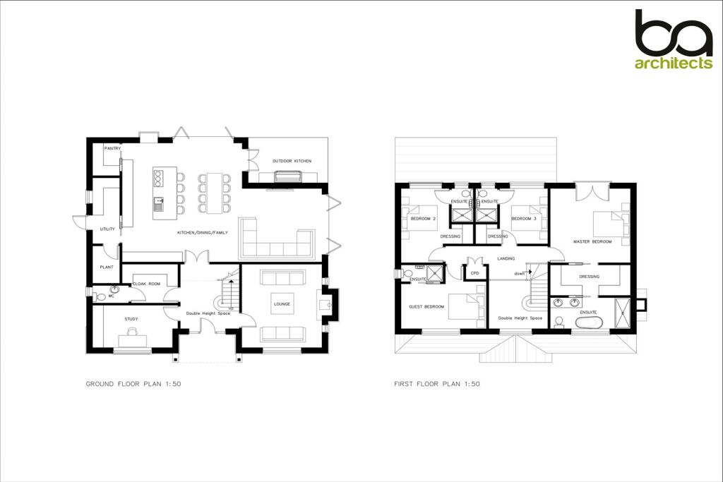
Key Features: • Individual building plot in Burland village, just three miles from Nantwich • Detailed planning permission reference 20/5274N (Cheshire East Council) • For note of variation of conditions reference 24/0310N (Cheshire East Council) • Ideal for private individuals, developers or investors • Superb design and approved plans for unique detached house • 2583 square feet, four bedroom, four en suite design • Permitted development allows for extra storey if required (total 3200 square feet) • Planning and design by leading North West Architects Beeston Aspinall • No through road with rural aspects • Full building regulations package complete and available

Location: • Nearest Station: Nantwich Station • Distance to Station: 2.5 miles

Agent Information: • Address: 62 High Street, Tarporley, CW6 0AG

Full Description: Excellent building plot in a semi rural location on the rural fringe of Nantwich, with benefit of detailed planning permission for a unique residence with four bedrooms, four bathrooms, double garage and gym. Comment from Robert Reed of Gascoigne Halman This is an excellent and rare buying opportunity for private individuals, speculators, investors or developers to acquire a building plot with planning permission to build a two storey architect designed individual detached house, which would extend in size to 2583 square feet. Permission was granted by Cheshire East Planning on 4th July 2023 under planning reference 22/01707/FUL with subsequent variation of conditions. A full building regulations package is complete therefore allowing a prompt build commencement. The plans for the house were created by renowned local practice Beeston Aspinall Architects. The depth, detail and appreciation of the local surroundings are clear for all to see in the design which has an emphasis on natural light and intelligent modern design. The plans passed and submitted have given approval for a four bedroom, four en suite house with outstandingly proportioned open plan kitchen, family and dining area and many other on point design features which combine practicality with style. The provision for an outdoor kitchen is an example of this. Once complete, the new dwelling will stand as part of a no through road and within the context of individual high value houses. As per the plans approved the square footage extends to 2583 square feet. Utilising the option of permitted development, an extra storey, with an overall size of 3200 square feet is possible. The desirability and rarity of the opportunity can not be overstated and I anticipate really good interest in this plot. It is rural in character and feel yet within three miles of the thriving town of Nantwich. For a personal description of the property or to arrange a viewing of the site, please contact myself or a member of the team at the Tarporley office. Location The property enjoys a fine situation in a much sought after part of South Cheshire, within easy, daily travelling distance of the main centres of commerce in the North West and the Potteries. Nantwich (3 miles) offers a comprehensive range of amenities as does the county town of Chester which is 18 miles distance. On the recreational front, there are cricket, tennis and rugby clubs in Nantwich, golf courses at Tarporley, Crewe and Whitchurch.The M6 motorway (junction 16) is 12 miles and travel to London is available via Crewe station which is 7 miles, providing a 90 minutes intercity service to London Euston and there is also a railway station in Nantwich itself which feeds into Crewe. Directions Directions - From Nantwich take the A534 Chester Road as far as Acton, turn left by the church on to Wrexham Road, continue for 1 miles over the canal bridge and turn right into Brook Lane. VIEWING Viewing by appointment with the Agents Tarporley office.CIL Interested parties are encouraged to check with the relevant local authority with regards to any payment owed as part of Community Infrastructure Levy provisions. WANT TO MOVE BUT NEED TO SELL? If you are interested in this property but need to sell your own home in Cheshire, South Manchester or the Peak District, Gascoigne Halman can provide a free, no obligation market appraisal and valuation of your own home. We are proud to be the leading estate agent in the area, with a network of twenty two offices - full contact details can be located on our website. Robert Reed is the manager of the Tarporley office.The Tarporley team consists of Robert, Pamela, Oliver, Sally, Sam, Tresa, Zoe, Clive and Jerry - we pride ourselves on being not just professional and efficient but also warm and welcoming. If you are in the village and fancy a coffee, do come in and say hello. We are located at 62 High Street, Tarporley, six premises to the left of Tarporley Parish Church. Our building is a landmark in the village, having above the shop front a beautiful illuminated fully working heritage clock.NOTICE Gascoigne Halman for themselves and for the vendors or lessors of this property whose agents they are give notice that: (i) the particulars are set out as a general outline only for the guidance of intending purchasers or lessees, and do not constitute, nor constitute part of, an offer or contract; (ii) all descriptions, dimensions, references to condition and necessary permissions for use and occupation, and other details are given in good faith and are believed to be correct but any intending purchasers or tenants should not rely on them as statements or representations of fact but must satisfy themselves by inspection or otherwise as to the correctness of each of them; (iii) no person in the employment of Gascoigne Halman has any authority to make or give any representation or warranty whatever in relation to this propertyBrochuresBrochure

Location

Address

Brook Lane, Burland

City

Burland

Features and Finishes

Individual building plot in Burland village, just three miles from Nantwich, Detailed planning permission reference 20/5274N (Cheshire East Council), For note of variation of conditions reference 24/0310N (Cheshire East Council), Ideal for private individuals, developers or investors, Superb design and approved plans for unique detached house, 2583 square feet, four bedroom, four en suite design, Permitted development allows for extra storey if required (total 3200 square feet), Planning and design by leading North West Architects Beeston Aspinall, No through road with rural aspects, Full building regulations package complete and available

Legal Notice

Our comprehensive database is populated by our meticulous research and analysis of public data. MirrorRealEstate strives for accuracy and we make every effort to verify the information. However, MirrorRealEstate is not liable for the use or misuse of the site's information. The information displayed on MirrorRealEstate.com is for reference only.

Real Estate Broker
Gascoigne Halman, Tarporley
Brokerage
Gascoigne Halman, Tarporley
Top Tags
2583 square feet four bedroom
Likes

0

Views

91

This website uses cookies to ensure you get the best experience. Learn more