Brook Park West Retail Park, Clacton On Sea, Essex, CO16

GBP 10833 For Rent

Property Details

Property Type

7,607-15,281 sq ft

Description

Property Details: • Type: 7,607-15,281 sq ft • Tenure: N/A • Floor Area: N/A

Key Features: • Brand New Retail Warehouse Units In A Prime Location • Available Spring 2025 • Prime Location in a vibrant retail Park • Modern Spec New Build Units • Generous On Site parking • Easy Access to A133/A120/A12 • Adjacent M&S, Lidl and Pets at Home

Location: • Nearest Station: Clacton Station • Distance to Station: 1.3 miles

Agent Information: • Address: 882 Colchester Business Park The Crescent, Colchester Business Park, Colchester, CO4 9YQ

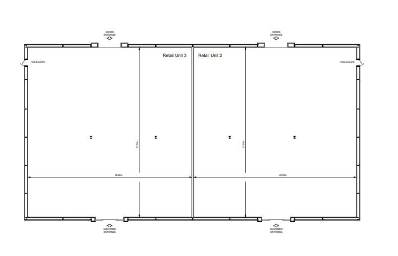
Full Description: Brook Park West is a vibrant development featuring prominent retail and leisure facilities. The park is home to well-known brands like Lidl, Pets at Home, Marks & Spencer Foodhall, McDonald's, Costa Coffee, and Marston's, ensuring excellent customer traffic and a dynamic shopping environment. Additionally, it is situated opposite Brook Park which features B&Q, Currys, Tesco extra, KFC and Pizza Hut.The site offers convenient access to Clacton Town Centre via the A133 and direct links to the A120 and A12, connecting to Ipswich, Colchester, and London . Clacton-on-Sea train station is just a short car journey away (approx. 6 mins), offering excellent transport links to Colchester (30 mins) and London Liverpool Street (90 mins). DESCRIPTIONThe retail units are located next to the newly opened M&S food store and feature a ground floor open plan layout with an optional floating mezzanine floor. Units 2 and 3 are connected along their front elevations and thus appear as one block but can be easily split into two units.The front of the units are approx. 9.9m high with the roof sloping to the rear approx. 8.7m high. A rear shutter door provides convenient access for goods and equipment.There are 110 car spaces shared between Unit 2 and 3 and the Costa drive Thru. ACCOMMODATION [Approximate Gross Internal Floor Areas] Unit 2: 7,607 sq ft [706.71 sq m] approx. £130,000 Unit 3: 7,674 sq ft [712.96 sq m] approx. £130,000 Units 2/3: 15,281 sq ft [1,419.6 sq m] approx. £260,000TERMS The premises are available to let on a new effective full repairing and insuring lease, with lease length and terms to be agreed, subject to a minimum unbroken lease term of ten years, at a rent as outlined above,SERVICE CHARGEA service charge may be applicable to cover costs of the maintenance of the communal external areas. Exact figures to be confirmed. BUSINESS RATES The premises have not yet been accessed. BUILDINGS INSURANCEThe buildings insurance is to be arranged by the landlord with the cost to be recovered from the tenant. ENERGY PERFORMANCE CERTIFICATE [EPC] A full copy of the EPC assessment and recommendation report will be available upon completion, from our office upon request. VATVAT will be applicable on the rent and service. All rents and prices are exclusive of VAT under the Finance act 1989.LEGAL COSTSEach party will bear their own legal costs. ANTI-MONEY LAUNDERING REGULATIONS Anti-Money Laundering Regulations require Fenn Wright to formally verify prospective purchaser's identity, residence and source of funds prior to instructing solicitors.VIEWINGS STRICTLY BY APPOINTMENT VIA LETTING AGENTS:Fenn WrightT: E:

Location

Address

Brook Park West Retail Park, Clacton On Sea, Essex, CO16

City

Southampton

Features and Finishes

Brand New Retail Warehouse Units In A Prime Location, Available Spring 2025, Prime Location in a vibrant retail Park, Modern Spec New Build Units, Generous On Site parking, Easy Access to A133/A120/A12, Adjacent M&S, Lidl and Pets at Home

Legal Notice

Our comprehensive database is populated by our meticulous research and analysis of public data. MirrorRealEstate strives for accuracy and we make every effort to verify the information. However, MirrorRealEstate is not liable for the use or misuse of the site's information. The information displayed on MirrorRealEstate.com is for reference only.

Real Estate Broker
Fenn Wright, Colchester Business Park Commercial Sales & Lettings
Brokerage
Fenn Wright, Colchester Business Park Commercial Sales & Lettings
Top Tags
Likes

0

Views

63

This website uses cookies to ensure you get the best experience. Learn more