Broomfield Road, Chelmsford, Essex, CM1
Property Details
764-4,100 sq ft
Description
*** PRICE ON APPLICATION ***
Property Details: • Type: 764-4,100 sq ft • Tenure: N/A • Floor Area: N/A
Key Features: • close to City Centre • Excellent parking • male, femaie & disabled WCs on each floor • concierge • aircon via VRV air handling units • DDA lift • 2nd passenger lift • newly refurbished • can be let as a single area of 4,100sq ft • 4 seperate suites available
Location: • Nearest Station: Chelmsford Station • Distance to Station: 0.2 miles
Agent Information: • Address: 204 New London Road, Chelmsford, CM2 9AB
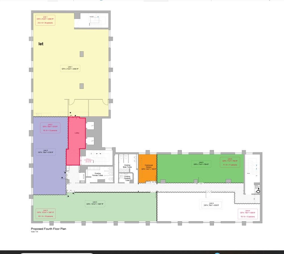
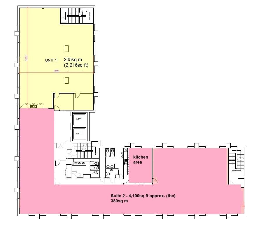
Full Description: Hyatt Place is a landmark building that has recently been comprehensively refurbished to provide quality office space with the 4th floor being split into 5 separate areas with Unit 1 under offer. The accommodation has suspended ceilings with recessed low energy light fittings, air-conditioning via VRV air-handling units with full heat recovery. There is a communal kitchen shared by Units 2, 3 4 & 5 with each unit being separately metered for electricity. There are male, female and disabled toilets on each floor. Entry to the building is via an attractive manned reception area. The building also benefits from 2 passenger lifts. The EPC for the building is C62.
Available as 4 suites - rents are exclusive of service charge and VAT
Unit 2 - 818sq ft (76sq m) Rent £16,360pa (£1,364pcm) S/c £4,900pa tbc Unit 3 - 1,087sq ft (101sq m) Rent £21,740pa (£1,812pcm) S/c £6,522pa tbc Unit 4 - 839sq ft (78sq m) Rent £17,106pa (£1,426pcm) S/c £5,000pa tbc Unit 5 - 764sq ft (71sq m) Rent £15,280pa (£1,274pcm) S/c £4,585pa tbc
Can be let as a single area "Suite 2" offering 4,100sq ft (380sq ft) including kitchen area at a rent of £82,000per annum exclusive of service charge (approx £24,600pa tbc) and VAT
RATEABLE VALUE The offices are to be re-assessed
LOCATION: The building is in central Chelmsford, close to the junction of Broomfield Road and Parkway (A1061) and a short walk from both the City Centre and the Railway Station (London Liverpool Street 35mins). The City of Chelmsford, approx. 35 miles north-east of central London has excellent communications with direct access via the A12 to the M25 (J28). Stansted Airport and the M11 (J8) are easily accessible.
TERMS AND CONDITIONS: Available on new full repairing and insuring leasing by way of service charge.
PARKING: Allocated spaces in the private on-site car park. Unit 2 - 3 spaces Unit 3 - 3 spaces Unit 4 - 2 spaces Unit 5 - 3 spaces
LEGAL COSTS: Each party to be responsible for their own legal costs.Energy Performance CertificatesEPC
Location
Address
Broomfield Road, Chelmsford, Essex, CM1
City
Chelmsford
Features and Finishes
close to City Centre, Excellent parking, male, femaie & disabled WCs on each floor, concierge, aircon via VRV air handling units, DDA lift, 2nd passenger lift, newly refurbished, can be let as a single area of 4,100sq ft, 4 seperate suites available
Legal Notice
Our comprehensive database is populated by our meticulous research and analysis of public data. MirrorRealEstate strives for accuracy and we make every effort to verify the information. However, MirrorRealEstate is not liable for the use or misuse of the site's information. The information displayed on MirrorRealEstate.com is for reference only.