Browns Creek Road Subdivision, South Nowra NSW 2541
Property Details
Vacant Land
Description
Property Details: • Type: Vacant Land
• Bedrooms: 0 • Bathrooms: 0
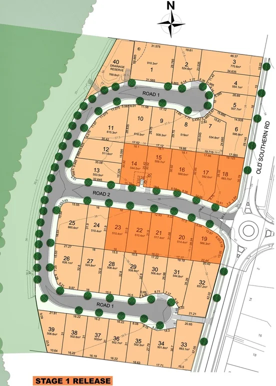
Description: We're excited to announce the highly anticipated Stage One release at Browns Creek Subdivision offering 10 premium residential blocks ranging from 545sqm to 683sqm. Positioned in a growing and family-friendly location, these generously sized blocks are the perfect canvas for your dream home or next investment. With quality homes already surrounding the area and easy access to local shops, schools, and recreational spaces, Browns Creek offers a lifestyle that's both convenient and peaceful. Block Sizes - (APPROX) 14 - 545 SQM 15 - 560 SQM 16 - 569 SQM 17 - 592 SQM 18 - 683 SQM 19 - 566 SQM 20 - 514 SQM 21 - 517 SQM 22 - 510 SQM 23 - 510 SQM Opportunities like this don't come around often. Whether you're upsizing, downsizing, or building for the first time, Browns Creek has the space and setting to make it happen. Exclusive incentives now available for both builders and owner-occupiers - including landscaping packages, driveway inclusion options and design support. Enquire today to learn more; or discuss further stages and lots available
Location
Address
Browns Creek Road Subdivision, South Nowra NSW 2541
City
South Nowra
Features and Finishes
None
Legal Notice
Our comprehensive database is populated by our meticulous research and analysis of public data. MirrorRealEstate strives for accuracy and we make every effort to verify the information. However, MirrorRealEstate is not liable for the use or misuse of the site's information. The information displayed on MirrorRealEstate.com is for reference only.