Bruce Facility, Badentoy Industrial Estate, Portlethen, Aberdeen, AB12

GBP 0 For Sale

Property Details

Property Type

45,144 sq ft

Description

*** PRICE ON APPLICATION ***

Property Details: • Type: 45,144 sq ft • Tenure: N/A • Floor Area: N/A

Key Features: • Comfort cooling • High Bay Sodium • Parking • Toilets • Insulated Pressed Steel

Location: • Nearest Station: Portlethen Station • Distance to Station: 1.4 miles

Agent Information: • Address: 4 Albert Street, Aberdeen, AB25 1XQ

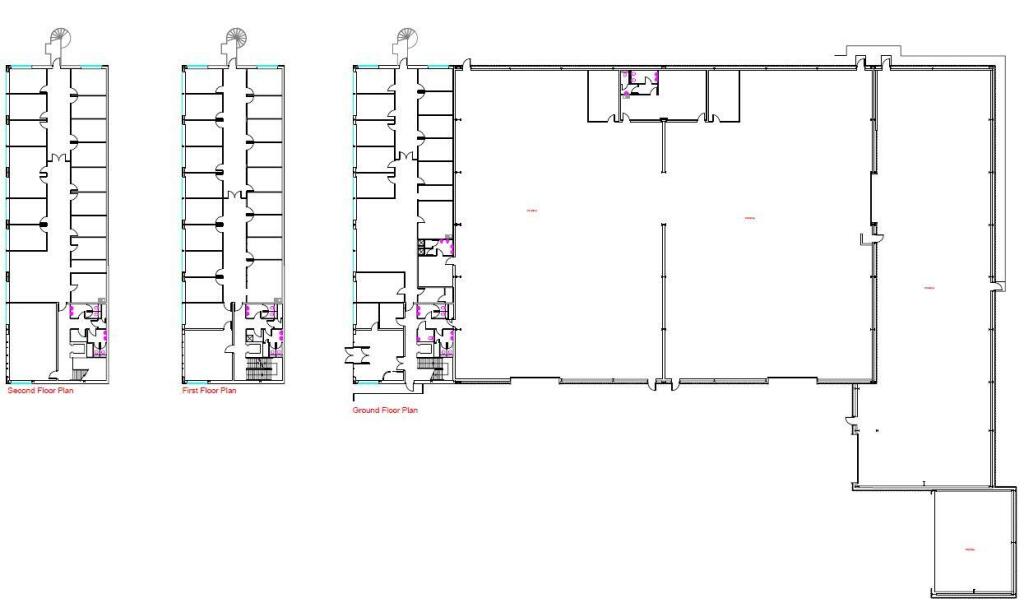
Full Description: Quoting Rent £523821.00 The property comprises a detached industrial facility of steel portal frame construction which includes workshop, warehouse and office accommodation over three floors, along with a secure yard and car park.The industrial section includes three bays that are interconnecting all with the vehicular access to the concrete yard via roller shutter doors. The workshop and warehouse benefit from two 10 Tonne cranes and three 5 Tonne cranes.The office and welfare accommodation is arranged over three floors and includes a mixture of open plan and cellular office accommodation. The specification is of a high standard throughout to include comfort cooling, raised access floors, sensor lighting and double glazed windows throughout. Externally there is a secure concrete yard, which includes a wash bay to the rear of the site. In addition to the yard there is also a large 80 space car park.The property is located within Badentoy Industrial Estate and occupies a prominent corner position on the corner of Badentoy Avenue. Badentoy Industrial Estate is a well established and popular business locationsituated just seven miles south of Aberdeen. The property is approximately 3.5 miles from the Charleston Junction of the AWPR, which provides access to all points North, South and West of Aberdeen. Major energy sector occupiers are already based in Badentoy , including Baker Hughes, KCA Deutag , Saltire Energy and Schlumberger.

Location

Address

Bruce Facility, Badentoy Industrial Estate, Portlethen, Aberdeen, AB12

City

Aberdeen

Features and Finishes

Comfort cooling, High Bay Sodium, Parking, Toilets, Insulated Pressed Steel

Legal Notice

Our comprehensive database is populated by our meticulous research and analysis of public data. MirrorRealEstate strives for accuracy and we make every effort to verify the information. However, MirrorRealEstate is not liable for the use or misuse of the site's information. The information displayed on MirrorRealEstate.com is for reference only.

Real Estate Broker
Knight Frank, Aberdeen - Commercial
Brokerage
Knight Frank, Aberdeen - Commercial
Top Tags
Likes

0

Views

165

This website uses cookies to ensure you get the best experience. Learn more