Bruce Street, Mountain Ash

GBP 65000 For Sale

Property Details

Property Type

Land

Description

Property Details: • Type: Land • Tenure: N/A • Floor Area: N/A

Key Features:

Location: • Nearest Station: Mountain Ash Station • Distance to Station: 0.1 miles

Agent Information: • Address: 1 Oxford Street, Mountain Ash, CF45 3PG

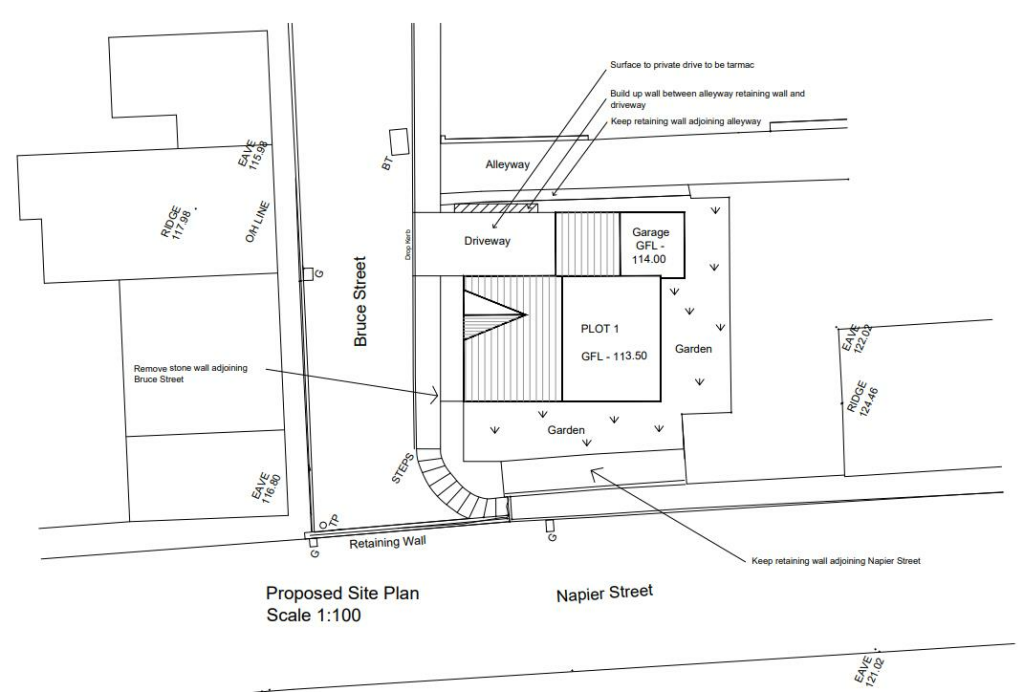
Full Description: **INVESTMENT OPPORTUNITY** A plot of land with outline planning for a 3 bedroom detached property with garage and drive. Situated on the outskirts of Mountain Ash town centre with all its amenities and travel links to Aberdare and Cardiff nearby. It is also within easy reach of the A470 and on to the A465.Planning link: BrochuresBruce Street, Mountain AshBrochure

Location

Address

Bruce Street, Mountain Ash

City

Mountain Ash

Legal Notice

Our comprehensive database is populated by our meticulous research and analysis of public data. MirrorRealEstate strives for accuracy and we make every effort to verify the information. However, MirrorRealEstate is not liable for the use or misuse of the site's information. The information displayed on MirrorRealEstate.com is for reference only.

Real Estate Broker
Durbin & Co, Aberdare
Brokerage
Durbin & Co, Aberdare
Top Tags
Likes

0

Views

89

This website uses cookies to ensure you get the best experience. Learn more