Building Land at, 26 Queensway

GBP 200000 For Sale

Property Details

Property Type

Land

Description

Property Details: • Type: Land • Tenure: N/A • Floor Area: N/A

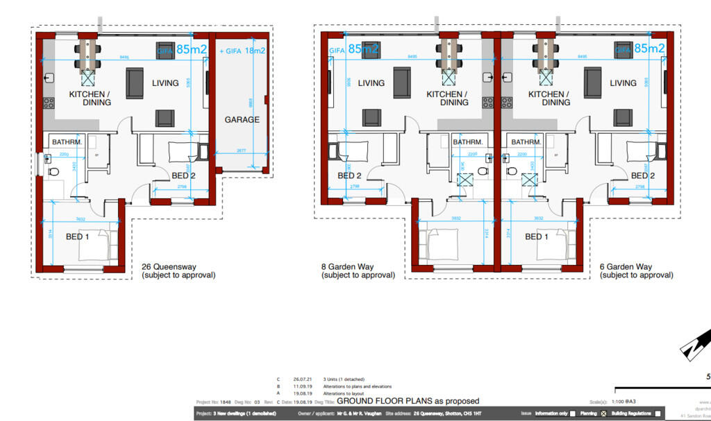
Key Features: • BUILDING LAND • PLANNING FOR THREE BUNGALOWS:- • ONE DETACHED BUNGALOW • TWO SEMI DETACHED BUNGALOWS

Location: • Nearest Station: Shotton Station • Distance to Station: 0.3 miles

Agent Information: • Address: 33, Chester Road West, Shotton, Deeside, CH5 1BY

Full Description: DESCRIPTION: An ideal opportunity for a developer/builder to acquire a piece of building land in an excellent location with planning for 3 bungalows. One detached bungalow with garage and two semi detached bungalows. The planning application is 063741. The commuted sum has been paid to Flintshire County Council and Welsh Water have been paid for the section 104 adoption agreement. The site is cleared and ready to go. DIRECTIONS: Turn right out of our Shotton Office and immediately right into King George Street. Take the third right into Queensway and continue ahead at the crossing into a continuation of Queensway where the land will be seen on the right hand side in a corner position between Queensway and Garden Way.

Location

Address

Building Land at, 26 Queensway

City

Thetford

Features and Finishes

BUILDING LAND, PLANNING FOR THREE BUNGALOWS:-, ONE DETACHED BUNGALOW, TWO SEMI DETACHED BUNGALOWS

Legal Notice

Our comprehensive database is populated by our meticulous research and analysis of public data. MirrorRealEstate strives for accuracy and we make every effort to verify the information. However, MirrorRealEstate is not liable for the use or misuse of the site's information. The information displayed on MirrorRealEstate.com is for reference only.

Real Estate Broker
Molyneux, Shotton
Brokerage
Molyneux, Shotton
Top Tags
Type: Land Building Land at 26 Queensway
Likes

0

Views

55

This website uses cookies to ensure you get the best experience. Learn more