BUILDING PLOT FOR SALE, Ellerslie, Bury Fold Lane, Darwen, BB3
Property Details
Land
Description
Property Details: • Type: Land • Tenure: N/A • Floor Area: N/A
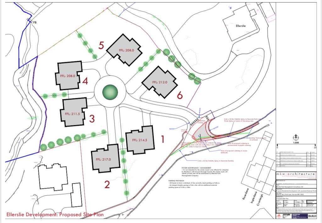
Key Features: • Investment Opportunity • Building Plot for 6 Luxury Detached Homes • 4000 sqft Houses • Secluded Location Surrounded By Woodland & Countryside
Location: • Nearest Station: Darwen Station • Distance to Station: 1.0 miles
Agent Information: • Address: 454 Darwen Road, Bromley Cross, Bolton, BL7 9DX
Full Description: Development opportunity!Building plot with full planning permission to build six luxury houses, each house spanning approx 4,000 sqft.This truly stunning building plot is approx. 2.3 acres and situated in a lovely leafy green area surrounded by picturesque woodland and open countryside, which is tucked away up on the hillside on the fringe of the West Pennine Moors, just off Bury Fold Lane. Such a secluded location but in turn it also benefits from having the amenities of Darwen and neighbouring Bolton and Blackburn just a short drive away, from schools to transport links, pubs, restaurants and leisure facilities, it's all nearby!Ellerslie Manor House is situated next to the land, is it accessed via a long sweeping driveway, this has been converted into four spacious apartments with well kept gardens and could potentially be included in the land purchase via separate negotiation, there is also an additional three building plots (the planning has lapsed on these three plots but we believe there would be no issues re-applying for planning permission and it being granted)Call the office on for more information.Out & About- Located on Bury Fold Lane, in the sought after Whitehall area of Darwen which is quickly becoming a thriving market town. Surrounded by the scenic West Pennine Moors, ideal for walks and outdoor pursuits. Darwen has a number of brand supermarkets, local shops and heritage listed buildings. There are local amenities including highly regarded primary schools, pubs, cafes, post office, to name a few, all within walking distance.The surrounding towns are close at hand via the A666 including Bolton-8 miles, Blackburn-6 miles and Manchester-20 miles. The M65 motorway is 3 miles and Darwen train station 2 miles providing ideal commuter access to Manchester one way and the Ribble Valley the other.Approx. Land BoundaryLandEllerslie HouseAdditional PicturesAgents NotesWilliam Thomas Estates for themselves and for vendors or lessors of this property whose agents they are given notice that: (i) the particulars are set out as a general outline only for the guidance of intended purchasers or lessees and do not constitute nor constitute part of an offer or a contract. (ii) all descriptions, dimensions, reference to condition and necessary permissions for use and occupation and other details are given without responsibility and any intending purchasers or tenants should not rely on them as statements or representations of fact but must satisfy themselves by inspection or otherwise as to the correctness of each of them (iii) no person in the employment of William Thomas Estates has authority to make or give any representations or warranty whatever in relation to this property
Location
Address
BUILDING PLOT FOR SALE, Ellerslie, Bury Fold Lane, Darwen, BB3
City
Darwen
Features and Finishes
Investment Opportunity, Building Plot for 6 Luxury Detached Homes, 4000 sqft Houses, Secluded Location Surrounded By Woodland & Countryside
Legal Notice
Our comprehensive database is populated by our meticulous research and analysis of public data. MirrorRealEstate strives for accuracy and we make every effort to verify the information. However, MirrorRealEstate is not liable for the use or misuse of the site's information. The information displayed on MirrorRealEstate.com is for reference only.