Building Plot Nevill Road, Hove, East Sussex, BN3 6BF

GBP 125000 For Sale

Property Details

Property Type

Land

Description

Property Details: • Type: Land • Tenure: N/A • Floor Area: N/A

Key Features:

Location: • Nearest Station: Aldrington Station • Distance to Station: 0.9 miles

Agent Information: • Address: Austin Gray LLP, 37 Vernon Terrace, Brighton, BN1 3JH

Full Description: **For Sale By Auction on Thursday 13 March 2025**

*Guide Price £125,000-£135,000

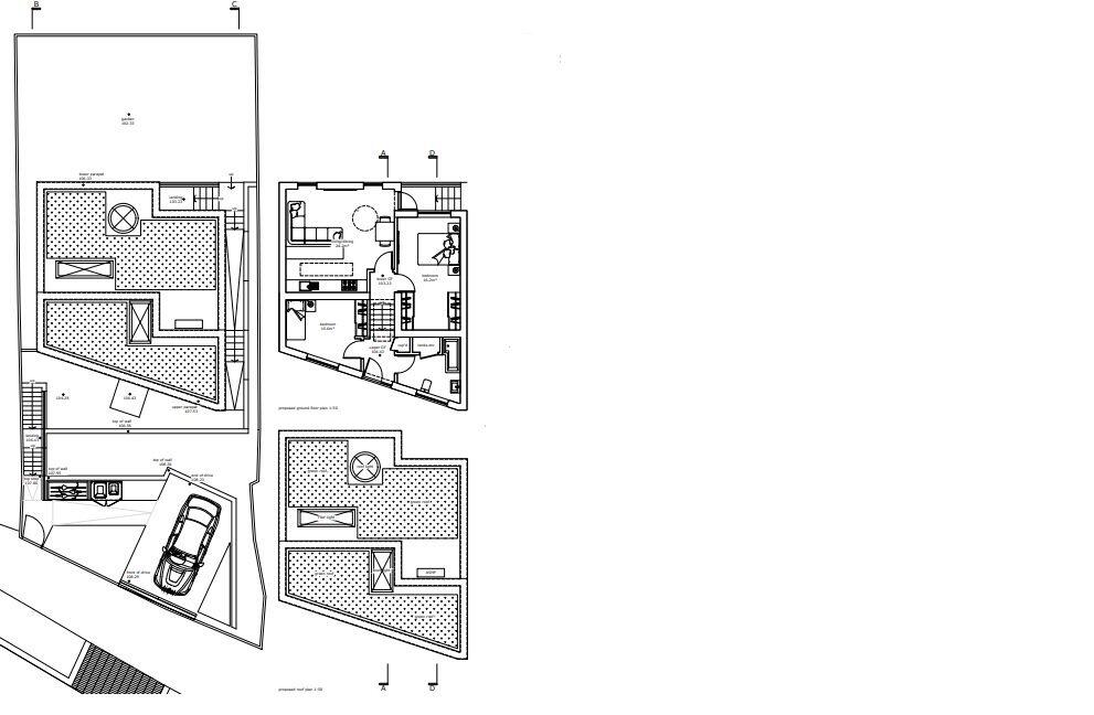
Land with Planning Permission for a single storey split level 2 bedroom detached dwelling

Description An unusual opportunity to acquire a plot of land in the residential area of Nevill Road, Hove. A planning application was made on the 22nd May 2023, for the erection of 1no single storey split level two bedroom detached dwelling house (C3) on the land rear of 116 Goldstone Crescent fronting Nevill Road, with associated parking and landscaping. Planning permission was granted on the 19th July 2023.

The proposed 70 sq m dwelling comprises 2 bedrooms, open plan living area, bathroom/wc, along with private garden and car parking space

The site is currently overgrown.

Planning Planning reference BH2023/01489

Situation The land is situated immediately adjacent to Balmoral Court (north side) in North Hove with easy access out of Brighton/Hove to the A23. Local shopping facilities are to hand and the facilities of the City of Brighton and Hove are within easy reach. Hove Station is about a 20 minute walk

NB WE DRAW YOUR ATTENTION TO THE SPECIAL CONDITIONS IN THE LEGAL PACK, REFERRING TO OTHER CHARGES IN ADDITION TO THE PURCHASE PRICE. PLEASE ENSURE YOU READ THE SPECIAL CONDITIONS THOROUGHLY

The photographs and measurements used are only to provide an indication of the plots location and size. Buyers should rely on the title and title plan provided in the legal pack for accurate boundary locations.

Location

Address

Building Plot Nevill Road, Hove, East Sussex, BN3 6BF

City

Brighton and Hove

Legal Notice

Our comprehensive database is populated by our meticulous research and analysis of public data. MirrorRealEstate strives for accuracy and we make every effort to verify the information. However, MirrorRealEstate is not liable for the use or misuse of the site's information. The information displayed on MirrorRealEstate.com is for reference only.

Real Estate Broker
Austin Gray, Auction House Sussex
Brokerage
Austin Gray, Auction House Sussex
Top Tags
bathroom/wc
Likes

0

Views

65

This website uses cookies to ensure you get the best experience. Learn more