Building Plot Off High Street, Porth
Property Details
Plot
Description
Property Details: • Type: Plot • Tenure: N/A • Floor Area: N/A
Key Features:
Location: • Nearest Station: Tonypandy Station • Distance to Station: 1.6 miles
Agent Information: • Address: Unit 3, 97 Dunraven Street Tonypandy CF40 1AR
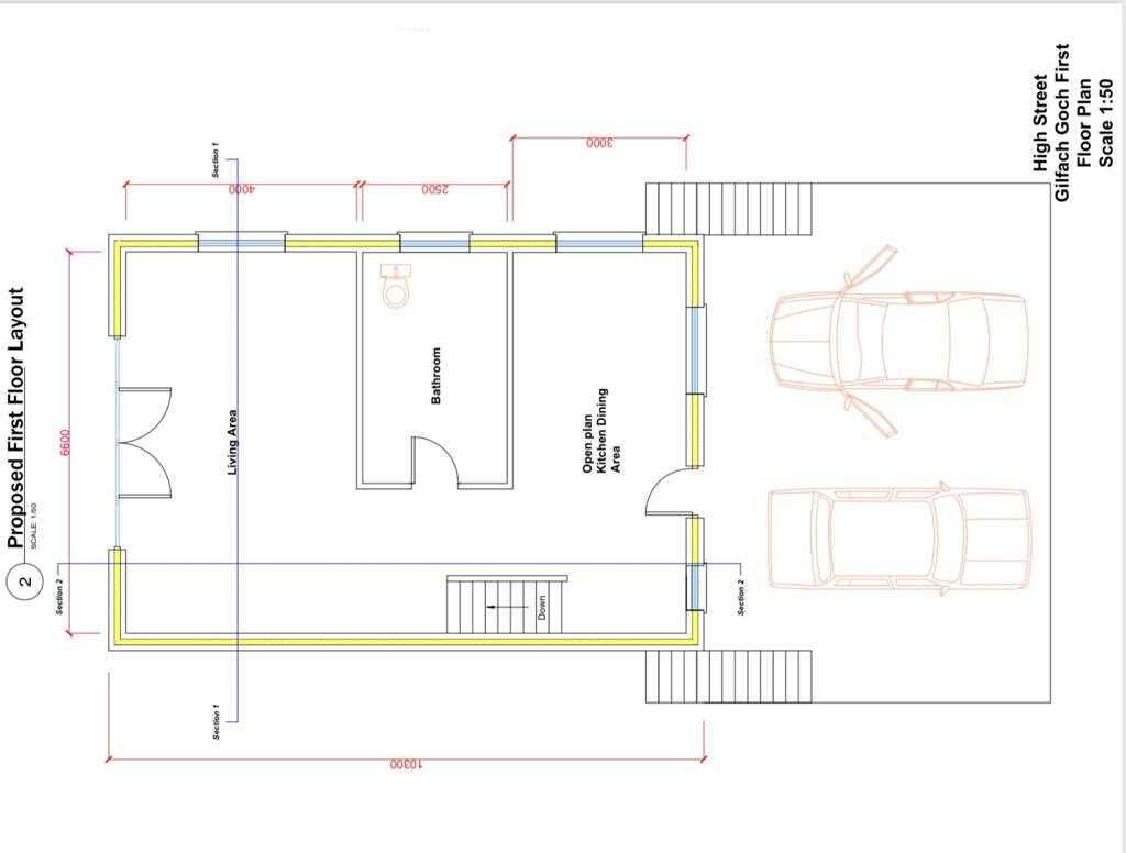
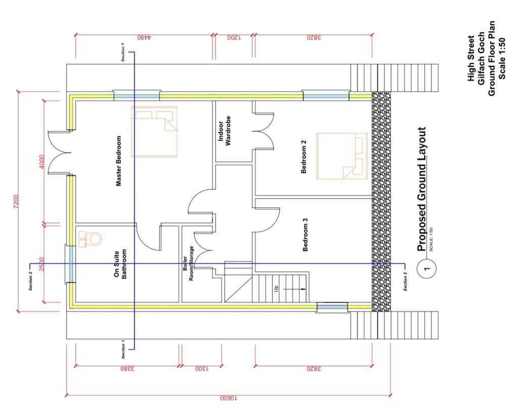
Full Description: This plot comes with full planning permission granted for a stunning 2 storey dorma bungalow, offering 3 bedrooms for comfortable living. Perfect for those wanting to build their dream home in a peaceful and scenic location. With nearby points of interest including beautiful parks and local amenities just a short distance away, this is a chance not to be missed. Call now to arrange a viewing and make your dream home a reality. The site is 9m x 25m, located in Gilfach Goch Rhondda Cynon Taff with good access to road links to M4 Cardiff. GENERAL NOTES; Any information contained herein should be verified by prospective purchasers or their advisors prior to any formal commitment to purchase. The proceeds of crime act 2002 & anti money laundering rules 2007 require us to obtain both personal and residence identification from all purchasers where an offer has been made and accepted. Please arrange for the appropriate identification to be provided, when asked. The vendor has verbally informed us that the property is of freehold tenure although this should be confirmed by the acting solicitors. Prospective purchasers are also advised to satisfy themselves as to the location and availability of mains services.Plot Image 1Plot Image 2Plot Image 3Plot Image 4
Location
Address
Building Plot Off High Street, Porth
City
Building Plot Off High Street
Features and Finishes
None
Legal Notice
Our comprehensive database is populated by our meticulous research and analysis of public data. MirrorRealEstate strives for accuracy and we make every effort to verify the information. However, MirrorRealEstate is not liable for the use or misuse of the site's information. The information displayed on MirrorRealEstate.com is for reference only.