Building Plot on Ewenny Road, Ewenny, Bridgend, CF35 5AW

GBP 240000 For Sale

Property Details

Property Type

Plot

Description

Property Details: • Type: Plot • Tenure: N/A • Floor Area: N/A

Key Features:

Location: • Nearest Station: Bridgend Station • Distance to Station: 1.1 miles

Agent Information: • Address: 55 High Street, Cowbridge, CF71 7AE

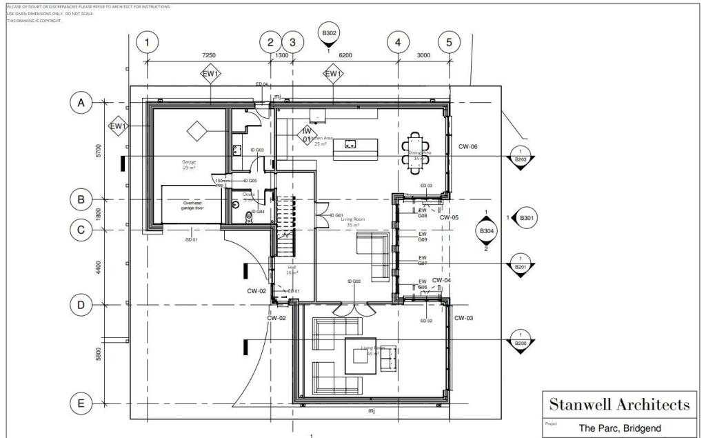
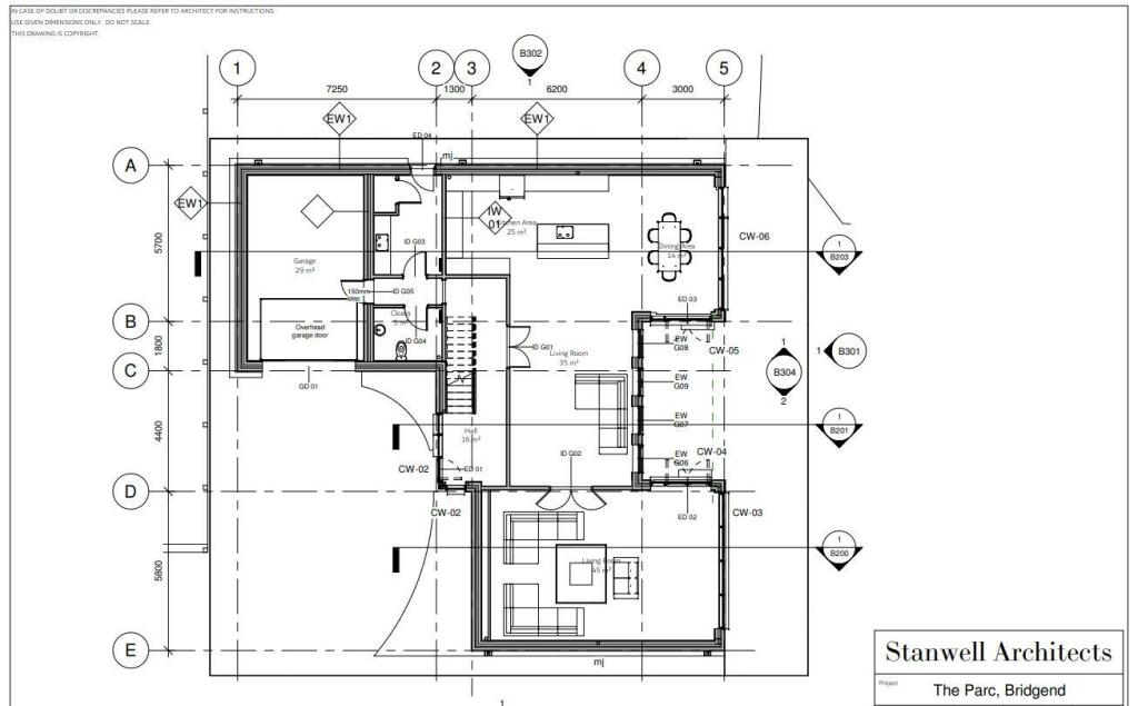
Full Description: In a superb location, conveniently located for the Town Centre and within a stroll of Brynteg Comprehensive School; and a short drive to Ogmore by Sea beach and the Heritage Coast. An exciting opportunity to purchase a sizeable plot available with Planning Permission with Reserved Matters for a contemporary detached, five bedroom family home with integral garage. Plans include ultra-modern open plan family kitchen/living to the ground floor and a separate lounge. Also a utility room and a WC. Five double bedrooms, two en suites and a family bathroom. Private driveway parking. South-facing gardens.Situation - Nestled to the rear of 'The Parc' on Ewenny Road, which is a stunning period property, and having the benefit of excellent commuting options. This sizeable plot would prove an ideal family home, tucked away from the road which leads through to the Vale Of Glamorgan.About The Property - In a superb location, conveniently located for the Town Centre and within a stroll of Brynteg Comprehensive School; and a short drive to Ogmore by Sea beach and the Heritage Coast. An exciting opportunity to purchase a sizeable plot available with Planning Permission with Reserved Matters for a contemporary detached, five bedroom family home with integral garage. Plans include ultra-modern open plan family kitchen/living to the ground floor and a separate lounge. Also a utility room and a WC. Five double bedrooms, two en suites and a family bathroom. Private driveway parking. South-facing gardens.Planning ref: P/21/594/RES.BrochuresBuilding Plot on Ewenny Road, Ewenny, Bridgend, CFBrochure

Location

Address

Building Plot on Ewenny Road, Ewenny, Bridgend, CF35 5AW

City

Ewenny

Legal Notice

Our comprehensive database is populated by our meticulous research and analysis of public data. MirrorRealEstate strives for accuracy and we make every effort to verify the information. However, MirrorRealEstate is not liable for the use or misuse of the site's information. The information displayed on MirrorRealEstate.com is for reference only.

Real Estate Broker
Watts & Morgan, Cowbridge
Brokerage
Watts & Morgan, Cowbridge
Top Tags
Ewenny Bridgend CF35 5AW
Likes

0

Views

67

This website uses cookies to ensure you get the best experience. Learn more