Building Plot, St. Brides Road, Wick, Cowbridge, Vale of Glamorgan, CF71 7QB
Property Details
Plot
Description
Property Details: • Type: Plot • Tenure: N/A • Floor Area: N/A
Key Features:
Location: • Nearest Station: Llantwit Major Station • Distance to Station: 3.8 miles
Agent Information: • Address: 3 Washington Buildings, Stanwell Road, Penarth, CF64 2AD
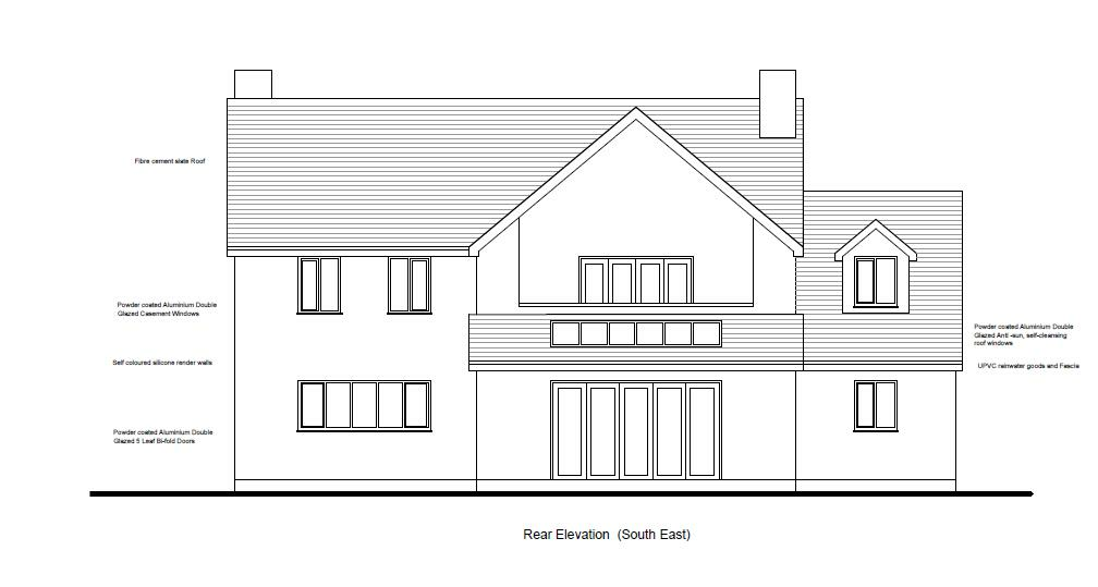
Full Description: An exciting opportunity to purchase a sizeable plot set located in the highly sought after village of Wick. Found a short drive from Southerndown/Ogmore by Sea beaches and to Cowbridge High Street.Full Planning Permission has been granted for a contemporary detached, four bedroom family home. Plans include a spectacular open plan family kitchen/living room to the ground floor with a separate lounge and study. A large utility room and a WC. Four spacious double bedrooms and a family bathroom with the primary bedroom benefitting from an en-suite and dressing room. Private driveway parking and spacious gardens. Planning Reference: 2022/00588/FUL.Property Description - A prime building plot with full planning permission for a contemporary detached, four bedroom family home. Plans include a spectacular open plan family kitchen/living room to the ground floor with a separate lounge and study. A large utility room and a WC. Four spacious double bedrooms and a family bathroom with the primary bedroom benefitting from an en-suite and dressing room. Private driveway parking and spacious gardens.Planning - Full details can be found at the Vale of Glamorgan County Borough Council's planning portal: Reference 2022/00588/FUL.Situation - The village of Wick is positioned within attractive countryside and is a short distance from the heritage coastline, with its beautiful cliff top walks and mixture of sandy and stony beaches. Wick is one of the more self-contained villages in the Vale of Glamorgan and contains a number of period houses, a local shop and post office, Church in Wales Primary School, two public houses, church, village hall, village green and local rugby and cricket clubs. Although enjoying the benefits of a rural community, the village is accessible to the towns of Cowbridge and Llantwit Major which both include a good range of retail facilities, and to the town of Bridgend (some 7 miles) which offers a comprehensive commercial, retail and leisure amenities.Viewing - Strictly by appointment only.Messrs Watts & Morgan LLPTel: (1)Email: tomos. Please ask forTomos GouldEstate Agents Act 1979 - As required under the Estate Agents Act 1979, we are required to disclose that the Vendor of this property is related to a member of staff at Watts & Morgan LLP.BrochuresBuilding Plot, St. Brides Road, Wick, Cowbridge, VBrochure
Location
Address
Building Plot, St. Brides Road, Wick, Cowbridge, Vale of Glamorgan, CF71 7QB
City
Cowbridge with Llanblethian
Features and Finishes
None
Legal Notice
Our comprehensive database is populated by our meticulous research and analysis of public data. MirrorRealEstate strives for accuracy and we make every effort to verify the information. However, MirrorRealEstate is not liable for the use or misuse of the site's information. The information displayed on MirrorRealEstate.com is for reference only.