Building Plot Valley View, Abercynon, CF45 4NH
Property Details
Property Type
Land
Description
Property Details: • Type: Land • Tenure: N/A • Floor Area: N/A
Key Features:
Location: • Nearest Station: Quakers Yard Station • Distance to Station: 0.9 miles
Agent Information: • Address: 22 Oxford Street, Mountain Ash, CF45 3PL
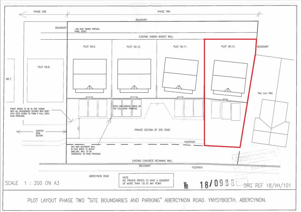
Full Description: ***BUILDING PLOT WITH FULL PLANNING PERMISSION *** We at T Samuel Estate Agents are thrilled to introduce this spacious plot of land with full planning permission for 4 bed executive style detached home. Its an exciting chance to create the home you have always envisioned!! The plot is situated in a cul de sac with three other detached properties. Close to Abercynon village and a short drive away from the A470 providing easy access to Cardiff and the Heads of the Valley link roads. Planning Permission Planning permission and contents can be viewed through Rhondda Cynon Taf County Council planning portal. Planning application No 18/0988/10 If you would like further information please do not hesitate to contact us by calling or drop as an email at Or why not just call in the office for a chat.BrochuresBrochure 1Brochure 2Brochure 3Brochure 4
Location
Address
Building Plot Valley View, Abercynon, CF45 4NH
City
Abercynon
Legal Notice
Our comprehensive database is populated by our meticulous research and analysis of public data. MirrorRealEstate strives for accuracy and we make every effort to verify the information. However, MirrorRealEstate is not liable for the use or misuse of the site's information. The information displayed on MirrorRealEstate.com is for reference only.
 
                                 
                                 
                                 
                                 
                                 
                                 
                                        
                                         
                                        
                                         
                                        
                                         
                                        
                                         
                                        
                                         
                                        
                                         
                                        
                                        