Buildings at Gatehouse Farm, Middleton, Sudbury, Suffolk, CO10

GBP 850000 For Sale

Property Details

Property Type

Ask agent

Description

Property Details: • Type: Ask agent • Tenure: N/A • Floor Area: N/A

Key Features: • Site approaching 1 acre • Full planning consent for residential development • Proposal for 3 individually designed properties • Close to the market town of Sudbury

Location: • Nearest Station: Sudbury Station • Distance to Station: 1.2 miles

Agent Information: • Address: 1 Tollgate East, Stanway, Colchester, Essex, CO3 8RQ.

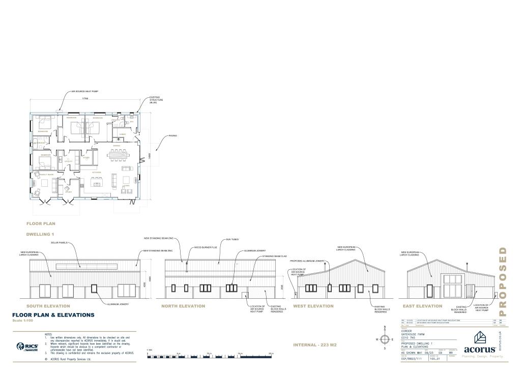
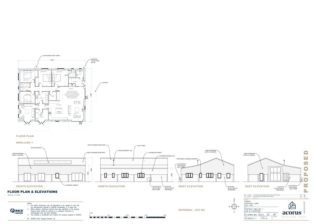
Full Description: Dwelling 1 - The conversion of a modern steel portal frame building to provide a detached four bedroom home extending to approximately 223 m2. The proposals include a large open-plan kitchen and living area, study, family room and four double bedrooms (one ensuite) set over one floor. A range of redundant piggeries are to be demolished to provide gardens to the south.

Dwelling 2 - The conversion of a part modern, steel framed building and part traditional brick buildings, to provide a detached four bedroom home extending to approximately 224 m2. The development will provide open-plan accommodation, comprising a kitchen/dining/family room and four double bedrooms (one ensuite). Outside there will be covered parking and a range of outbuildings and stores.

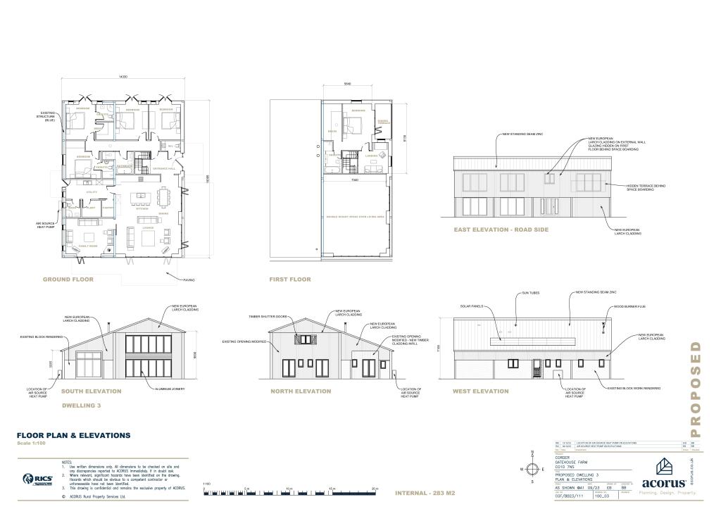
Dwelling 3 - Located to the south of the site, the third dwelling occupies the largest plot and benefits from independent access and a private driveway. The proposed dwelling is a conversion of a Dutch Barn, providing spacious accommodation extending to 283 m2 set over two floors. The ground floor provides an open-plan kitchen and living area, family room, utility and four double bedrooms (two ensuite). To the first floor is a large principal suite with double bedroom, dressing room, bathroom and a hidden terrace.

LOCATION The site lies between the villages of Henny Street and Middleton, and benefits from views towards the River Stour. The market town of Sudbury lies 2 miles to the north and provides a wide range of services. The nearby branch stations at Sudbury and Bures offer regular rail services into London Liverpool Street, via Marks Tey, with journey times of about 1hr 25 min.

ACCESS A right of way will be granted over the existing access road, with the buyer and future owners contributing to the cost of maintenance. A secondary access leads directly off Henny Road and serves the third dwelling.

RESTRICTIVE COVENANT A Restrictive Covenant will be placed on the site for the benefit of the seller's adjoining property. The covenant will restrict the use of the site to a maximum of three private dwellings and ancillary uses, and will specifically preclude any commercial or business use.

SERVICES Mains water and electricity are either connected to the site or are available nearby. The proposals for drainage are to package treatment plants.

TENURE Vacant possession will be given on completion of sale.

VAT The seller has not elected to register the property for VAT and no VAT will be chargeable on the sale price.

LOCAL AUTHORITY Braintree District Council Development Management Causeway House Bocking End Braintree CM7 9HB Tel: Email:

TERMS Offers in the region of £850,000 are invited for the freehold interest.

Location

Address

Buildings at Gatehouse Farm, Middleton, Sudbury, Suffolk, CO10

City

Perton

Features and Finishes

Site approaching 1 acre, Full planning consent for residential development, Proposal for 3 individually designed properties, Close to the market town of Sudbury

Legal Notice

Our comprehensive database is populated by our meticulous research and analysis of public data. MirrorRealEstate strives for accuracy and we make every effort to verify the information. However, MirrorRealEstate is not liable for the use or misuse of the site's information. The information displayed on MirrorRealEstate.com is for reference only.

Real Estate Broker
Fenn Wright, Rural, Water & Leisure
Brokerage
Fenn Wright, Rural, Water & Leisure
Top Tags
Likes

0

Views

43

This website uses cookies to ensure you get the best experience. Learn more