Bypass Road, St Osyth, Clacton-On-Sea, Essex, CO16

GBP 395000 For Sale

Property Details

Property Type

Plot

Description

Property Details: • Type: Plot • Tenure: N/A • Floor Area: N/A

Key Features:

Location: • Nearest Station: Clacton Station • Distance to Station: 3.3 miles

Agent Information: • Address: The Livestock Market Wyncolls Road, Severalls Industrial Park, Colchester, CO4 9HU

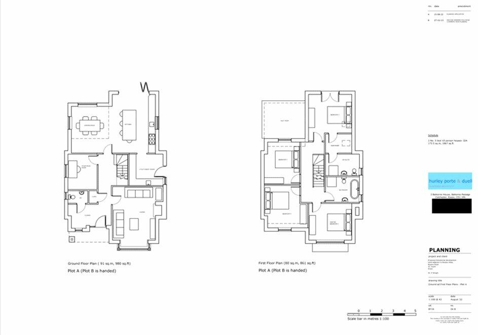
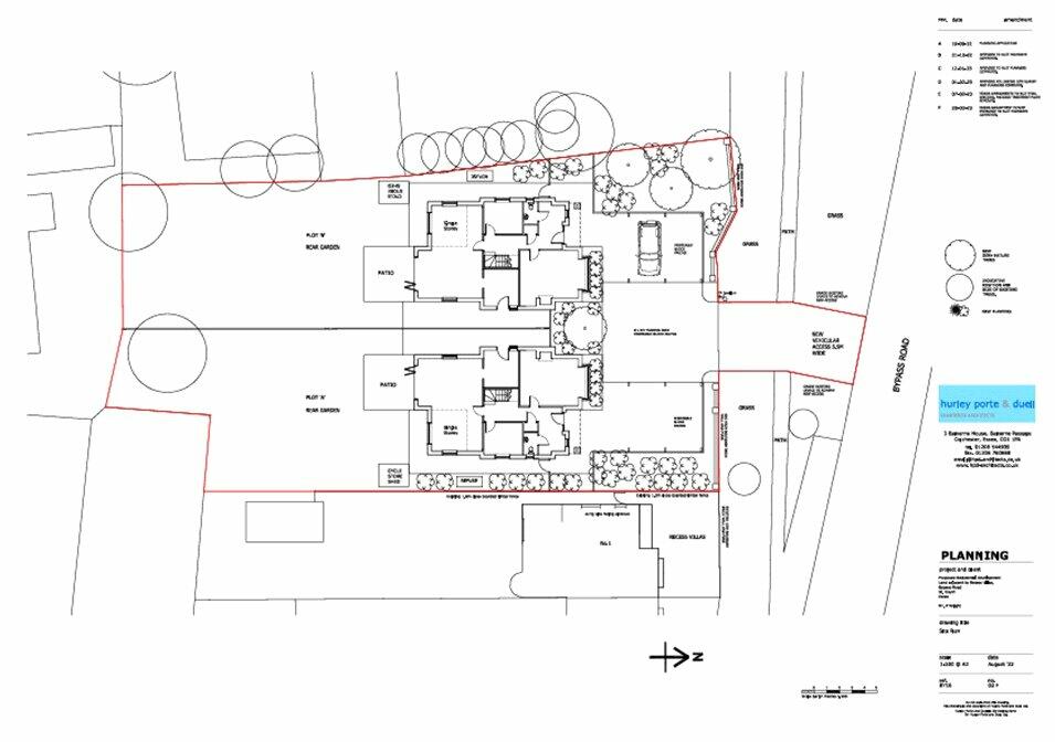
Full Description: A double building plot with full planning permission for the erection of 2, five bedroom detached houses of approximately 2,100 sq. ft. The whole plot measures just under 1/3 of an acre with a frontage of 120ft.PlanningFull planning permission granted on 26th June 2023 for 2 x five bedroom detached dwellings under planning number 22/01459/FUL.LocationThe plot is located on the B1027 just outside the village of St. Osyth. The village is serviced by various shops, restaurants a doctors surgery and a Primary School.TenureFreehold.Local AuthorityTendring District Council.ServicesWe understand from the vendor that gas, water, electricity and drainage are available close by. It is the responsibility of the purchaser to check the availability of services as this has not been verified by Stanfords.Flood RiskVery low - information taken in September 24 from gov.uk long term flood risk checker using postcode.Broadband CoverageWe understand Standard and Superfast services are available in the area. Information taken from Ofcom Broadband Checker - September 2024.Mobile CoverageWe understand there is mobile coverage available in the area with O2, Three, EE and Vodaphone - information taken from Ofcom Mobile Checker – September 2024.Wayleaves, Easements & Rights Of WayThe property is sold subject to and with the benefit of all rights, including rights of way whether public or private, light, support, drainage, water and electricity supplies and other rights and obligations, easements and quasi easements and all existing wayleaves, pylons, stays, cables, drains, water, gas and other pipes, whether referred to in these particulars or not. The purchaser shall be deemed to have full knowledge of the boundaries and of the ownership thereof.ViewingPlease contact Stanfords to arrange an appointment.

Location

Address

Bypass Road, St Osyth, Clacton-On-Sea, Essex, CO16

City

Clacton-on-Sea

Legal Notice

Our comprehensive database is populated by our meticulous research and analysis of public data. MirrorRealEstate strives for accuracy and we make every effort to verify the information. However, MirrorRealEstate is not liable for the use or misuse of the site's information. The information displayed on MirrorRealEstate.com is for reference only.

Real Estate Broker
Stanfords, Colchester
Brokerage
Stanfords, Colchester
Top Tags
100 sq. ft
Likes

0

Views

40

This website uses cookies to ensure you get the best experience. Learn more