Calton Road, Bath, Somerset, BA2

GBP 550000 For Sale

Property Details

Property Type

Ask agent

Description

Property Details: • Type: Ask agent • Tenure: N/A • Floor Area: N/A

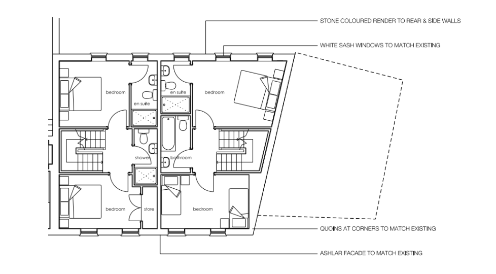
Key Features: • Full planning permission - implemented • 2 x 4 storey townhouses • 3 bedrooms + study • Central Bath location • Planning application reference 17/02591/FUL • Demolition of existing flat • GIA plot 1 - 155 sq m (1660 sq ft) • GIA plot 2 - 166 sq m (1780 sq ft)

Location: • Nearest Station: Bath Spa Station • Distance to Station: 0.1 miles

Agent Information: • Address: 584 Wellsway, Bath, BA2 2UE

Full Description: Opportunity to acquire development project with full, implemented planning permission for erection of 2 x townhouses following demolition of an existing 2 bed apartment in Central Bath.

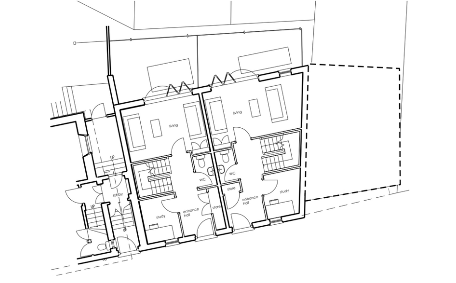
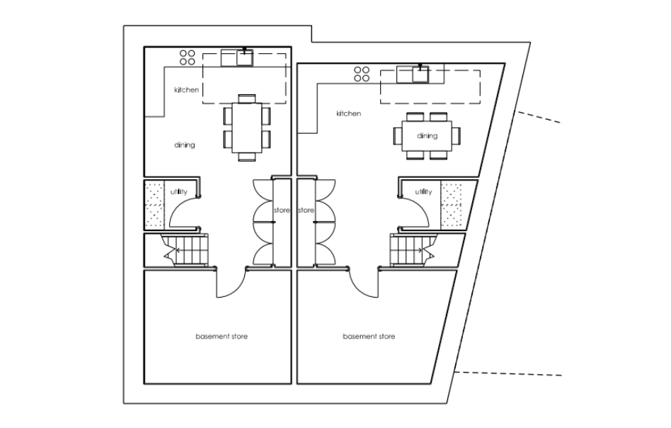
Accommodation: Plot 1 - GIA circa 155 sqm. Link-semi-detached, 3 bedrooms + study & 2 x en-suites with family bathroom. This house is spaced over four floors.

Plot 2 - GIA circa 166 sqm. Link-semi-detached, 3 bedrooms + study & 2 x en-suites with family bathroom. This house is spaced over four floors.

The properties will be constructed in Ashlar stone to the front facade to match other elevations on Calton Road, with stone coins at the corners. The rear and side elevations will be of stone coloured render to match the colour of the front ashlar elevation. The windows will replicate the sash window design design and profile of the adjacent Victorian Villa at 143 Calton Road, with stone cills and metal window baskets. The double gambrel style of room will be finished in slate to match editions and neighbouring properties.

The site will require minimum landscaping following the development of the townhouses. On the ground floor there will be a small patio to the rear of each property. Permit parking availability to be explored by incoming purchaser.

Location: Calton Road is located in a highly desirable location close to the City centre with both Bath Spa Railway Station and Bath Bus Station within a 0.3 mile (a 5-8 minute walk away) via Lyncombe Hill and the Halfpenny footbridge link to Dorchester Street.

Location

Address

Calton Road, Bath, Somerset, BA2

City

Somerset

Features and Finishes

Full planning permission - implemented, 2 x 4 storey townhouses, 3 bedrooms + study, Central Bath location, Planning application reference 17/02591/FUL, Demolition of existing flat, GIA plot 1 - 155 sq m (1660 sq ft), GIA plot 2 - 166 sq m (1780 sq ft)

Legal Notice

Our comprehensive database is populated by our meticulous research and analysis of public data. MirrorRealEstate strives for accuracy and we make every effort to verify the information. However, MirrorRealEstate is not liable for the use or misuse of the site's information. The information displayed on MirrorRealEstate.com is for reference only.

Real Estate Broker
Land Rich Ltd, Somerset
Brokerage
Land Rich Ltd, Somerset
Top Tags
Likes

0

Views

35

This website uses cookies to ensure you get the best experience. Learn more