Carlyle Road, Bromsgrove. B60 2PN

GBP 300000 For Sale

Property Details

Bedrooms

3

Bathrooms

1

Property Type

Semi-Detached

Description

Property Details: • Type: Semi-Detached • Tenure: Freehold • Floor Area: N/A

Key Features: • Semi-detached Victorian house • Planning granted for 2 storey side and rear extension • Three bedrooms • Spacious living/dining room • New modern bathroom • Driveway for two cars & garage • Low Maintenance south facing rear garden • Aston Fields location

Location: • Nearest Station: N/A • Distance to Station: N/A

Agent Information: • Address: 1 St. Godwalds Road, Bromsgrove, B60 3BN

Full Description: This is a lovely, three bedroom, semi-detached Victorian house that spans three floors on a sought after road in Aston Fields, Bromsgrove. With its south facing rear garden, detached garage and off road parking for two cars, and its close proximity to Bromsgrove train station, this home offers a rare blend of charm, space and convenience.

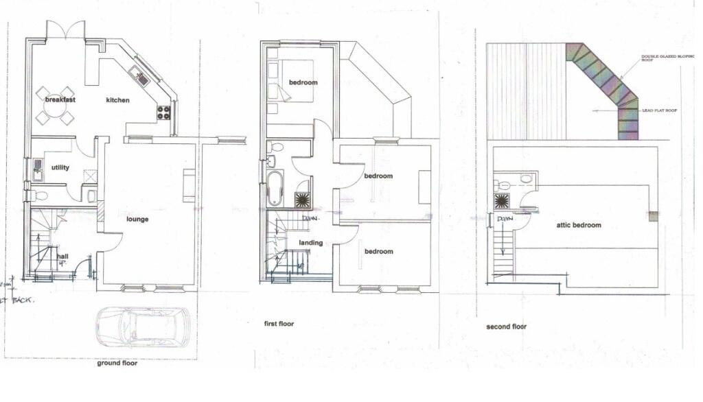
Planning permission granted Bromsgrove District Council granted planning permission in June 2022 for a two storey side extension to the east elevation and combined two storey and single storey rear extension to the south elevation. Please see attached photos of plans.

The existing property is set back from the road and benefits from a driveway to provide off street parking for two cars, a garage and side access to the rear garden. You enter into a hallway which takes you into the large, welcoming living/dining room with dual aspect windows, allowing natural light to flood in throughout the day as the sun moves round. The kitchen is thoughtfully located to the rear, with access out to the garden. Outside, the south facing rear garden is a true highlight, featuring a raised patio to the back and side of the house, perfect for entertaining, a lush lawn, and mature cottage-style borders full of seasonal colour. Upstairs, on the first floor are two well-proportioned bedrooms and a bright, beautifully presented shower room with a modern walk in shower. The top floor has a third bedroom, complete with eaves storage, ideal as a guest room or peaceful home office.

Aston Fields is one of Bromsgrove’s most sought-after residential areas, known for its vibrant community feel and excellent local amenities. The area is ideally placed for commuters, with Bromsgrove train station just 0.3 miles away, providing direct links to Birmingham and Worcester. Residents also enjoy easy access to the M5 and M42 motorways, making it perfect for travel by road. Green spaces and countryside walks are also just a short walk away, offering the best of town and country living.

Tenure: Freehold *The property is believe to be freehold by the current owners. This will be verified during the legal process by the conveyancers. EPC Rating: E Council Tax Band: B Approx. Floor Area: 86.1 sq m (926.8 sq ft) For room measurements please refer to the floorplan Rear Garden Orientation (approx.): South . The information provided about this property does not constitute or form part of an offer or contract. All descriptions, dimensions, references to condition, and necessary permissions for use and occupation, and other details are given in good faith and are believed to be correct at the time of publication. However, they are intended to give a general outline only and do not constitute any part of an offer or contract. Prospective purchasers should not rely on them as statements or representations of fact but must satisfy themselves by inspection or otherwise as to their accuracy. No person in the employment of Guest Estate Agents has any authority to make or give any representation or warranty whatsoever in relation to this property.

Measurements: These approximate room sizes are only intended as general guidance. You must verify the dimensions carefully before ordering carpets or any built-in furniture.

Services: Please note that we have not tested the services or any of the equipment or appliances in this property. Accordingly, we strongly advise prospective buyers to commission their own survey or service reports before finalizing their offer to purchase.

Photographs and particulars: Photographs show only certain parts of the property as they appeared at the time they were taken. Areas, measurements, and distances given are approximate only.BrochuresBrochure of 27 Carlyle Road

Location

Address

Carlyle Road, Bromsgrove. B60 2PN

City

Bromsgrove

Features and Finishes

Semi-detached Victorian house, Planning granted for 2 storey side and rear extension, Three bedrooms, Spacious living/dining room, New modern bathroom, Driveway for two cars & garage, Low Maintenance south facing rear garden, Aston Fields location

Legal Notice

Our comprehensive database is populated by our meticulous research and analysis of public data. MirrorRealEstate strives for accuracy and we make every effort to verify the information. However, MirrorRealEstate is not liable for the use or misuse of the site's information. The information displayed on MirrorRealEstate.com is for reference only.

Real Estate Broker
Guest Estate Agents, Bromsgrove
Brokerage
Guest Estate Agents, Bromsgrove
Top Tags
Three bedrooms New modern bathroom
Likes

0

Views

8

This website uses cookies to ensure you get the best experience. Learn more