Chancellor Road, Walton, BA16

GBP 350000 For Sale

Property Details

Bedrooms

3

Bathrooms

1

Property Type

Link Detached House

Description

Property Details: • Type: Link Detached House • Tenure: Freehold • Floor Area: N/A

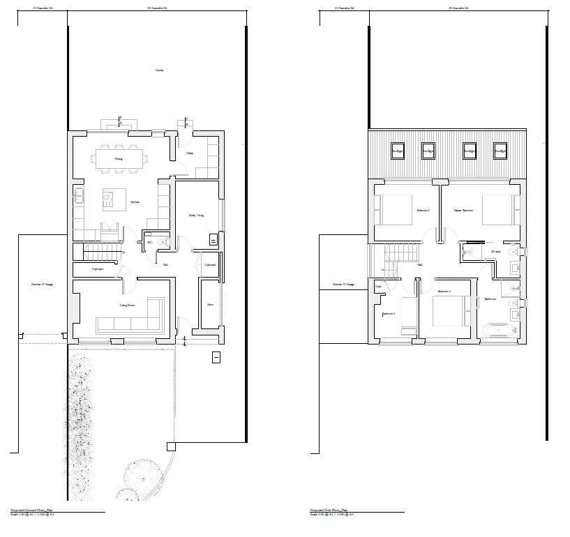
Key Features: • Three bedroom detached family home • Driveway parking for up to three cars and single garage • Quiet cul de sac location within the popular village of Walton • Easy access to A39 and M5 J23 • Close to local primary schools and nearby Crispin and Millfield in Street • South facing rear garden backing on to open countryside • Superbly presented throughout • Properties of this nature rarely come to market in this location! • Planning consent granted Oct 2024 for a two-storey side extension, adding a fourth bedroom / second bathroom / additional ground floor reception room.

Location: • Nearest Station: N/A • Distance to Station: N/A

Agent Information: • Address: 86 High Street, Street, BA16 0EN

Full Description: We are delighted to bring to the market this well-presented three bedroom detached property, positioned on the edge of the popular village of Walton and tucked away in the corner of a quiet-cul-de sac. The property has a great deal to offer as a family home, with three good sized bedrooms, large extended living space and a stylish family bathroom. The level lawned rear garden is ideal for families and pet owners and, being south facing, gets plenty of sun throughout the day. There is also off-road parking for up to three cars, plus a single garage. ACCOMMODATION:The property is accessed from the side elevation where you are welcomed by a spacious entrance hall with doors leading to the main sitting room, the kitchen/diner and to a cloakroom with WC and hand wash basin. Stairs rise to the first floor landing, beneath which is a large under-stairs cupboard for shoes and coats. The sitting room is a very good size with large front aspect windows letting in plenty of light, and there is a stove style electric fire adding a cosy feature to an airy space. The open-plan kitchen/diner offers a spacious and sociable area, with the kitchen comprising a range of base and eye level units, integrated ovens and hob and space for a dishwasher. Ample space is available for a substantial dining table and as this section of the house has been extended there is an additional living area/family room with glazed sliding doors leading out to the south facing rear garden. From here there's also a door leading to the utility room, which is equipped with a sink and...OUTSIDE:To the front of the property is a nicely sized garden, mostly laid to lawn with some mature shrubs. There is off-road driveway parking for up to three cars, leading to the single garage at the side of the house. At the rear of the property is a well-proportioned, south facing garden, once again mostly lawn with a mixture of fencing and mature hedge. There is an area of hard standing ideal for outside entertaining. The outside space is fairly low-maintenance and would suit both young families and those who are looking for a blank canvas.SERVICES:Mains gas, electric, water and drainage are connected, and gas central heating is installed. The property is currently banded C for council tax, within Somerset Council. Ofcom's online service checker states that mobile coverage is likely available with four major providers, and that Superfast broadband is available in the area.LOCATION:The village of Walton is approximately 1.3 miles from Street and provides a range of amenities including a highly regarded pub, Church, C of E Primary School, pre-school playgroup and Village Hall with playing fields. Public transport links with nearby towns including Street, which offers quality schooling at all levels including the renowned Millfield School, Crispin School (secondary) and Strode College. Shoppers will enjoy the High Street and Clarks Village Outlets, with a variety of supermarkets and homewares stores within a short drive. Street also has a wide range of health and leisure facilities, library, pubs and restaurants to cater for most tastes. Rail links to London from Bridgwater and Castle Cary, Bristol Airport approx. 50 mins drive.Agent's NoteBuyers considering this property as a long term home, and its future prospects for growth, may wish to note that planning consent was granted in 29th October 2024 (valid for three years), for a two-storey side extension which would add a fourth bedroom and second bathroom to the first floor, as well as an additional reception room, larger entrance hallway and store room to the ground floor. More information can be found on: using the post code, or planning reference: 2024/1512/HSE.VIEWING ARRANGEMENTS:Strictly through prior arrangement with Cooper and Tanner on . If arriving early, please wait outside to be greeted by a member of our team.

Location

Address

Chancellor Road, Walton, BA16

City

Walton

Features and Finishes

Three bedroom detached family home, Driveway parking for up to three cars and single garage, Quiet cul de sac location within the popular village of Walton, Easy access to A39 and M5 J23, Close to local primary schools and nearby Crispin and Millfield in Street, South facing rear garden backing on to open countryside, Superbly presented throughout, Properties of this nature rarely come to market in this location!, Planning consent granted Oct 2024 for a two-storey side extension, adding a fourth bedroom / second bathroom / additional ground floor reception room.

Legal Notice

Our comprehensive database is populated by our meticulous research and analysis of public data. MirrorRealEstate strives for accuracy and we make every effort to verify the information. However, MirrorRealEstate is not liable for the use or misuse of the site's information. The information displayed on MirrorRealEstate.com is for reference only.

Real Estate Broker
Cooper & Tanner, Street
Brokerage
Cooper & Tanner, Street
Top Tags
Likes

0

Views

18

This website uses cookies to ensure you get the best experience. Learn more