Charlcombe Way, Bath, Somerset, BA1

GBP 375000 For Sale

Property Details

Property Type

Plot

Description

Property Details: • Type: Plot • Tenure: N/A • Floor Area: N/A

Key Features:

Location: • Nearest Station: Bath Spa Station • Distance to Station: 1.5 miles

Agent Information: • Address: 36 Gay Street, Bath, BA1 2NT

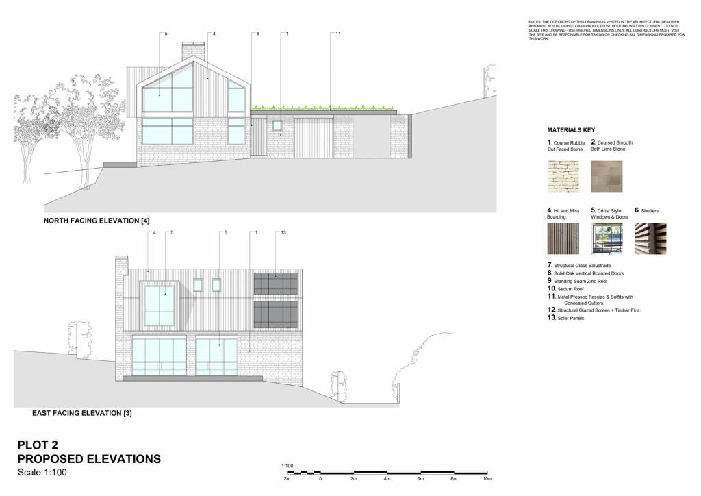
Full Description: Building plot with full planning consent to construct an architecturally designed, four-bedroom, detached, sustainable home on the edge of the Charlcombe Valley in Bath offering stunning views. Potential for a private self-build or developer.GIAGround Floor – 76.9 sqm (827 sqft)First Floor – 64 sqm (688 sqft)Garage & Store – 24.04 sqm (258 sqft)Total Area – 164.94 sqm (1775 sqft)Further details regarding the full planning consent can be found via the Bath and North East Somerset Council online Planning Portal using reference: 23/02958/VARViewings strictly by appointment with the selling agents, Fine & Country. Additional Information:Postcode: BA1 6JZTenure: FreeholdLocal Authority: BANES

Location

Address

Charlcombe Way, Bath, Somerset, BA1

City

Somerset

Legal Notice

Our comprehensive database is populated by our meticulous research and analysis of public data. MirrorRealEstate strives for accuracy and we make every effort to verify the information. However, MirrorRealEstate is not liable for the use or misuse of the site's information. The information displayed on MirrorRealEstate.com is for reference only.

Real Estate Broker
Fine & Country, Bath
Brokerage
Fine & Country, Bath
Top Tags
Four-bedroom detached sustainable home Somerset
Likes

0

Views

84

This website uses cookies to ensure you get the best experience. Learn more