Chester Road, Alpraham, Tarporley

GBP 525000 For Sale

Property Details

Bedrooms

3

Bathrooms

3

Property Type

Semi-Detached

Description

Property Details: • Type: Semi-Detached • Tenure: N/A • Floor Area: N/A

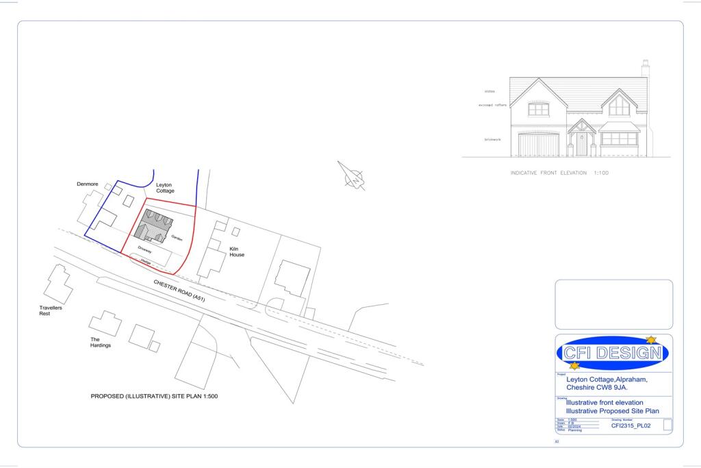
Key Features: • NO CHAIN, overall plot size 1.47 acre • Popular location close to Tarporley and Nantwich • Building plot with Cheshire East permission ref 24/0458N • Extended semi detached house in need of refurbishment • Three bedrooms, bathroom and en suite • Two reception rooms • Overall size including garage and store 1724 square feet • Double garage and store • Formal gardens and paddock • Ideal project for private individual or developer

Location: • Nearest Station: N/A • Distance to Station: N/A

Agent Information: • Address: 62 High Street, Tarporley, CW6 0AG

Full Description: SET IN 1.47 ACRE, a fantastic project for ambitious private individual or seasoned developer comprising an APPEALING COTTAGE IN NEED OF REFURBISHMENT and BUILDING PLOT WITH PLANNING PERMISSION GRANTEDComment from Robert Reed of Gascoigne Halman Alpraham has been transformed in the last ten years with extensive residential development and increasingly good amenities, with the village pub thriving and a state of the art new village hall in the final stages of construction. The village allows for easy access to commuter routes throughout Cheshire, a short drive or bus trip to the highly regarded local schools in Tarporley and countryside walks towards Bunbury. This is a highly unusual property with tremendous scope, making it an ideal project for either a ambitious private individual or seasoned developer. The overall site size is 1.47 acre. The scope to improve comes in two formats. The first is by refurbishing and enhancing what is a hugely appealing and distinctive cottage and is packed full of character and appeal. Whilst updating is required, the fundamentals are very good, with pleasing room sizes and ample flexibility. The second element of investment interest is the opportunity to build a house! The side garden to the house was granted planning permission by Cheshire East on 30th May 2024 reference 24/0458N for the construction of one custom self build dwelling. Full details available on the CEC planning portal. There is also a long paddock, double garage and store, further areas of formal garden and ample driveway parking. This is such a rare combination and the whole is for sale with no ongoing chain and if required, quick legal completion available. For a personal description of the property or to arrange a viewing, please contact myself or the Gascoigne Halman Tarporley office.Accommodation and Dimensions As detailed on Floorplan.Location The village of Alpraham lies within 3 miles of the beautiful village of Tarporley, 14 miles from the historic City Centre of Chester and just 7 miles from the market town of Nantwich. It is also fast developing a strong sense of local community, with the Tollemarche Arms both popular and well supported and the parish council currently working on the creation of a communal play area and newly built community centre. Tarporley is a picturesque village with a bustling High Street that offers a comprehensive range of facilities including pubs, cafes and restaurants, and numerous shops such as convenience stores, pharmacy, DIY, clothing boutiques and gift shops. Other facilities include a petrol station, health centre, cottage hospital, dentist surgeries, veterinary practice, community centre, three Churches and highly regarded primary and secondary schools.A regular bus service is available from Alpraham that travels to Chester City centre in one direction and Crewe via Nantwich in the other. The village is located within the heart of Cheshire and surrounded by some of the most glorious countryside, with Delamere Forest 11 miles distant and the Beeston and Peckforton Hills within 4.5 miles. Alpraham is conveniently situated just on the A51 which provides links to the M53, M56, M6, A556, and A500, allowing commuter access to a number of commercial destinations including Chester, Warrington, Liverpool, Manchester, Crewe, and the Potteries. Crewe railway station is situated within 12 miles and provides a service to London Euston in just over 1 hour 30 minutes.Schooling is well provided for with state primary and secondary education in Tarporley together with a good selection of private schools in the surrounding area including The Grange at Hartford, Abbey Gate College at Saighton, as well as Kings and Queens in Chester.Directions From Tarporley leave in the direction of Nantwich passing the Texaco / Spa on the left hand side. Carry on and at the traffic lights take a left hand turn onto the main A49. At the `Four Lane Ends¿ crossroads (with Indian restaurant on your right) carry straight on. Proceed into the village of Alpraham, after which you will find the subject property on your left hand side, clearly marked by a Gascoigne Halman for sale board. Tenure / Services / Viewing TENURE: We believe the property is freehold tenure, this will be confirmed as part of the legal process. SERVICES: LPG central heating. Private drainage system. Mains water and electricity. VIEWING: Viewing by appointment with the Agents Tarporley office. WANT TO MOVE BUT NEED TO SELL? If you are interested in this property but need to sell your own home in Cheshire, South Manchester or the Peak District, Gascoigne Halman can provide a free, no obligation market appraisal and valuation of your own home. We are proud to be the leading estate agent in the area, with a network of twenty three offices - full contact details can be located on our website. Robert Reed is the manager of the Tarporley office.The Tarporley team consists of Robert, Sally Pamela, Oliver, Tresa, Sam, Zoe, Clive and Jerry- we pride ourselves on being not just professional and efficient but also warm and welcoming. If you are in the village and fancy a coffee, do come in and say hello. We are located at 62 High Street, Tarporley, six premises to the left of Tarporley Parish Church. Our building is a landmark in the village, having above the shop front a beautiful illuminated fully working heritage clock.NOTICE Gascoigne Halman for themselves and for the vendors or lessors of this property whose agents they are give notice that: (i) the particulars are set out as a general outline only for the guidance of intending purchasers or lessees, and do not constitute, nor constitute part of, an offer or contract; (ii) all descriptions, dimensions, references to condition and necessary permissions for use and occupation, and other details are given in good faith and are believed to be correct but any intending purchasers or tenants should not rely on them as statements or representations of fact but must satisfy themselves by inspection or otherwise as to the correctness of each of them; (iii) no person in the employment of Gascoigne Halman has any authority to make or give any representation or warranty whatever in relation to this propertyBrochuresBrochure

Location

Address

Chester Road, Alpraham, Tarporley

City

Tarporley

Features and Finishes

NO CHAIN, overall plot size 1.47 acre, Popular location close to Tarporley and Nantwich, Building plot with Cheshire East permission ref 24/0458N, Extended semi detached house in need of refurbishment, Three bedrooms, bathroom and en suite, Two reception rooms, Overall size including garage and store 1724 square feet, Double garage and store, Formal gardens and paddock, Ideal project for private individual or developer

Legal Notice

Our comprehensive database is populated by our meticulous research and analysis of public data. MirrorRealEstate strives for accuracy and we make every effort to verify the information. However, MirrorRealEstate is not liable for the use or misuse of the site's information. The information displayed on MirrorRealEstate.com is for reference only.

Real Estate Broker
Gascoigne Halman, Tarporley
Brokerage
Gascoigne Halman, Tarporley
Top Tags
NO CHAIN Three bedrooms Two reception rooms
Likes

0

Views

75

This website uses cookies to ensure you get the best experience. Learn more