Chester Road, Castle Bromwich

GBP 300000 For Sale

Property Details

Bedrooms

3

Bathrooms

1

Property Type

Semi-Detached

Description

Property Details: • Type: Semi-Detached • Tenure: N/A • Floor Area: N/A

Key Features: • ** No Upward Chain ** • Three Bedrooms (Two Double) • Recently Fitted Wet Room • Breakfast Kitchen • Downstairs WC • Garage & Large Driveway for Off Road Parking • Good Size Rear Garden • PVCu Double Glazing (where specified) • Gas Central Heating (where specified) • Viewing advised to appreciate the size of accommodation on offer

Location: • Nearest Station: N/A • Distance to Station: N/A

Agent Information: • Address: 81 High Street, Coleshill, Birmingham, B46 3AG

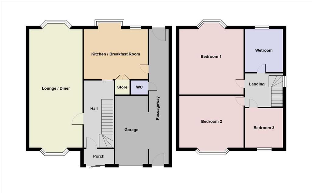
Full Description: ** NEW INSTRUCTION ** Waters & Co are pleased to present this extended semi detached property which in brief comprises, entrance hall, lounge/diner, breakfast kitchen, downstairs WC, three bedrooms and a wet room. The property also benefits from gas fired central heating and PVCu double glazing (both where specified). Outside there is a driveway providing ample off road parking, garage and large rear garden. The property is close to local shops and schools and is conveniently located within easy distance of the excellent motorway network, together with easy rail and air links. Internal viewing is advised to fully appreciate the size of the accommodation on offer. The property is being sold with NO UPWARD CHAIN. Council Tax Band C. EPC Rating DGROUND FLOOR Porch Having PVCu double glazed sliding patio door, tiled floor, coach lamp and PVCu front door with ornamental inset panel.Hallway Having opaque window into front porch, radiator, stairs to first floor and doors leading to:Lounge / Dining Room 3.34m (10' 11") x 8.29m (27' 2")Being dual aspect with PVCu double glazed bay windows to the front and rear elevations, gas log effect fire with brick effect fire surround and wooden mantel over, two radiators and two ceiling light points.Breakfast Kitchen 4.52m (14' 10") (max) x 3.12m (10' 3") (max)Having PVCu double glazed windows (one of which is a bay) to the rear elevation, a range of wall and base units with roll top work surfaces over, 1½ bowl stainless steel sink and drainer with mixer tap, integrated electric cooker with hob, space for fridge freezer, space/plumbing for washing machine, breakfast bar, full height tiling to the kitchen area, radiator, two ceiling tube lights, wall mounted boiler, sliding door into the hallway and door leading out to the side passageway.Side Passageway Having a polycarbonate roof the passageway has a door to the WC, PVCu double glazed door to the rear garden, PVCu door leading to front elevation. Passageway is open to the side leading into the garage.Downstairs WC 0.93m (3' 1") x 1.15m (3' 9")Accessed via the side passageway and having a WC, wall light and vinyl flooring.FIRST FLOOR Landing Having PVCu double glazed opaque window to the side elevation, access to the loft, airing cupboard housing the water tank and doors leading to:Bedroom 1 2.70m (8' 10") x 4.11m (13' 6") (into bay)Having PVCu double glazed bay window to the rear elevation, fitted wardrobes, ceiling light point and radiator.Bedroom 2 3.32m (10' 11") (max) x 4.13m (13' 7") (max)Having PVCu double glazed bay window to the front elevation, fitted wardrobes, ceiling light point and radiator.Bedroom 3 2.06m (6' 9") x 2.22m (7' 3")Having PVCu double glazed window to the front elevation, fitted wardrobe, ceiling light point and radiator.Wet Room 2.30m (7' 7") x 2.27m (7' 5")Having PVCu double glazed opaque window to the rear elevation, hand basin, low level WC, shower area with screen, ceiling light point, chrome ladder style radiator, floor to ceiling wall tiling, extractor fan and safety vinyl flooring.OUTSIDE Approach Having block paved large driveway, outside light, with side lawn, shrub borders, low brick wall to one side and chain link partitioning to the other, PVCu door access to the side passageway.Side Garage Having up and over electric roller door and electricity.Rear Garden Having a paved patio area, lawn, shrubs/trees to borders, outside tap, outside light, 6ft fencing and hedging, door to side passageway giving access to the front of the property,Tenure The property is understood to be Freehold (to be verified by the Solicitor)Energy Efficiency This homes performance is rated in terms of the energy use per square metre of floor area, energy efficiency based on fuel costs and environmental impact based on carbon dioxide (CO2) emissions. The higher the rating, the more energy efficient the home is and the lower the fuel bills will be.

Location

Address

Chester Road, Castle Bromwich

City

Kingshurst

Features and Finishes

** No Upward Chain **, Three Bedrooms (Two Double), Recently Fitted Wet Room, Breakfast Kitchen, Downstairs WC, Garage & Large Driveway for Off Road Parking, Good Size Rear Garden, PVCu Double Glazing (where specified), Gas Central Heating (where specified), Viewing advised to appreciate the size of accommodation on offer

Legal Notice

Our comprehensive database is populated by our meticulous research and analysis of public data. MirrorRealEstate strives for accuracy and we make every effort to verify the information. However, MirrorRealEstate is not liable for the use or misuse of the site's information. The information displayed on MirrorRealEstate.com is for reference only.

Real Estate Broker
Waters & Co., Birmingham
Brokerage
Waters & Co., Birmingham
Top Tags
No Upward Chain Breakfast Kitchen
Likes

0

Views

23

This website uses cookies to ensure you get the best experience. Learn more