Chestnut Avenue, Belper

GBP 65000 For Sale

Property Details

Property Type

Plot

Description

Property Details: • Type: Plot • Tenure: N/A • Floor Area: N/A

Key Features:

Location: • Nearest Station: Belper Station • Distance to Station: 0.7 miles

Agent Information: • Address: The Studio Queen Street Belper DE56 1NR

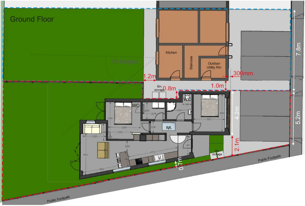
Full Description: An individual building plot with full detailed planning permission for a contemporary styled two bedroom bungalow residence. Situated in a popular area of Belper, close to local amenities. The property has off road parking and garden.The single storey contemporary styled bungalow is to be built sustainably for ease of maintenance and efficiency, having innovative design features to create a low maintenance eco home.The stylish accommodation comprises entrance lobby, open plan living living dining kitchen with bi-fold doors to the rear. separate utility room, two double bedrooms and a shower room.There is off road parking to the front and sunny south west facing garden to the rear.Situated conveniently close to Belper and its many countryside walks and local amenities. Belper has a busy railway station, excellent schools, shopping, bars, restaurants, leisure facilities. There is easy access to Derby and Nottingham via major road links ie A38, M1 and A6, which provides the gateway to the stunning Peak District.BrochuresChestnut Avenue, BelperBrochure

Location

Address

Chestnut Avenue, Belper

City

Belper

Legal Notice

Our comprehensive database is populated by our meticulous research and analysis of public data. MirrorRealEstate strives for accuracy and we make every effort to verify the information. However, MirrorRealEstate is not liable for the use or misuse of the site's information. The information displayed on MirrorRealEstate.com is for reference only.

Real Estate Broker
Boxall Brown & Jones, Belper
Brokerage
Boxall Brown & Jones, Belper
Top Tags
Likes

0

Views

81

This website uses cookies to ensure you get the best experience. Learn more