Church Lane, Braintree

GBP 500000 For Sale

Property Details

Bedrooms

3

Bathrooms

1

Property Type

Semi-Detached

Description

Property Details: • Type: Semi-Detached • Tenure: N/A • Floor Area: N/A

Key Features: • THREE/FOUR BEDROOMS • GRADE II LISTED • SUBSTANTIAL FAMILY HOME • FORMERLY "THE TABOR HOUSE" • 1/3 OF AN ACRE PLOT • EXCELLENT POTENTIAL • BRIMMING WITH CHARACTER • GARAGE • ATTRACTIVE FRONTAGE • RECENTLY REDECORATED

Location: • Nearest Station: N/A • Distance to Station: N/A

Agent Information: • Address: Phoenix House, 5 New Street, Braintree, Essex, CM7 1ER

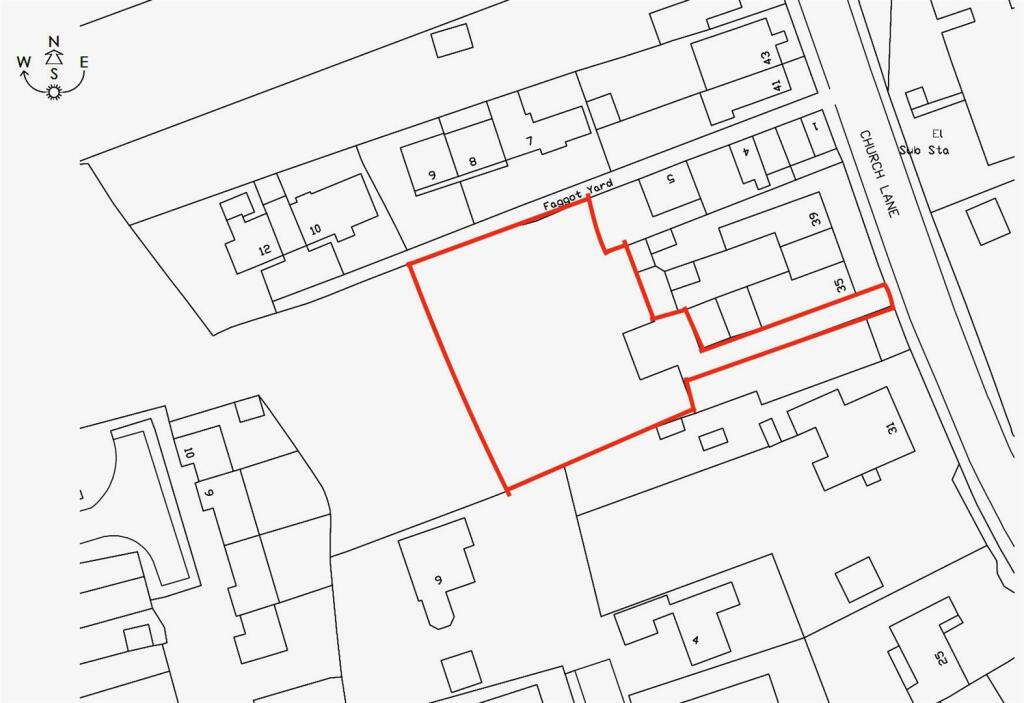
Full Description: ** NO ONWARD CHAIN ** Formerly "The Tabor House", this beautiful Grade II Listed property now known as "Tabors" occupies a generous plot, offering an excellent garden space for the growing family. Believed to originate from the early 16th century, the property is of largely timber frame construction with plastered external finish. Internally the property offers vast internal living accommodation, presented in first class decorative order having undergone recent redecoration, and consists of THREE/FOUR bedrooms, TWO/THREE reception rooms, and offers large scope for enhancement within the former Barn, which currently lends itself as an ideal work from home space, or conversion to additional living space subject to relevant consent. The large plot to the rear is considered to be just under one third of an acre in size. Presently the plot enjoys large mature grounds with established flower beds, hedgerows, trees and areas to lawn making this a wonderful family garden space to enjoy. At the rear of the property is a timber framed detached GARAGE block, with private patio seating area opening from the main Living Room. In summary, "Tabors" is a truly one of a kind property brimming with character, offering an abundance of potential for any future owner as both a long term family home, or potential development project. Early viewing is strongly recommended in order to appreciate the potential on offer.Inner Hall - Laminate flooring, under stairs storage cupboard, stairs rising to first floor, doors to;Lounge - 6.18 x 4.23 (20'3" x 13'10") - Engineered Oak flooring, windows to side & rear aspects, door to rear, log burner, two radiators.Utility Room - 2.66 x 1.91 (8'8" x 6'3") - Laminate flooring, window to side, washing machine space.Kitchen - 4.16 x 3.59 (13'7" x 11'9") - Window to side, tiled flooring, dining space, walk in pantry, feature fireplace, country style kitchen with integral oven & four ring hob, space for slimline dishwasher & fridge.Entrance Hall - Exposed brick flooring, doors to;Bathroom - Bath with shower over, WC, pedestal hand wash basin, radiator, obscure window to side aspect.Dining Room/ Sitting Room - 3.84 x 3.68 (12'7" x 12'0") - Engineered Oak flooring, radiator, window to front, exposed fireplace, stairs to first floor.First Floor - Landing - Doors to;Bedroom One - 4.15 x 3.62 (13'7" x 11'10") - Window to side, radiator, carpet flooring.Bedroom Two - 3.82 x 3.63 (12'6" x 11'10") - Window to rear, radiator, carpet flooring.Bedroom Three - 4.54 x 3.55 (14'10" x 11'7") - Window to front, four fitted cupboards, radiator, carpet flooring.Wc - WC, hand wash basin.Barn/ Studio - 6.70 x 6.40 (21'11" x 20'11") - Two windows to rear, two windows to side, carpet flooring, potential to convert to Master Bedroom or Work from home space.Garage - Timber framed Garage to the rear which could be demolished and re-constructed if desired.Garden - Large grounds approaching one third of an acre in size, presently to lawn with mature trees, hedgerows and flower beds, making an ideal family garden space.BrochuresChurch Lane, BraintreeBrochure

Location

Address

Church Lane, Braintree

City

Braintree

Features and Finishes

THREE/FOUR BEDROOMS, GRADE II LISTED, SUBSTANTIAL FAMILY HOME, FORMERLY "THE TABOR HOUSE", 1/3 OF AN ACRE PLOT, EXCELLENT POTENTIAL, BRIMMING WITH CHARACTER, GARAGE, ATTRACTIVE FRONTAGE, RECENTLY REDECORATED

Legal Notice

Our comprehensive database is populated by our meticulous research and analysis of public data. MirrorRealEstate strives for accuracy and we make every effort to verify the information. However, MirrorRealEstate is not liable for the use or misuse of the site's information. The information displayed on MirrorRealEstate.com is for reference only.

Real Estate Broker
Branocs Estates LTD, Braintree
Brokerage
Branocs Estates LTD, Braintree
Top Tags
Three/Four Bedrooms Excellent potential
Likes

0

Views

59

This website uses cookies to ensure you get the best experience. Learn more