Church Lane, Ongar, CM5

GBP 690000 For Sale

Property Details

Property Type

Land

Description

Property Details: • Type: Land • Tenure: N/A • Floor Area: N/A

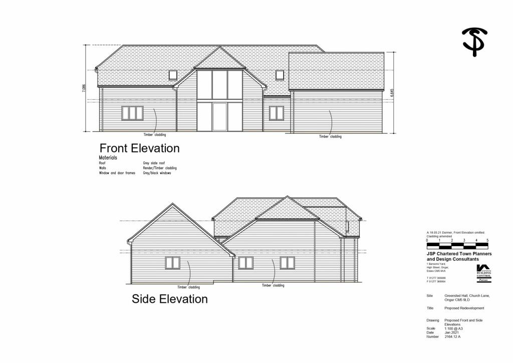
Key Features: • Land with barn • Plot measuring 0.71 acres (STS) • Full planning permission for demolition of existing buildings and erection of single dwelling Planning Ref: EPF/1028/21, Appeal Ref: APP/J1535/W/22/3296030 • Planning consent for substantial barn style home of 3,982 sq. ft • 3 Miles from Ongar • 6 Miles from Epping Tube Station

Location: • Nearest Station: Epping Station • Distance to Station: 4.8 miles

Agent Information: • Address: 10 Springfield Lyons Approach, Springfield, Chelmsford, CM2 5LB

Full Description: Planning permission has been granted for an outstanding barn style new build property located in an idyllic location and originally forming part of the Greensted Hall and gardens. There are open fields to the front and the gardens of Greensted Hall and paddocks to the rear. The property is approached via an attractive private lane, with the historic Greensted Church and adjoining period homes forming this picturesque hamlet.The plot is 0.71 acres in size (STS) and comprises a barn and outbuildings that formed part of Greensted Hall and gardens. LocationGreensted is only 3 miles from Ongar with all the comprehensive town centre facilities along with the Ongar Academy, with Epping town centre and tube station being located approximately 7 miles away giving direct access to Central London. Both town centres offer a wide range of quality shops and independent stores. It also falls within the catchment area of Chelmsford Grammar School, with Chigwell and Brentwood Public Schools also being within close proximityPlanningThe site was granted planning permission at appeal on 3rd April 2023 ref: APP/J1535/W/22/3296030 for demolition of existing buildings and erection of single dwelling, formation of vehicular access and landscaping. The designs are for a substantial barn style home of 3,982 sqft with double garage, 4 bedrooms, office and gym. Full details are available in our data room, and on Epping Forest Planning portal under reference EPF/1028/21. If you require access to the data room please contact us.Terms of OfferGuide price for the property sold on an unconditional basis at £690,000Beresfords would seek to be instructed as  agent on all new homes being sold.BrochuresParticulars

Location

Address

Church Lane, Ongar, CM5

City

Ongar

Features and Finishes

Land with barn, Plot measuring 0.71 acres (STS), Full planning permission for demolition of existing buildings and erection of single dwelling Planning Ref: EPF/1028/21, Appeal Ref: APP/J1535/W/22/3296030, Planning consent for substantial barn style home of 3,982 sq. ft, 3 Miles from Ongar, 6 Miles from Epping Tube Station

Legal Notice

Our comprehensive database is populated by our meticulous research and analysis of public data. MirrorRealEstate strives for accuracy and we make every effort to verify the information. However, MirrorRealEstate is not liable for the use or misuse of the site's information. The information displayed on MirrorRealEstate.com is for reference only.

Real Estate Broker
Beresfords, Land & New Homes
Brokerage
Beresfords, Land & New Homes
Top Tags
3 Miles from Ongar
Likes

0

Views

80

This website uses cookies to ensure you get the best experience. Learn more