Church Road, Buckley, Flintshire, CH7

GBP 95000 For Sale

Property Details

Property Type

Plot

Description

Property Details: • Type: Plot • Tenure: N/A • Floor Area: N/A

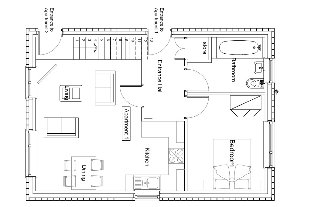
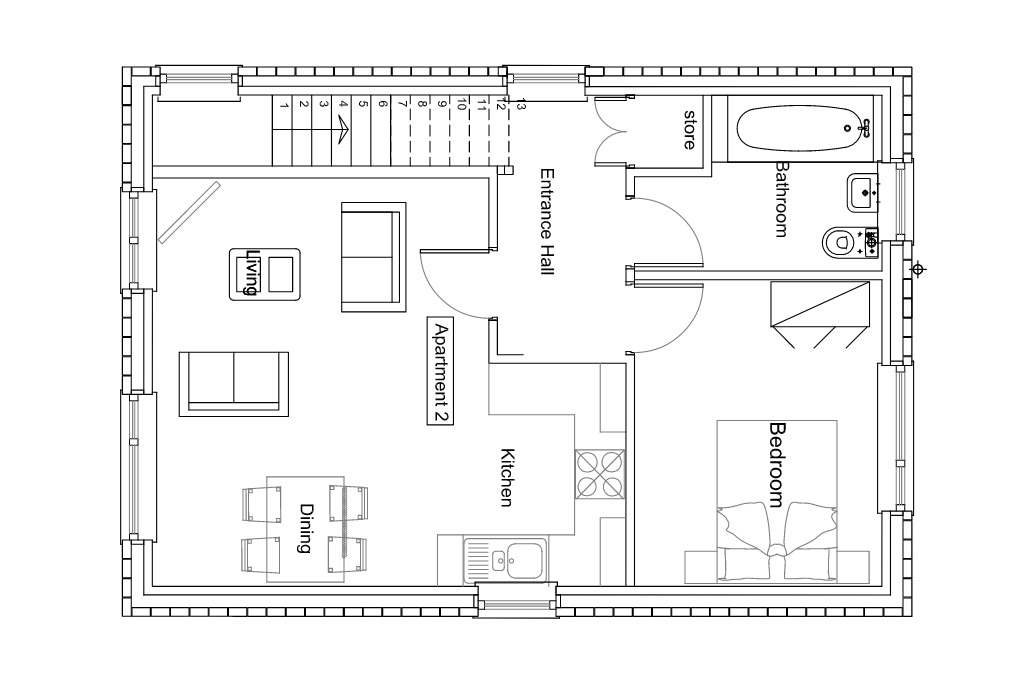
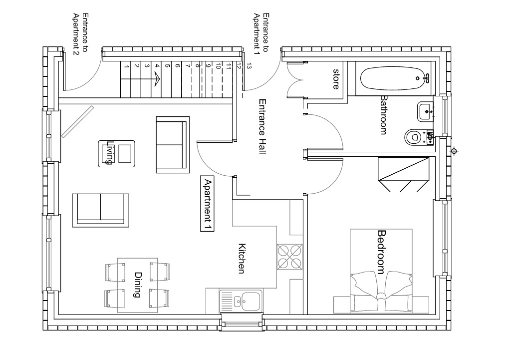
Key Features: • Building Plot With Approved Planning • Excellent Location • Plans Passed For 2 X 1 Bedroom Apartments • Please Call For More Details • Great Opportunity to Build To Rent • Each Apartment Will Rent For £700 per month

Location: • Nearest Station: Buckley Station • Distance to Station: 0.7 miles

Agent Information: • Address: 13-17 Brunswick Road, Buckley, CH7 2ED

Full Description: Building Plot with Approved Planning in Excellent Church Road Location Buckley.Welcome to this exciting opportunity to acquire a building plot with approved planning for 2 x 1 bedroom apartments in the highly coveted Church Road, Buckley. This plot boasts an excellent location and promises endless potential for developers and investors looking to expand their portfolio. Save time and effort in obtaining planning consent and start building your development immediately.The approved planning consent includes plans for two modern designed 1 bedroom apartments. Each apartment has been thoughtfully designed to maximise space and functionality, ensuring a comfortable and modern living experience for future residents.The location benefits from excellent transport links, making it easily accessible for residents and commuters. Major roads and motorways are within close proximity, providing effortless connections to nearby towns and cities.Potential Rental Income- With the growing demand for rental properties, these thoughtfully designed 1 bedroom apartments hold great potential for generating a regular rental income stream of approximately £700 per month for each apartment

Location

Address

Church Road, Buckley, Flintshire, CH7

City

Buckley

Features and Finishes

Building Plot With Approved Planning, Excellent Location, Plans Passed For 2 X 1 Bedroom Apartments, Please Call For More Details, Great Opportunity to Build To Rent, Each Apartment Will Rent For £700 per month

Legal Notice

Our comprehensive database is populated by our meticulous research and analysis of public data. MirrorRealEstate strives for accuracy and we make every effort to verify the information. However, MirrorRealEstate is not liable for the use or misuse of the site's information. The information displayed on MirrorRealEstate.com is for reference only.

Real Estate Broker
Oakfield Property, Buckley
Brokerage
Oakfield Property, Buckley
Top Tags
Excellent Location
Likes

0

Views

64

This website uses cookies to ensure you get the best experience. Learn more