Clapton, Radstock

GBP 350000 For Sale

Property Details

Property Type

Land

Description

Property Details: • Type: Land • Tenure: N/A • Floor Area: N/A

Key Features: • 18 September LIVE ONLINE AUCTION • Exciting Development Opportunity • Full planning consent grated for 4 houses and 1 bungalow • Large site of approx. 0.42 acres • Garaging & ample parking proposed • GDV of circa £1.9M • Sale on behalf of Joint LPA Receivers

Location: • Nearest Station: N/A • Distance to Station: N/A

Agent Information: • Address: 60 Northumbria Drive, Henleaze, Bristol, BS9 4HW

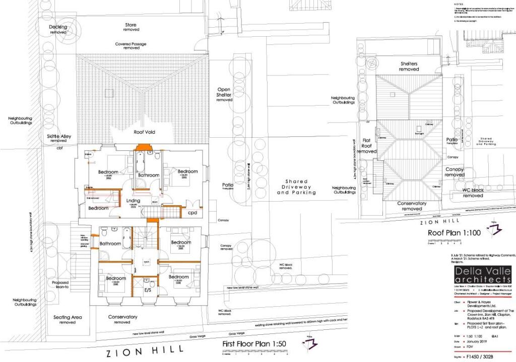
Full Description: PRIME DEVELOPMENT OPPORTUNITY IN A SOUGHT-AFTER VILLAGEA generous development site measuring approximately 0.42 acres, currently occupied by a Public House (approx. 410 m²) with a large car park and grounds.Full planning consent has been granted for an impressive redevelopment scheme comprising four stylish houses and one bungalow, complete with allocated parking and garaging.Situated in a desirable village setting, this is a rare and exciting proposition for builders and developers looking to create high-quality homes in a well-connected, in-demand location.For Sale By Auction - This property is due to feature in our online auction on 18 September 2025 at 6.00pm. Bidding is via proxy, telephone or online remote bidding.Viewings - By appointment.Summary - LARGE DEVELOPMENT SITE WITH PLANNING GRANTED FOR 5 DWELLINGSDescription - A substantial development site measuring approximately 0.42 acres, currently occupied by a Public House (approx. 410 m²) with a large car park and grounds. Full Planning consent has been granted for the redevelopment of the site to provide 4 houses and 1 bungalow with associated parking and garaging. This is an exciting opportunity for all builders/developers in this sought after village location.PROPOSED SCHEDULE OF ACCOMMODATION:Plot 1: 3-Bedroom House - 97 m² (Conversion)Plot 2: 3-Bedroom House - 95 m² (Conversion)Plot 3: 2 Bedroom Bungalow- 62 m² (Conversion)Plot 4: 4-Bedroom House - 97 m² (New-Build)Plot 5: 4-Bedroom House - 97 m² (New-Build)Location - Clapton is a small, rural locality within Radstock and lies about 1 mile west of Midsomer Norton. It's part of the Mendip Hills ward, under the jurisdiction of Bath and North East Somerset.Gross Development Value (Gdv) - We anticipate a GDV of circa £1,900,000 based upon the resale values below.PLOT 1 (3-Bedroom House) - £385,000PLOT 2 (3-Bedroom House) - £370,000PLOT 3 (2-Bedroom Bungalow) - £295,000PLOT 4 (4-Bedroom House) - £425,000PLOT 5 (4-Bedroom House) - £425,000Planning - Full planning consent was granted on 19 July 2023 under Application No. 2022/1184/FUL for the conversion of the existing Public House into 3no. dwelling houses and the erection of 2no. additional dwelling houses (Appeal Ref: APP/Q3305/W/23/3314058).COPY AND PASTE LINK BELOW TO ACCESS ALL PLANNING DOCUMENTATION: previousCaseType=Property&keyVal=RD3ZYLKPH2B00&previousCaseNumber=000TU8KPBU000&previousCaseUprn= &activeTab=summary&previousKeyVal=000VBVKPLI000We understand the site is sold subject to an overage agreement. Please refer to the legal pack for further information.Existing Floor Plan - The existing floor plan included in the marketing particulars was included in the planning application. We have not inspected the property internally and cannot therefore confirm the existing layout.Completion - Completion for this lot will be 8 weeks from exchange of contracts or sooner by mutual agreement.Site Plan - The site plan is provided for indicative purposes only, please refer to the title plan within the legal pack for confirmation of the site boundaries.Energy Performance Certificate (Epc) - Rating on public house: C - valid until 2028Tenure - To be confirmed in the legal pack.Auction Or Bridging Finance Required? - Do you need a mortgage or loan quickly? Maggs & Allen have specialist Independent Brokers who can arrange residential and commercial finance on all types of property. Contact the Auction Team today to be put through to our mortgage and loan experts on or email Buyer's Premium - Please be advised that all purchasers are subject to a £1,800 plus VAT (£2,160 inc VAT) buyer’s premium payable upon exchange of contracts.*Guide Price - Guide Prices are provided as an indication of each seller's minimum expectation. They are not necessarily figures which a property will sell for and may change at any time prior to the auction. Each property will be offered subject to Reserve Price (a figure below which the Auctioneer cannot sell the property during the auction) which we expect will be set within the Guide Range or no more than 10% above a single figure Guide.Reserve Price - The seller's minimum acceptable price at auction and the figure below which the auctioneer cannot sell. The reserve price is not disclosed and remains confidential between the seller and the auctioneer. Both the guide price and the reserve price can be subject to change up to and including the day of the auction.Proxy, Telephone & Online Remote Bidding - The auction will be held online via live video stream with buyers able to bid via telephone, online or by submitting a proxy bid. You will need to complete our remote bidding form, which is available to download from our website. The completed form, ID (driving licence or passport and a recent utility bill stating the home address of the purchaser) and a bank transfer for the Preliminary Deposit must be received no later than 24 hours before the date of the auction.Preliminary Deposits - The Preliminary Deposit required for each lot you wish to bid for is £5,000.If you bid is successful, the balance of the deposit monies and Buyer’s Premium (£1,800 plus VAT) must be transferred to our client account within 24 hours of the auction sale. If you are unsuccessful at the auction, your Preliminary Deposit will be returned to you within 5 working days.BrochuresClapton, Radstock

Location

Address

Clapton, Radstock

City

Clapton

Features and Finishes

18 September LIVE ONLINE AUCTION, Exciting Development Opportunity, Full planning consent grated for 4 houses and 1 bungalow, Large site of approx. 0.42 acres, Garaging & ample parking proposed, GDV of circa £1.9M, Sale on behalf of Joint LPA Receivers

Legal Notice

Our comprehensive database is populated by our meticulous research and analysis of public data. MirrorRealEstate strives for accuracy and we make every effort to verify the information. However, MirrorRealEstate is not liable for the use or misuse of the site's information. The information displayed on MirrorRealEstate.com is for reference only.

Real Estate Broker
Maggs & Allen, Auction, Commercial & Investment
Brokerage
Maggs & Allen, Auction, Commercial & Investment
Top Tags
Likes

0

Views

22

This website uses cookies to ensure you get the best experience. Learn more