Cliff Parade, Walton On The Naze

GBP 650000 For Sale

Property Details

Bedrooms

12

Bathrooms

10

Property Type

Detached

Description

Property Details: • Type: Detached • Tenure: N/A • Floor Area: N/A

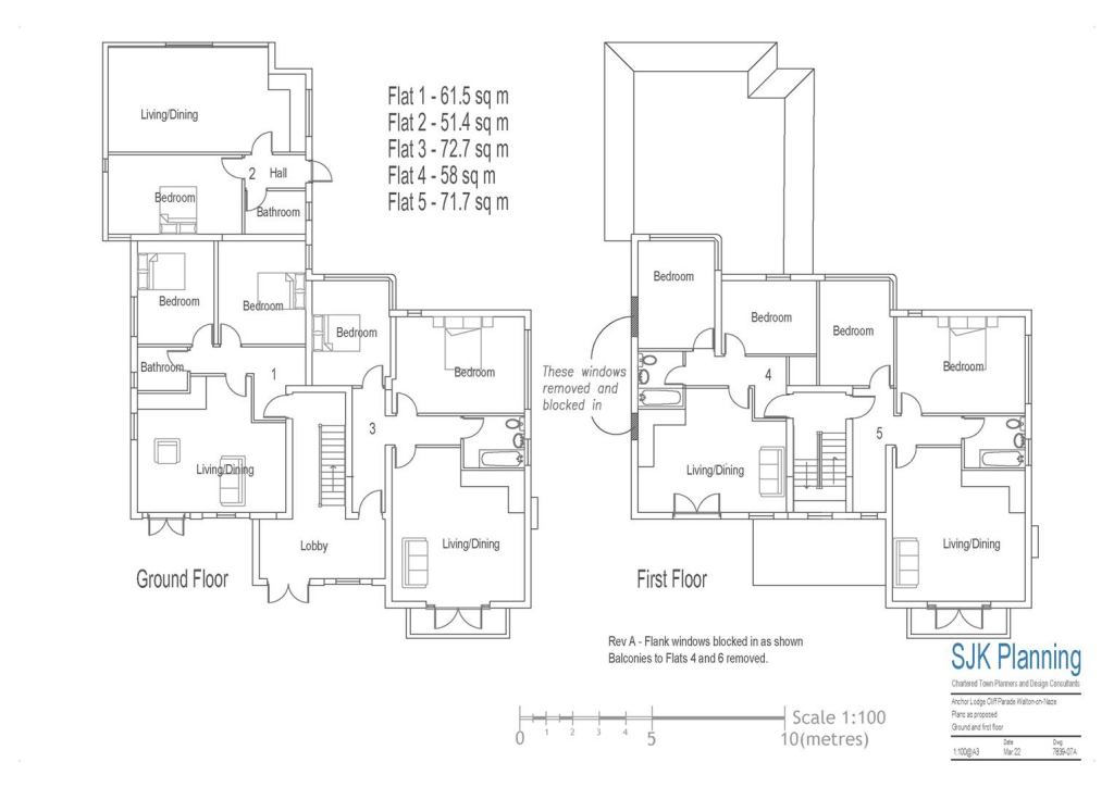
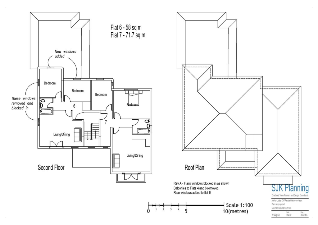
Key Features: • Former Care Home • Seafront Position • Full Planning For Conversion to 7 Apartments • GDV - £1.6 - £1.75m • Potential Rental Yield - £80,000+ PA • EPC B • Vacant - Chain Free • Approx. 4,800 Sq Ft (excluding communal areas)

Location: • Nearest Station: N/A • Distance to Station: N/A

Agent Information: • Address: Unit 2, Crusader Business Park, Stephenson Road West, Clacton-On-Sea, CO15 4TN

Full Description: ** GUIDE PRICE £650,000 - £700,000 ** A unique opportunity to acquire this Freehold, former care home with full planning for conversion to 7 apartments. The property is located directly on the seafront, affording stunning sea views. Once converted we anticipate the GDV to be in the region of £1,600,000 - £1,750,000 and the annual rental yield to be circa £80,000.Description - A Freehold, detached three storey property under a pitched and tiled roof. Set in a plot of approximately 0.15 acres with gardens to front and parking area to side. Formerly a 12 bedroom care home, the property now benefits from planning consent to convert to 7 apartments but could also be utilised for a number of alternate uses subject to obtaining any relevant consents.Location - Situated in the coastal town of Walton-on-the-Naze directly on the seafront. Located on the junction of Cliff Parade with Percival Road, this corner plot offers panoramic sea views and directly opposite are steps leading down to the beach. Naze Tower and Nature Reserve are approximately 0.4 miles away and the Town Centre and amusement pier are within a mile.Planning - Full planning approved by Tendring District Council under reference 21/01975/FUL for conversion into 7 apartments (no extension or new build required).Works must commence by July 2026.Schedule Of Accommodation - Ground Floor:Flat 1 – 2 bed seafront apartment 61.5 sq mFlat 2 – 1 bed rear facing apartment 51.4 sq mFlat 3 – 2 bed seafront apartment 72.7 sq mFirst Floor:Flat 4 – 2 bed seafront apartment 58 sq mFlat 5 – 2 bed seafront apartment 71.7 sq mSecond Floor:Flat 6 – 2 bed seafront apartment 58 sq mFlat 7 – 2 bed seafront apartment 71.7 sq mTotal floor area 445 Sq M / 4,800 Sq Ft (excluding communal areas)Gdv - Sale - £1,600,000 - £1,750,000Rent - £80,000 PAWe are able to provide a full breakdown of anticipated sales/rental values upon request.Additional Info - Council Tax Band: GHeating: Gas central heatingServices: Mains electricity, gas, water & drainageBroadband: Ultrafast fibre available (upto 2,000mbps)Mobile Coverage: Indoor - Limited / Outdoor - LikelyConstruction: Cavity wall, pitched and tiled roofRestrictions: NoneRights & Easements: NoneFlood Risk: Surface Water - Very Low / Rivers & Sea - Very LowAdditional Charges: NoneSeller’s Position: No Onward ChainGarden Facing: South EastAgents Note Sales - PLEASE NOTE - Although we have not tested any of the Gas/Electrical Fixtures & Fittings, we understand them to be in good working order, however it is up to any interested party to satisfy themselves of their condition before entering into any Legal Contract.Aml - ANTI-MONEY LAUNDERING REGULATIONS 2017 - In order to comply with regulations, prospective purchasers will be asked to produce photographic identification and proof of residence documentation once entering into negotiations for a property.BrochuresCliff Parade, Walton On The NazeBrochure

Location

Address

Cliff Parade, Walton On The Naze

City

Frinton and Walton

Features and Finishes

Former Care Home, Seafront Position, Full Planning For Conversion to 7 Apartments, GDV - £1.6 - £1.75m, Potential Rental Yield - £80,000+ PA, EPC B, Vacant - Chain Free, Approx. 4,800 Sq Ft (excluding communal areas)

Legal Notice

Our comprehensive database is populated by our meticulous research and analysis of public data. MirrorRealEstate strives for accuracy and we make every effort to verify the information. However, MirrorRealEstate is not liable for the use or misuse of the site's information. The information displayed on MirrorRealEstate.com is for reference only.

Real Estate Broker
Lamb & Co, Tendring
Brokerage
Lamb & Co, Tendring
Top Tags
Freehold Seafront Position GDV - £1 000 - £1
Likes

0

Views

58

This website uses cookies to ensure you get the best experience. Learn more