Clifton QLD 4361
Property Details
5
3
New House & Land
Description
Property Details: • Type: New House & Land
• Bedrooms: 5 • Bathrooms: 3
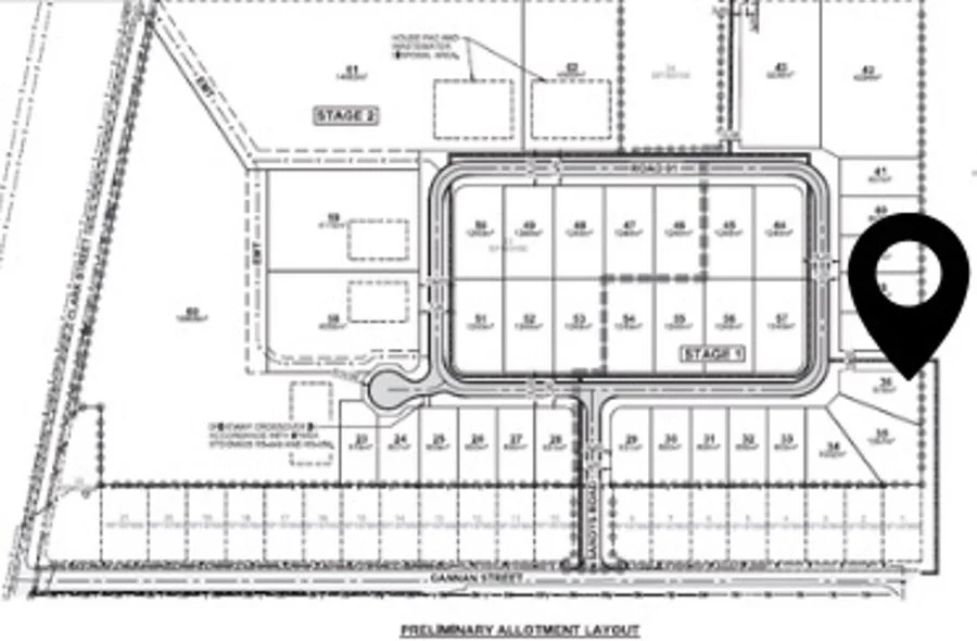
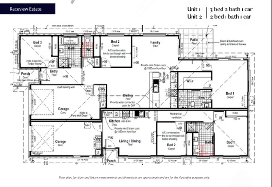
Description: Look no further, this is an affordable dual investment home - and the location is just great, just 1 hour drive into the busy commercial centre of Toowoomba City - but live in the peace and quiet of this lovely small township - live with hustle and bustle but be able to access everything for daily life! Clifton has its own neighbourhood facilities for everyday life - but just once a week visit the major shopping area of Toowoomba City - which just abounds with everything! This is what the locals say: "Wow where to start, I have no intentions of ever moving away. Clifton is an absolute gem, just tucked out of Toowoomba, this means we get all the benefits of a small township with none of the crime or noise." PROPERTY DETAILS: lot 36 Raceview estate, Clifton - near Toowoomba area DUAL OCCUPANCY - 5 BEDS, 3 BATHS AND 2 CARS Main dwelling: 3 beds, 2 baths and 1 car - Secondary Dwelling: 2 beds 1 bath and 1 car LAND SIZE: 857m2. Land cost: $265,000 HOUSE SIZE: 245m2. House build cost: $612,929 TOTAL PACKAGE COST: $895,929 Rental estimate: $950 total per week THIS PROPERTY IS NOT YET CONSTRUCTED. IT IS LOCATED WITHIN A NEW ESTATE WHICH IS CURRENTLY UNDER CONSTRUCTION - TITLES ARE ESTIMATED TO BE AVAILABLE IN NOVEMBER 26. To Purchase: EOI with initial $1000 deposit Subject to finance - you can get preliminary approval but final approval will not be done until lots are fully constructed and valuers can inspect and appraise - then unconditional approval would be available within 21 days of valuation being received by lender Land settlement: 14 days after registration of title - land deposit payable will be 10% of land price On unconditional approval an initial building deposit of 5% of build cost is required to be paid - then builder prepares and submits the construction info for construction approval. Total time frame to completion - allow 8-10 months THIS PORPERTY IS SUBJECT TO AVAILABILITY AT TIME OF YOUR ENQUIRY. FOR SALE: $895,929 Kaye Tilley 0418 823 046
Location
Address
Clifton QLD 4361
City
Clifton
Features and Finishes
None
Legal Notice
Our comprehensive database is populated by our meticulous research and analysis of public data. MirrorRealEstate strives for accuracy and we make every effort to verify the information. However, MirrorRealEstate is not liable for the use or misuse of the site's information. The information displayed on MirrorRealEstate.com is for reference only.