Commerce Street, Melbourne, Derby

GBP 795000 For Sale

Property Details

Property Type

Detached

Description

Property Details: • Type: Detached • Tenure: N/A • Floor Area: N/A

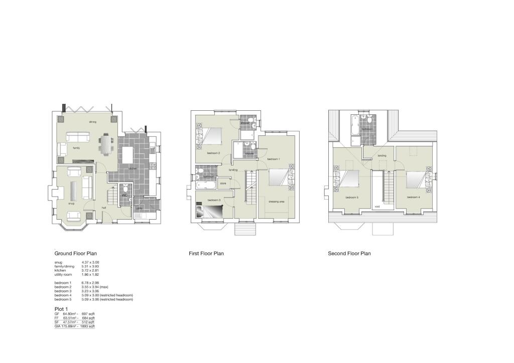
Key Features: • Stunning 2 storey luxury detached family home. • Five bedrooms, 4 bath/shower rooms. • Stunning open plan living kitchen opening to family room. • One further reception room • Utility & cloaks/w.c • Off road parking and garage • Private rear garden

Location: • Nearest Station: N/A • Distance to Station: N/A

Agent Information: • Address: 39 Market Place Melbourne DE73 8DS

Full Description: SUMMARYWELCOME TO MOUNT COURT-PART EXCHANGE CONSIDERED!!Mount Court is an exclusive development of four prestigious 5 & 6 bedroom substantial detached family homes, situated in a courtyard setting off Commerce Street in the desirable town of Melbourne and nestled in the South Derbyshire countryside.DESCRIPTIONWELCOME TO MOUNT COURTMount Court is an exclusive development of four prestigious five and six bedroom substantial detached family homes, situated in a courtyard setting adjoining Commerce Street in the desirable town of Melbourne and nestled in the South Derbyshire countryside. Traditionally designed and built to the highest standards, these superb dwellings are classically styled outside and excellently appointed inside. They offer the best of modern living with contemporary yet timeless interiors with the showhouse interior designed in collaboration with Agnes Daku Interiors. The properties have a superb specification providing exemplary convenience and comfort. Melbourne enjoys a high standard of amenities including the Sainsburys store, Post Office, doctor and dentist surgeries and a wide range of quality public houses and restaurants, whilst being well placed for the commuter with East Midlands airport, Parkway railway station and major link roads close by. Whether just setting out on your journey, building your career or raising a family, you will discover awonderful lifestyle here.Specification KITCHEN/UTILITY-Professionally designed kitchen/utility-Quartz worktops with upstands-Undermounted sink with monoblock taps-Induction Hob with self-circulating extraction unit-Integrated double oven, microwave, dishwasher and fridge freezer-Integrated wine cooler-Integrated washing machine-Porcelanosa floor tilesBATHROOMS/ENSUITES-Designer sanitary ware with vanity units and concealed cisterns-Chrome monoblock taps-Chrome thermostatic showers-Chrome dual fuel heated towel rails-Shaver points-Porcelanosa wall tiles-Porcelanosa floor tiles-Electric underfloor heating to bathrooms/ensuitesELECTRICAL-Downlights to specified rooms-TV and telephone points-Smoke detectors to Kitchen/Utility, Hall and Landings-Fully fitted alarm system-Car charging points-Solar panels -(Battery Energy Storage System available as optional extra)MECHANICAL-Energy efficient gas central heating throughout-Thermostatically controlled radiators-Underfloor heating to ground floorInterior And Exterior Finishes Interior Finishes -Emulsion paint finish to walls and ceilings throughout-Internal timber doors with brushed steel door furniture-Carpet to non-tiled or wood floor areas-Fitted wardrobes to bedrooms-Oak/glass stairsExterior Finishes -Double glazed BS Standard UPVC flush casement windows-Aluminium Bifold/French doors as appropriate-Bespoke entrance doors fitted with 5 lever mortice deadlocks-Remote control garage doors (available as optional extra)-Tiled patio areas-Outside tap and electrical socket-Landscaped rear garden with lighting-Closed boarded fencing and brick pillars to boundariesLocation Perfectly placed, Melbourne is within easy commuting distance of Derby city centre (8 miles) and Nottingham city centre (21 miles) , both of which offer a wide range of shops, leisure, and dining facilities. Within the local vicinity, Melbourne has a selection of shopping and dining facilities, with primary and junior schools located in the town and a secondary school approximately 4 miles away. Melbourne is a market town and civil parish in South Derbyshire and Melbourne Parish Church which dates from around 1102, is one of five in the town. The town and the parish church are also recorded in the Domesday Book 1086 with the village named as Mileburne meaning mill stream.Melbourne Hall was originally the rectory house for the Bishop of Carlisle and the Hall gardens were laid out with the assistance of royal gardeners in 1704. The Thomas Cook Memorial Cottages in High Street were built in 1890-91 by Thomas Cook who started popular travel in England. Cook was born in Melbourne in 1808 though his birthplace was demolished in 1968. The cottages still provide accommodation for some of Melbourne’s senior citizens. Melbourne Market Place is the location of the town’s main shops, including the market cross built in 1889, to which a shelter was added in 1953, making it a natural gathering place currently used as Melbourne’s primary public transport stop.Travel links could not be easier, with the M1 and A42 junctions approximately 10 minutes’ drive away. When it’s more convenient to jump on the bus, there are regular bus services running through to Derby and Burton upon Trent city centres. The nearest train station is at East Midlands Parkway or Derby with direct lines into London. When it’s time to fly, East Midlands Airport, with its range of mainland Europe and worldwide destinations, is approximately 4 miles away by car.Agent Note Please note the internal photographs are for illustration purposes only.Accommodation Snug 14' 4" x 9' 10" ( 4.37m x 3.00m )Family/Dining 17' 5" x 12' 10" ( 5.31m x 3.91m )Kitchen 12' 2" x 9' 2" ( 3.71m x 2.79m )Utility 6' 1" x 5' 11" ( 1.85m x 1.80m )Bedroom One 22' 2" x 9' 9" ( 6.76m x 2.97m )Bedroom Two 11' 7" x 12' 11" ( 3.53m x 3.94m )Bedroom Three 10' 7" x 10' ( 3.23m x 3.05m )Bedroom Four 16' 8" x 9' 10" rstricted headroom ( 5.08m x 3.00m rstricted headroom )Bedroom Five 16' 8" x 10' ( 5.08m x 3.05m )1. MONEY LAUNDERING REGULATIONS - Intending purchasers will be asked to produce identification documentation at a later stage and we would ask for your co-operation in order that there will be no delay in agreeing the sale. 2. These particulars do not constitute part or all of an offer or contract. 3. The measurements indicated are supplied for guidance only and as such must be considered incorrect. 4. Potential buyers are advised to recheck the measurements before committing to any expense. 5. Burchell Edwards has not tested any apparatus, equipment, fixtures, fittings or services and it is the buyers interests to check the working condition of any appliances. 6. Burchell Edwards has not sought to verify the legal title of the property and the buyers must obtain verification from their solicitor.BrochuresPDF Property ParticularsFull Details

Location

Address

Commerce Street, Melbourne, Derby

Features and Finishes

Stunning 2 storey luxury detached family home., Five bedrooms, 4 bath/shower rooms., Stunning open plan living kitchen opening to family room., One further reception room, Utility & cloaks/w.c, Off road parking and garage, Private rear garden

Legal Notice

Our comprehensive database is populated by our meticulous research and analysis of public data. MirrorRealEstate strives for accuracy and we make every effort to verify the information. However, MirrorRealEstate is not liable for the use or misuse of the site's information. The information displayed on MirrorRealEstate.com is for reference only.

Real Estate Broker
Ashley Adams, Melbourne
Brokerage
Ashley Adams, Melbourne
Top Tags
Five bedrooms Private rear garden
Likes

0

Views

96

This website uses cookies to ensure you get the best experience. Learn more