Compton Place Road, Eastbourne

GBP 425000 For Sale

Property Details

Bedrooms

3

Bathrooms

2

Property Type

Flat

Description

Property Details: • Type: Flat • Tenure: Share of Freehold • Floor Area: N/A

Key Features: • Spacious & Well Presented Saffrons Apartment • 3 Bedrooms • First Floor • Lounge/Dining Room • Sun Balcony • Fitted Kitchen • En-Suite Shower Room/WC • Modern Shower Room/WC • Garage • CHAIN FREE

Location: • Nearest Station: N/A • Distance to Station: N/A

Agent Information: • Address: 15 Cornfield Road Eastbourne BN21 4QD

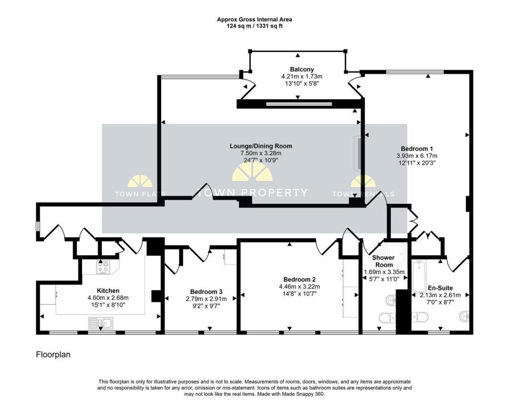
Full Description: * GUIDE PRICE £425,000 to £450,000 * Spacious and versatile accommodation on the first floor of a favoured development in Saffrons, being sold with no onward chain. It is apparent the property has been subject to much improvement throughout, comprising; three bedrooms with the principle offering an en-suite, ample fitted wardrobes and access onto the balcony, large lounge with separate dining area also offering access onto the balcony and views over the well kept communal gardens, modern fitted kitchen with views over to the Town Hall and Saffrons as well as a family shower room. Further benefits include a share of freehold, a garage, double glazing and the development has two porters.Entrance - Communal entrance with security entry phone system. Stairs and lift to first floor private entrance door to -Hallway - Two radiators. Two storage cupboards. Entryphone handset.Lounge/Dining Room - 7.49m x 3.28m (24'7 x 10'9) - Two radiators. Electric fireplace. Wall lights. Double glazed windows and door to -Sun Balcony - 4.22m x 1.73m (13'10 x 5'8 ) - With views over communal gardens.Fitted Kitchen - 4.60m x 2.69m (15'1 x 8'10 ) - Range of fitted wall and base units. Worktop with inset single drainer sink unit and mixer tap. Inset electric hob and electric double oven. Extractor cooker hood. Plumbing and space for washing machine, tumble dryer and dishwasher. Integral fridge/freezer. Refuse chute. Radiator. Double glazed window to front aspect.Bedroom 1 - 6.17m x 3.94m (20'3 x 12'11 ) - Radiator. Array of fitted wardrobes. Double glazed window and door to balcony. Door to -En-Suite Shower Room/Wc - Suite comprising mobility shower with seat. Low level WC. Wash hand basin. Heated towel rail. Double glazed window to front aspect.Bedroom 2 - 4.47m x 3.23m (14'8 x 10'7 ) - Radiator. Array of fitted wardrobes. Double glazed window to front aspect.Bedroom 3 - 2.92m x 2.79m (9'7 x 9'2 ) - Radiator. Fitted wardrobes. Double glazed window to front aspect.Modern Shower Room/Wc - Suite comprising shower cubicle. Low level WC. Wash hand basin. Heated towel rail. Double glazed window to front aspect.Other Details - There is a storeroom separate to the flat.Parking - The flat has a single garage.Epc = C - Council Tax Band = E - BrochuresCompton Place Road, EastbourneBrochure

Location

Address

Compton Place Road, Eastbourne

City

Eastbourne

Features and Finishes

Spacious & Well Presented Saffrons Apartment, 3 Bedrooms, First Floor, Lounge/Dining Room, Sun Balcony, Fitted Kitchen, En-Suite Shower Room/WC, Modern Shower Room/WC, Garage, CHAIN FREE

Legal Notice

Our comprehensive database is populated by our meticulous research and analysis of public data. MirrorRealEstate strives for accuracy and we make every effort to verify the information. However, MirrorRealEstate is not liable for the use or misuse of the site's information. The information displayed on MirrorRealEstate.com is for reference only.

Real Estate Broker
Town Property/Town Flats/Town Rentals, Eastbourne
Brokerage
Town Property/Town Flats/Town Rentals, Eastbourne
Top Tags
Likes

0

Views

8

This website uses cookies to ensure you get the best experience. Learn more