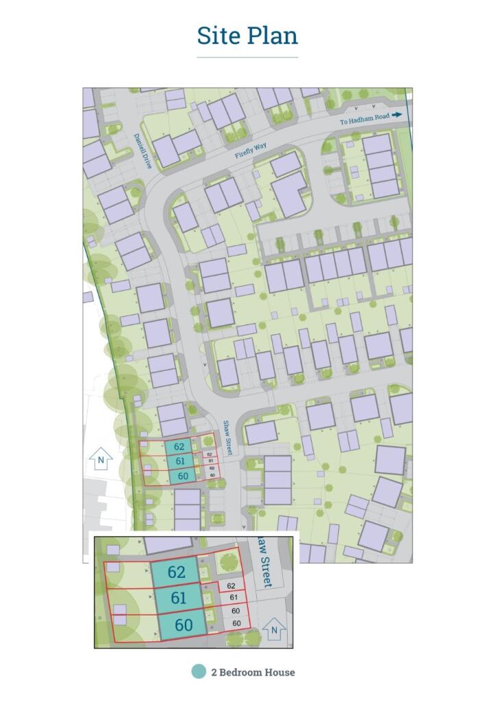
Coopers Grange, Shaw Street, Bishops Stortford

GBP 435000 For Sale

Property Details

Property Type

Terraced

Description

Property Details: • Type: Terraced • Tenure: N/A • Floor Area: N/A

Key Features: • 2 Bedroom Mid Terrace • Available on Shared Ownership • Close To Town Centre • Great Transport Links • Allocated Parking • Call Now For More Information

Location: • Nearest Station: N/A • Distance to Station: N/A

Agent Information: • Address: 149-155 Canal Street, Nottingham, NG1 7HR

Full Description: A superb opportunity to purchase this BRAND NEW 2 bedroom property at the eagerly anticipated Coopers Grange development in Bishops Stortford.  Available on a shared ownership basis, this is a great way to make your next home purchase more affordable.  This excellent location is just minutes from the town centre and is close to fantastic road and rail links to Cambridge and London.Property FeaturesKitchen-  Contemporary fitted kitchen with worktops-  Built-in electric double oven-  Built-in gas hob-  Stainless steel cooker hood-  Integrated washer/dryer-  Integrated fridge/freezer-  Space for dishwasher-  Stainless steel splashback to hob-  1 ½ bowl sink-  Vinyl flooringBathroom-  White bathroom suite-  Chrome heated towel rail-  Glass shower screen-  Thermostatic shower over bath-  Full height wall tiles to bath & as splashback to wash hand basin-  Vinyl flooringCloakroom-  White sanitary ware-  Tiled splashback to wash hand basin-  Vinyl flooringInteriors-  Double glazed UPVC windows-  80/20 carpet to all living areas-  Smoke detector-  Combi boiler-  Gas central heating-  BT points to living room-  TV point to living roomExteriors-  Patio area-  Turf to rear garden-  Shed-  TV supplied via fibre network-  1 allocated parking spaces - plots 61 & 62-  2 allocated parking spaces - plot 60-  990 year lease-  NHBC warrantyLocal AreaBishop's Stortford has fantastic transport links. It is only 40 miles from London and less than 35 minutes to Junction 27 of the M25 via the M11 motorway. Bishop's Stortford railway station is on the London Liverpool Street to Cambridge main line operated by Greater Anglia. Epping tube station is about 15 miles away from Bishop's Stortford, which means some residents prefer that to the mainline station.Shared OwnershipThe full market value of this property is £435,000, with shares available from 50% subject to affordability.  Based on a percentage of 50%, there is a monthly rent of £543.75 and a monthly service charge of £55.07.  Interested parties are requested to complete a short financial assessment prior to application.

Location

Address

Coopers Grange, Shaw Street, Bishops Stortford

Features and Finishes

2 Bedroom Mid Terrace, Available on Shared Ownership, Close To Town Centre, Great Transport Links, Allocated Parking, Call Now For More Information

Legal Notice

Our comprehensive database is populated by our meticulous research and analysis of public data. MirrorRealEstate strives for accuracy and we make every effort to verify the information. However, MirrorRealEstate is not liable for the use or misuse of the site's information. The information displayed on MirrorRealEstate.com is for reference only.

Real Estate Broker
Solo Homes Ltd, Nottingham, Covering Nationwide
Brokerage
Solo Homes Ltd, Nottingham, Covering Nationwide
Top Tags
Allocated Parking
Likes

0

Views

16

This website uses cookies to ensure you get the best experience. Learn more