Copperbeech, Llwydcoed Road, Aberdare

GBP 99995 For Sale

Property Details

Property Type

Land

Description

Property Details: • Type: Land • Tenure: N/A • Floor Area: N/A

Key Features:

Location: • Nearest Station: Aberdare Station • Distance to Station: 1.3 miles

Agent Information: • Address: 3 Market Street, Aberdare, CF44 7DY

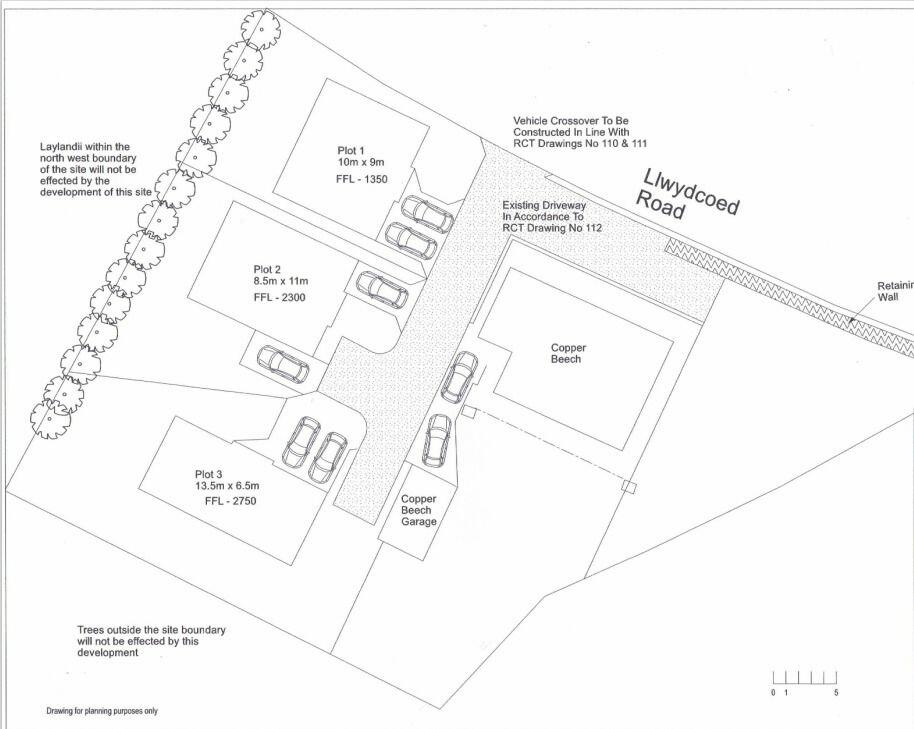
Full Description: We are pleased to offer for sale this freehold self build plot located in the highly desirable village of Llwydcoed and close to village shops, schools and amenities. The site is perfectly positioned for connection to all services and offers good access to all major trunk roads and motorways.The plot has planning permission for one detached unit measuring 11m x 8.5m with off road parking.Further details can be obtained via Rhondda Cynon Taff under planning application : 23/0073/10 - Planning Granted April 2023.Tenure: FreeholdBrochuresBrochure

Location

Address

Copperbeech, Llwydcoed Road, Aberdare

City

Llwydcoed Road

Legal Notice

Our comprehensive database is populated by our meticulous research and analysis of public data. MirrorRealEstate strives for accuracy and we make every effort to verify the information. However, MirrorRealEstate is not liable for the use or misuse of the site's information. The information displayed on MirrorRealEstate.com is for reference only.

Real Estate Broker
Apex Estate Agents, Abedare
Brokerage
Apex Estate Agents, Abedare
Top Tags
Likes

0

Views

109

This website uses cookies to ensure you get the best experience. Learn more