Corbett Street, Treherbert

GBP 110000 For Sale

Property Details

Property Type

Land

Description

Property Details: • Type: Land • Tenure: N/A • Floor Area: N/A

Key Features: • Plot of Land with Planning Permission

Location: • Nearest Station: Treherbert Station • Distance to Station: 0.4 miles

Agent Information: • Address: 6 Station Road, Radyr, Cardiff, CF15 8AA

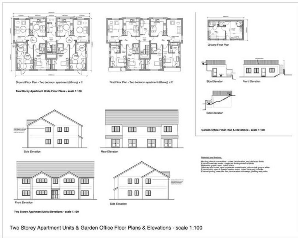
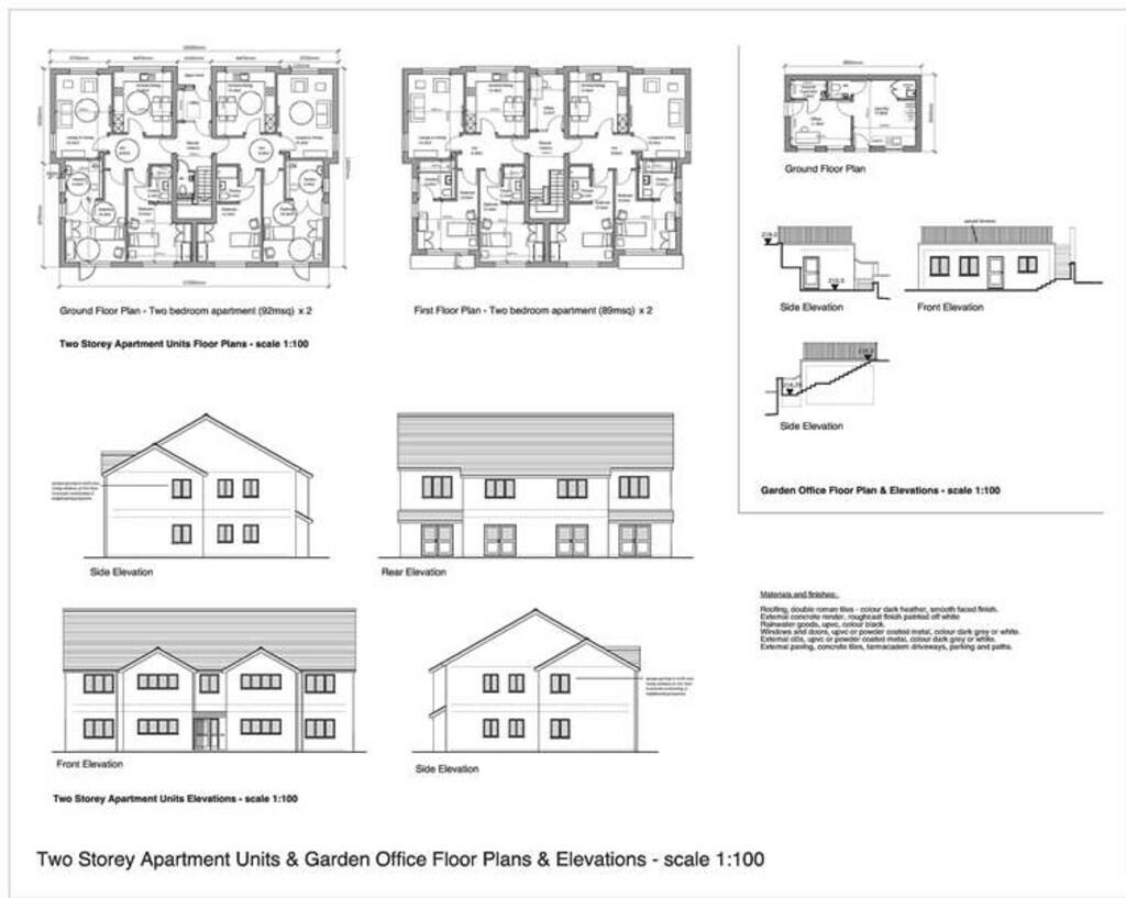
Full Description: DESCRIPTION ** PLOT OF LAND WITH FULL PLANNING PERMISSION ** We are pleased to offer for this clear land site, with the benefit of full planning permission (planning no. 21/0665/10), for the construction of two blocks of self contained residential apartments, each with four, two bedroom units and a staff office, plus a separate building, housing support facilities. The site slopes uphill from Bryn Heulog to Corbett Street is surrounded by three made up and adopted highways, namely Corbett Street, Bryn Heulog and Twyn-Er-Eos. Treherbet is located in the Rhondda valley on the A4061 very close to the North West of Treorchy. Treherbet has a range of shops, schools leisure and transport facilities. PROPOSED ACCOMODATION 8 Self contained apartments, with shared service office and separate support building. plus on site car park.Each apartment comprisesEntrance Hall: 8.5 m2.A Lounge/Diner: 19.2 m2.kitchen/Diner: 15.4 M2Bedroom One with en-suite 15.0 m2 and 6 m2 respectively.Bedroom two with en-suite 17.02m2 and 3.1 m2 respectively. SUPPORT BUILDING Comprising a laundry, staff office medical and staff WC.office 11.8 m2Laundry 17.4 m2Medical store 2.8m2Staff WC/washroomFloorplans are available on request EXTERIOR On site car park / disabled parking / gardens and grounds / private terrace and roof terrace USER AND PLANNING PERMISSION Residential care sector/ planning permission 21/0665/10 was approved with conditions on 02/09/2021Local Authority, Rhondda Cynon Taff RATES RV and Council tax to be assessed following development.  BrochuresA4 Portrait 4pp A...

Location

Address

Corbett Street, Treherbert

City

Corbett Street

Features and Finishes

Plot of Land with Planning Permission

Legal Notice

Our comprehensive database is populated by our meticulous research and analysis of public data. MirrorRealEstate strives for accuracy and we make every effort to verify the information. However, MirrorRealEstate is not liable for the use or misuse of the site's information. The information displayed on MirrorRealEstate.com is for reference only.

Real Estate Broker
MGY, Radyr
Brokerage
MGY, Radyr
Top Tags
Four two bedroom units
Likes

0

Views

51

This website uses cookies to ensure you get the best experience. Learn more