Court Road, Lewes, BN7

GBP 2000000 For Sale

Property Details

Property Type

Land

Description

Property Details: • Type: Land • Tenure: N/A • Floor Area: N/A

Key Features: • TOWN CENTRE DEVELOPMENT OPPORTUNITY • APPROVED PLANNING PERMISSION TO DEVELOP 9 PROPERTIES • MOMENTS FROM THE HIGH STREET • STRIKING DISTANCE TO THE MAINLINE RAILWAY STATION • ALMOST IMMEDIATE ACCESS TO THE NATURE RESERVE

Location: • Nearest Station: Lewes Station • Distance to Station: 0.2 miles

Agent Information: • Address: 178 High Street, Lewes, BN7 1YE

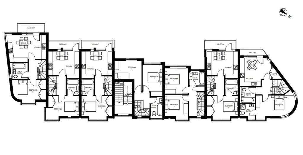
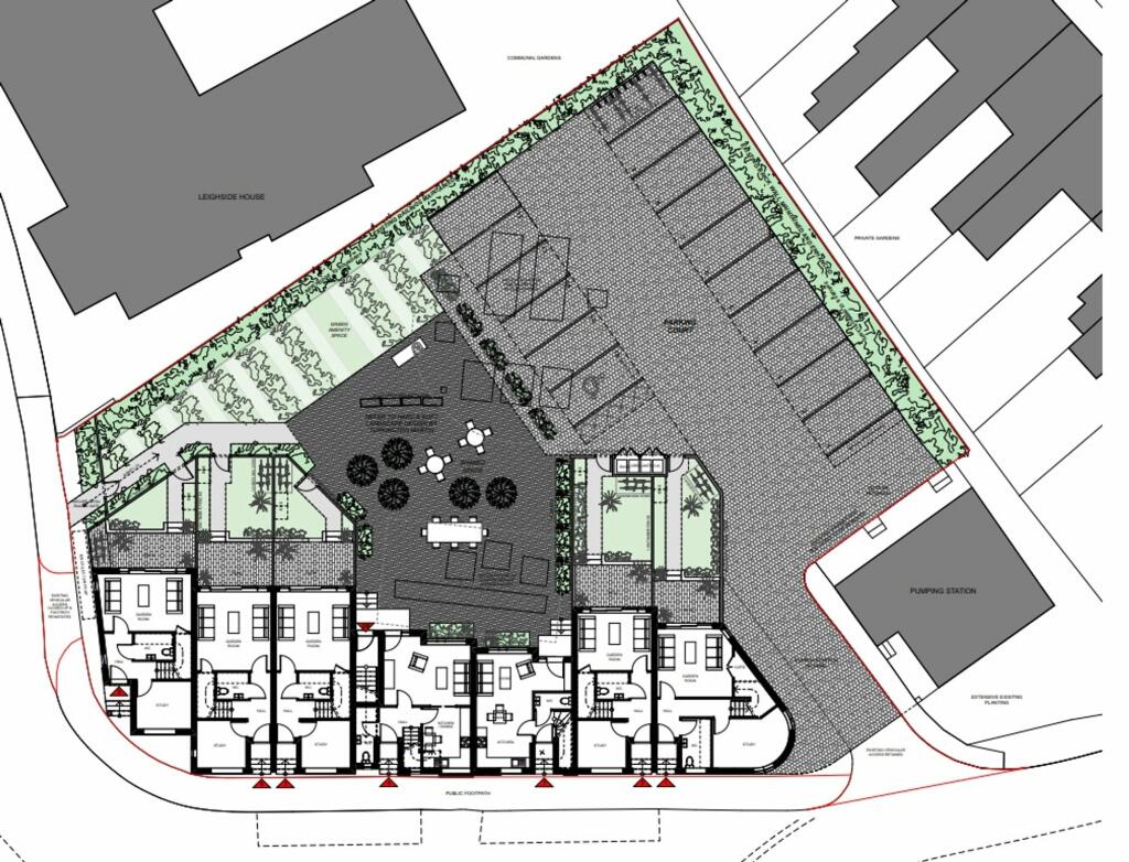
Full Description: Situated in the heart of Lewes town centre this exciting development opportunity is available for purchase with approved planning permission to create a bespoke development comprising of 9 properties.The completed project would comprise of 5 three/four bedroom townhouses, 2 two bedroom duplexes, a 2 double bedroom, second floor apartment and a 1 bedroom top floor apartment.The superb town centre location of this development opportunity is within striking distance of the historic high street, with an excellent array of shops, restaurants, cafes and well referred antique centres. The development offers almost immediate access to the pretty Railway Land Nature Reserve and the Mainline Railway Station is just a 5 minute walk away (source Google Maps)Each property has the extremely rare benefit of an allocated parking space and the site includes provisions for 6 further parking spaces. There is to be a pretty landscaped communal garden for the duplexes and apartments and the townhouses boast generously sized rear gardens for what is a town centre development.This exciting project comes with approved planning permission Ref: SDNP/16/01618/FUL our vendor clients advise that works are considered as commenced.Architectural features for the completed dwellings could include, curved walls, generously sized terraces and balconies, and floor to ceilings in part.The architects responsible for the design of the scheme are Morgan Carn of Brighton. The site is for sale due to business relocation within the town.Court Road is ideally situated in the heart of Lewes town centre within striking distance to Lewes High Street and Mainline Railway Station.Lewes Mainline Railway Station offers regular and direct services to London, Brighton, Gatwick and the coast.This county town is a popular choice for families with an excellent choice of schools catering for all ages. There are numerous public green spaces within easy walking distance of the development including the gorgeous Grange Gardens. Tenure – FreeholdServices – Purchasers will need to connect to the completed properties to the necessary services.Cil Charge – The s106 agreement states that 3 units need to be offered for sale for affordable housing. If a sale cannot be agreed then a Cil Payment of £89,454 is required instead.EPC Rating – N/A    Council Tax Band – N/ABrochuresBrochure 1

Location

Address

Court Road, Lewes, BN7

City

Lewes

Features and Finishes

TOWN CENTRE DEVELOPMENT OPPORTUNITY, APPROVED PLANNING PERMISSION TO DEVELOP 9 PROPERTIES, MOMENTS FROM THE HIGH STREET, STRIKING DISTANCE TO THE MAINLINE RAILWAY STATION, ALMOST IMMEDIATE ACCESS TO THE NATURE RESERVE

Legal Notice

Our comprehensive database is populated by our meticulous research and analysis of public data. MirrorRealEstate strives for accuracy and we make every effort to verify the information. However, MirrorRealEstate is not liable for the use or misuse of the site's information. The information displayed on MirrorRealEstate.com is for reference only.

Real Estate Broker
Mansell McTaggart, Lewes
Brokerage
Mansell McTaggart, Lewes
Top Tags
Likes

0

Views

52

This website uses cookies to ensure you get the best experience. Learn more