Coval House, Coval Lane, Chelmsford, CM1 1TD
Property Details
4,015 sq ft
Description
Property Details: • Type: 4,015 sq ft • Tenure: N/A • Floor Area: N/A
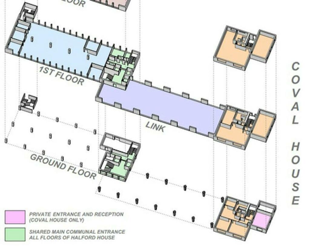
Key Features: • 4,014.94 ft² • 10 Parking spaces • Self contained building • Ground floor reception
Location: • Nearest Station: Chelmsford Station • Distance to Station: 0.2 miles
Agent Information: • Address: Parkview House Victoria Road South, Chelmsford, CM1 1BT
Full Description: DescriptionCoval House is a prominent three-storey office building with access directly from Rainsford Road/Coval Lane.LocationChelmsford, the County City of Essex, is a strategic commercial and administrative centre located approximately 30 miles north-east of central London. The A12 provides easy access to the M25(Junction 28), some 12 miles south-west of the City, as well as to East Anglia and the East Coast ports of Felixstowe and Harwich. Stansted Airport and the M11 (Junction 8) are approximately 30minutes drive via the A130/A120. Halford House is situated a short walk from the mainline station (London Liverpool Street –35 minutes), bus station and city centre.TermsNew full repairing and insuring lease for a term to be agreed.Rent£20.00 psf.EPCThe accommodation available requires refurbishment and assessments on other floors following such works have achieved a B rating.Service ChargeAvailable on request.Business RatesRV: £94,000.
Location
Address
Coval House, Coval Lane, Chelmsford, CM1 1TD
City
Chelmsford
Features and Finishes
4,014.94 ft², 10 Parking spaces, Self contained building, Ground floor reception
Legal Notice
Our comprehensive database is populated by our meticulous research and analysis of public data. MirrorRealEstate strives for accuracy and we make every effort to verify the information. However, MirrorRealEstate is not liable for the use or misuse of the site's information. The information displayed on MirrorRealEstate.com is for reference only.