Cowbridge Road East Victoria Park CARDIFF CF5 1JN
Property Details
Commercial Property
Description
Property Details: • Type: Commercial Property • Tenure: N/A • Floor Area: N/A
Key Features: • NO CHAIN!!! • INVESTMENT OPPORTUNITY • COMMERCIAL UNIT • 2x TENANTED FLATS • COACH HOUSE TO REAR • REAR LANE ACCESS FOR FLATS & COACH HOUSE • VICTORIA PARK • FREEHOLD • EXCELLENT LOCATION • VIEWINGS BY APPOINTMENT ONLY
Location: • Nearest Station: Waun-gron Park Station • Distance to Station: 0.7 miles
Agent Information: • Address: Homes House 253 Cowbridge Road West Cardiff CF5 5TD
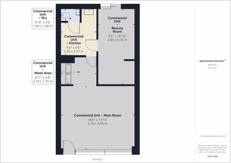
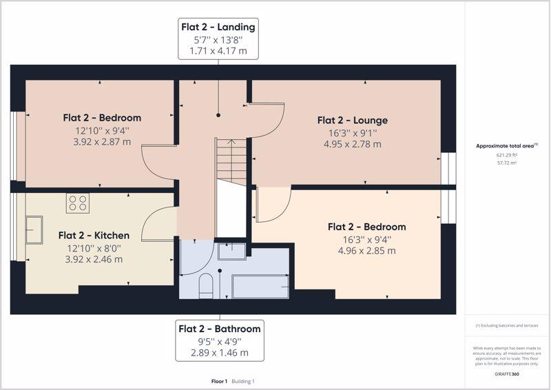
Full Description: *** Guide Price: £525,000 *** INVESTMENT OPPORTUNITY - GROUND FLOOR COMMERCIAL A1/A2 LICENCED UNIT with TENANT - 1st FLOOR FLAT with TENANT - 2nd FLOOR FLAT with TENANT - COACH HOUSE - MR HOMES Offer FOR SALE this Large Investment Opportunity on the Busy Cowbridge Road East Area of Cardiff, Next to Victoria Park, This Sought After Location is a Great Opportunity for an Investor to Purchase the Properties with the FREEHOLD. EPC = C Ground Floor Commercial Unit A1/A2 Licence - EPC = C - 1st Floor Flat - EPC = C - 2nd Floor Flat - Please Call for further information... or EmailGround Floor Commercial Unit - Main Shop Floor18' 8'' x 17' 0'' (5.69m x 5.18m)Ground Floor Commercial Unit - Sink/Wash Area9' 0'' x 7' 0'' (2.74m x 2.13m)Ground Floor Commercial Unit - Kitchen11' 11'' x 9' 0'' (3.63m x 2.74m)Ground Floor Commercial Unit - W.c4' 9'' x 3' 2'' (1.45m x 0.96m)Ground Floor Commercial Unit - Rear Treatment/Beauty Room20' 3'' x 9' 4'' (6.17m x 2.84m)Flat 1 - 1st Floor - Enter via Rear LaneFlat 1 - 1st Floor - Steps Communal HallwayDoors to Flats 1 & 2Flat 1 - 1st Floor - Entrance Hallway12' 3'' x 5' 10'' (3.73m x 1.78m)Flat 1 - 1st Floor - Lounge16' 1'' x 10' 1'' (4.90m x 3.07m)Flat 1 - 1st Floor - Kitchen8' 7'' x 7' 1'' (2.61m x 2.16m)Flat 1 - 1st Floor - Bedroom16' 3'' x 9' 4'' (4.95m x 2.84m)Flat 1 - 1st Floor - Bedroom12' 10'' x 9' 4'' (3.91m x 2.84m)Flat 1 - 1st Floor - Bathroom5' 7'' x 5' 2'' (1.70m x 1.57m)Flat 2 - 2nd Floor - Entrance Hall - Staircase to LandingFlat 2 - 2nd Floor - Flat 2 - 2nd Floor - Landing13' 8'' x 5' 7'' (4.16m x 1.70m)Flat 2 - 2nd Floor - Lounge16' 3'' x 9' 1'' (4.95m x 2.77m)Flat 2 - 2nd Floor - Kitchen12' 10'' x 8' 0'' (3.91m x 2.44m)Flat 2 - 2nd Floor - Bedroom16' 3'' x 9' 4'' (4.95m x 2.84m)Flat 2 - 2nd Floor - Bedroom12' 10'' x 9' 4'' (3.91m x 2.84m)Flat 2 - 2nd Floor - Bathroom9' 5'' x 4' 9'' (2.87m x 1.45m)Ground Floor - Coach House - Lounge/Kitchen/Bedroom19' 8'' x 13' 5'' (5.99m x 4.09m)Ground Floor - Coach House - Bathroom5' 5'' x 5' 2'' (1.65m x 1.57m)BrochuresProperty BrochureFull Details
Location
Address
Cowbridge Road East Victoria Park CARDIFF CF5 1JN
City
Cardiff
Features and Finishes
NO CHAIN!!!, INVESTMENT OPPORTUNITY, COMMERCIAL UNIT, 2x TENANTED FLATS, COACH HOUSE TO REAR, REAR LANE ACCESS FOR FLATS & COACH HOUSE, VICTORIA PARK, FREEHOLD, EXCELLENT LOCATION, VIEWINGS BY APPOINTMENT ONLY
Legal Notice
Our comprehensive database is populated by our meticulous research and analysis of public data. MirrorRealEstate strives for accuracy and we make every effort to verify the information. However, MirrorRealEstate is not liable for the use or misuse of the site's information. The information displayed on MirrorRealEstate.com is for reference only.