Craig Place, Aberdeen, AB11
Property Details
1
1
Flat
Description
Property Details: • Type: Flat • Tenure: Freehold • Floor Area: N/A
Key Features: • Tenanted & Fully Compliant • 1 Bedroom • Home Report £60K • Current Rental £500pm • Current Yield 10% • EPC Rating: E • 41 sq m • Furnished Let • No Buyer Fees
Location: • Nearest Station: N/A • Distance to Station: N/A
Agent Information: • Address: Portolio Ltd, Westpoint, 4 Redheughs Rigg, Edinburgh, EH12 9DQ
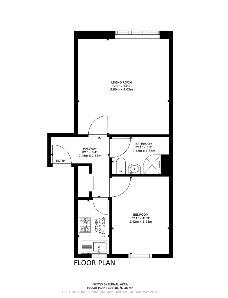
Full Description: Situated on the second floor of a traditional tenement, this one-bedroom flat offers a fantastic investment opportunity in the popular Torry area, just east of Aberdeen city centre. The property is being sold with tenants in situ, providing immediate rental income for prospective buyers. Spanning approximately 41m², the accommodation comprises a hallway, a living room, kitchen, a generously sized double bedroom, and an internal three-piece shower room suite. The property benefits from modern UPVC double glazing throughout, as well as electric storage and panel heaters. Hot water is supplied via a hot water tank system.The property is being sold with the tenants in situ as a buy-to-let investment property. The property is fully compliant and the tenant has been resident since February 2021 providing rental income on day 1 of purchase. The current tenancy generates an annual rental income of £6,000. The property is sold as seen and the sale price includes all the inventory items. The Home Report value is £60K.Torry is a well-established residential area with excellent access to local amenities, public transport links, and the city centre, making it a popular choice for tenants working or studying in Aberdeen. This is an ideal hands-off investment opportunity for landlords seeking a well-maintained property with a proven rental history.BrochuresBrochure 1
Location
Address
Craig Place, Aberdeen, AB11
City
Aberdeen
Features and Finishes
Tenanted & Fully Compliant, 1 Bedroom, Home Report £60K, Current Rental £500pm, Current Yield 10%, EPC Rating: E, 41 sq m, Furnished Let, No Buyer Fees
Legal Notice
Our comprehensive database is populated by our meticulous research and analysis of public data. MirrorRealEstate strives for accuracy and we make every effort to verify the information. However, MirrorRealEstate is not liable for the use or misuse of the site's information. The information displayed on MirrorRealEstate.com is for reference only.