Creynolds Lane, Cheswick Green, Solihull, B90 4ER

GBP 600000 For Sale

Property Details

Bedrooms

4

Bathrooms

2

Property Type

Detached Bungalow

Description

Property Details: • Type: Detached Bungalow • Tenure: N/A • Floor Area: N/A

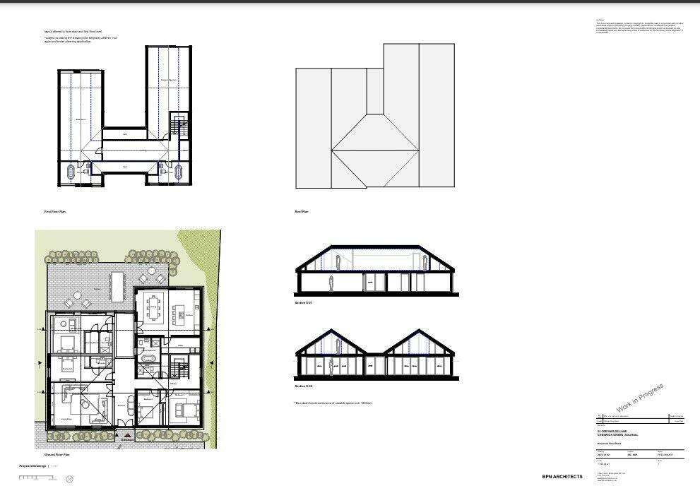
Key Features: • PLANNING PERMISSION GRANTED 03/24 • Detached Bungalow • Large Rear Garden • Set back from road • In need of modernisation • No Upward Chain • Sought After Location

Location: • Nearest Station: N/A • Distance to Station: N/A

Agent Information: • Address: 117 Stratford Road Shirley Solihull B90 3ND

Full Description: Black and Golds Estate Agents are proud to offer this four bedroom detached bungalow with full outright planning permission granted for development opportunity in Cheswick Green, Solihull. The property is set on a large secluded plot with a welcoming private driveway. Cheswick Green is a sought-after village within Solihull, previously part of Hockley Heath, it lies 3 miles south west of Solihull town centre. It offers a range of amenities including a Post Office, pharmacy, and hairdresser, as well as a pub, doctor's surgery, village hall and a primary school.The village is served by bus service S2 which runs hourly to Shirley and Solihull. The property is 1.5 miles to the M42 so is ideal for commuters.The property is approached via a large private driveway leading to ample parking for several vehicles and a lovely front lawn. The welcoming entrance hall has a large storage cupboard and a door to the left leads to the spacious dining room. This bright room has a window to the front, beams to the ceiling and ample space for a large table and chairs.You then enter a second hallway where sliding doors lead to the patio area and garden and a door to the right leads to the spacious lounge/reception room. To the left of the inner hallway is the family bathroom and utility room. The bathroom also provides access to the utility area which has plenty of storage cupboards and space and plumbing for a washing machine and a tumble dryer.From the inner hallway to the right is the kitchen/diner which has lovely views across the garden. Leading off from the kitchen diner is a third hallway where doors lead to four double bedrooms. The main is spacious and could easily accommodate the addition of an ensuite. It has a large window looking out to the rear garden and over the woodland beyond.Adjacent is bedroom three which has an ensuite where the door access could be reconfigured to become a shared bathroom. OutsideThe expansive garden offers huge scope for extension. There is a brick-built summer house providing a great space for rest and relaxation or even a home office. Development potentialThis property is located on a substantial plot in a much sought after location. There is clearly huge potential with planning permission granted. To book a viewing contact black and gold estate agents.General Information: Material information: The information above has been provided by the vendor, agent and GOTO Group and may not be accurate. Please refer to the property’s Legal Pack. (You can download this once you have registered your interest against the property). This pack provides material information which will help you make an informed decision before proceeding. It may not yet include everything you need to know so please make sure you do your own due diligence as well. BrochuresBrochure 1

Location

Address

Creynolds Lane, Cheswick Green, Solihull, B90 4ER

City

Cheswick Green

Features and Finishes

PLANNING PERMISSION GRANTED 03/24, Detached Bungalow, Large Rear Garden, Set back from road, In need of modernisation, No Upward Chain, Sought After Location

Legal Notice

Our comprehensive database is populated by our meticulous research and analysis of public data. MirrorRealEstate strives for accuracy and we make every effort to verify the information. However, MirrorRealEstate is not liable for the use or misuse of the site's information. The information displayed on MirrorRealEstate.com is for reference only.

Real Estate Broker
Black & Golds Estate Agents, Solihull
Brokerage
Black & Golds Estate Agents, Solihull
Top Tags
Solihull pharmacy and hairdresser
Likes

0

Views

47

This website uses cookies to ensure you get the best experience. Learn more